Acura TL (2013 – 2014) – wiring diagrams – ground distribution
Year of productions: 2013, 2014
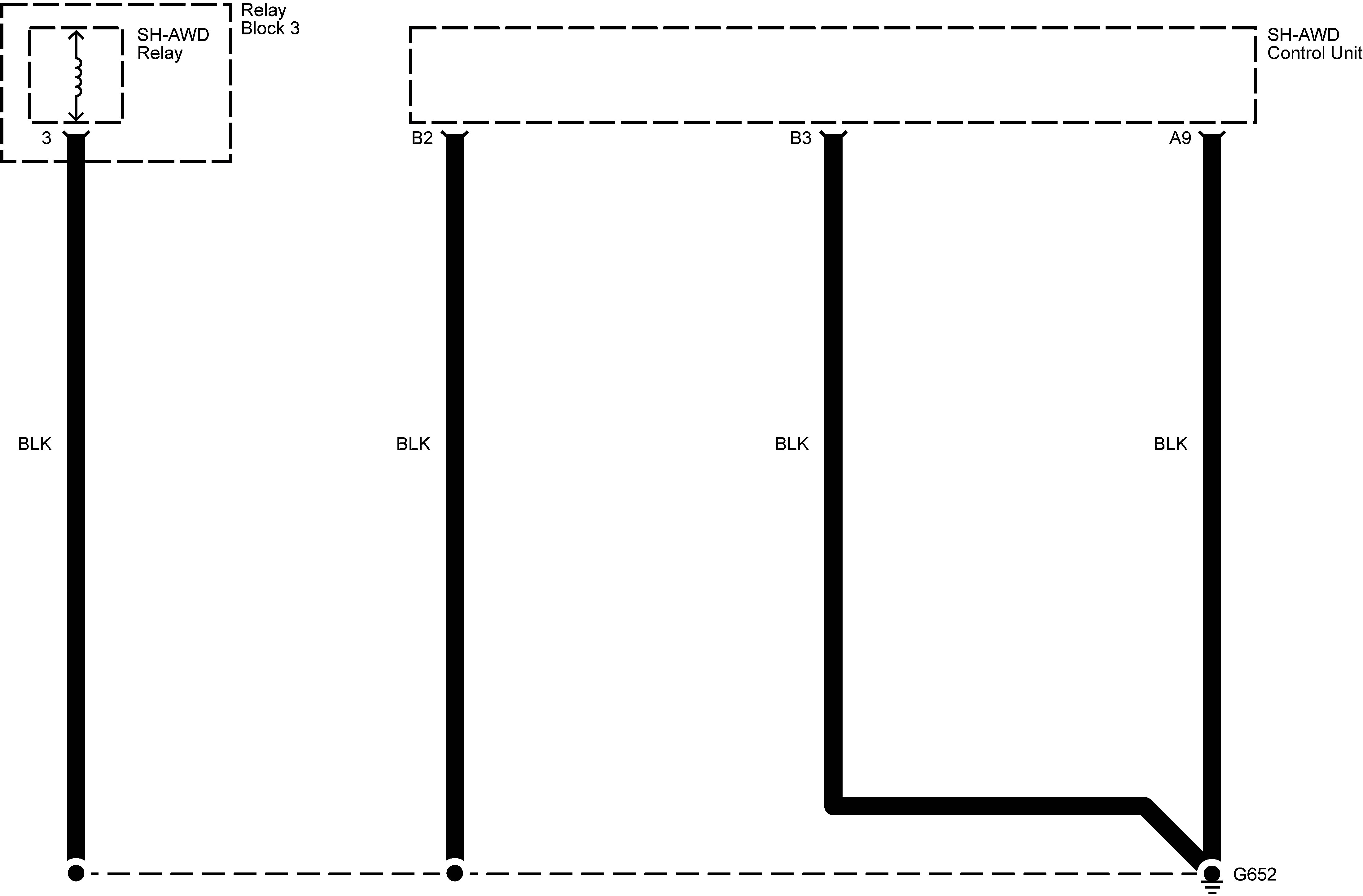
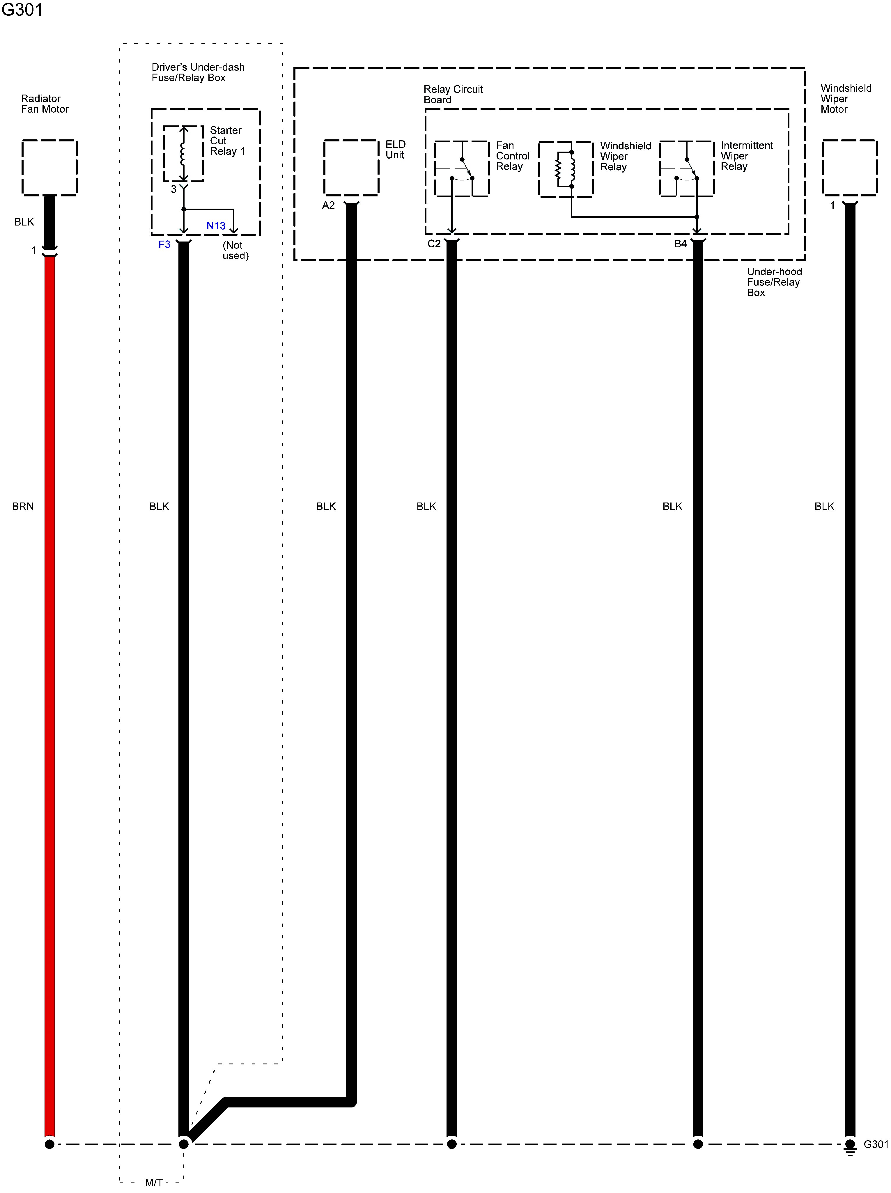
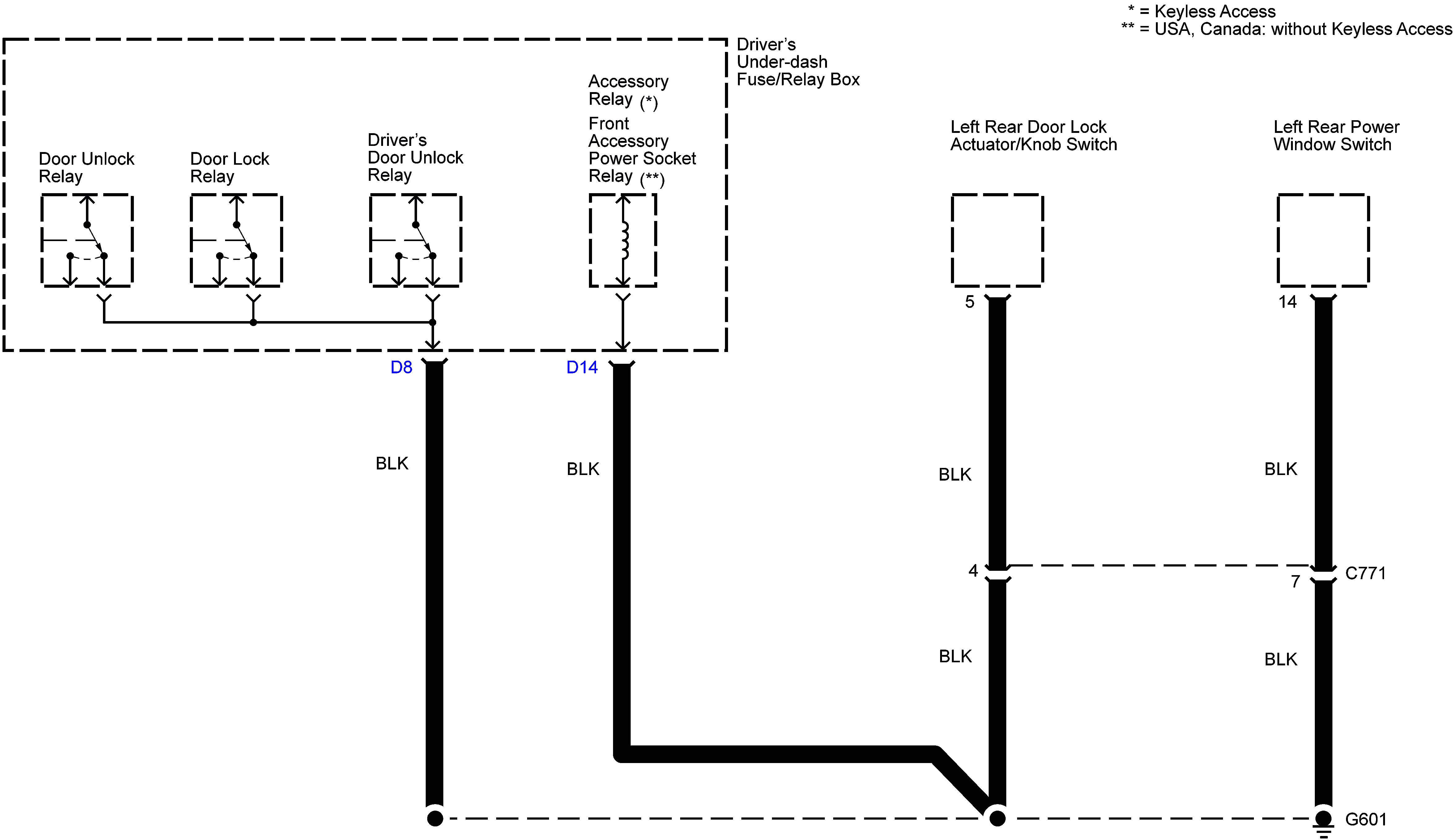
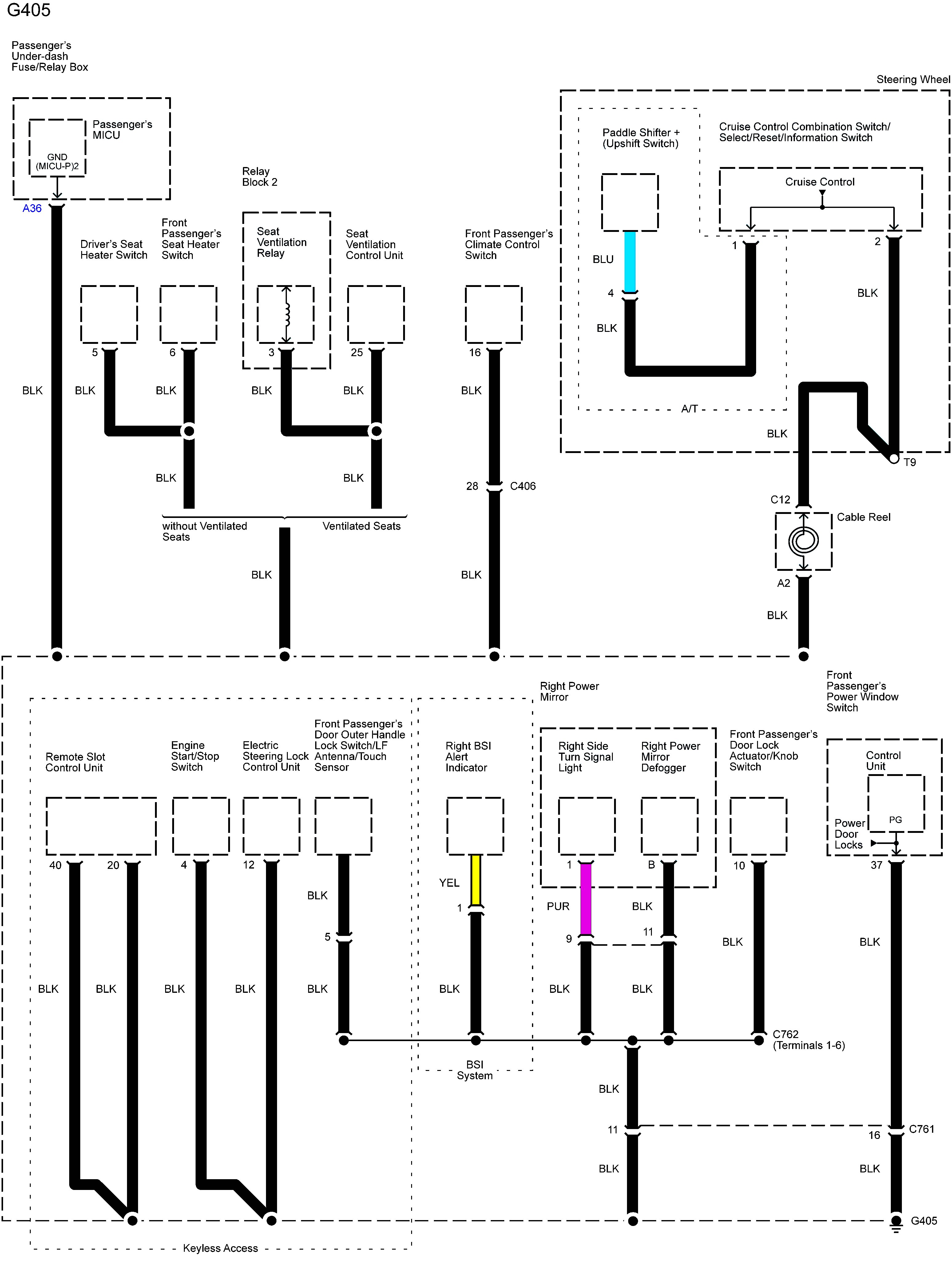
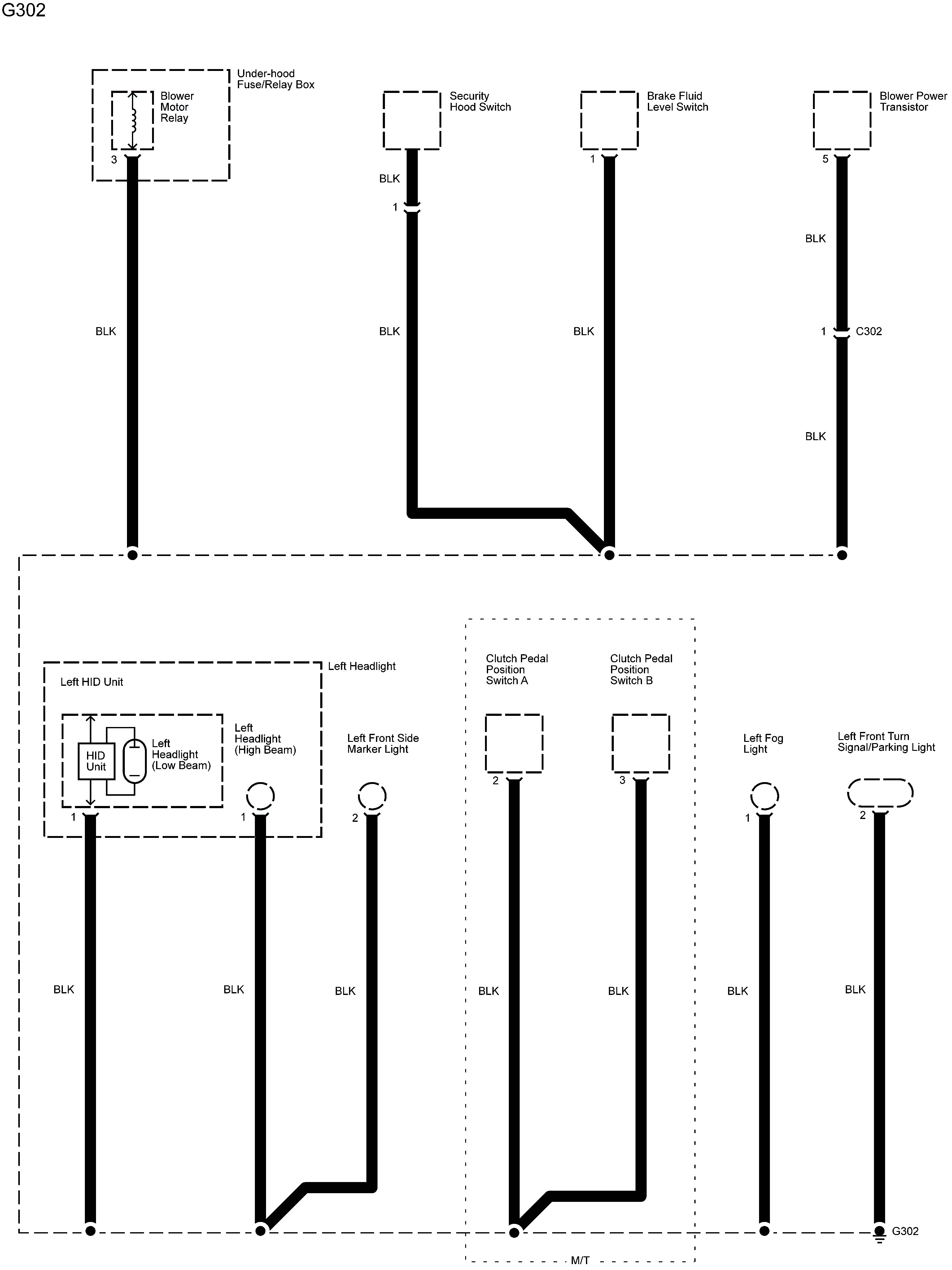
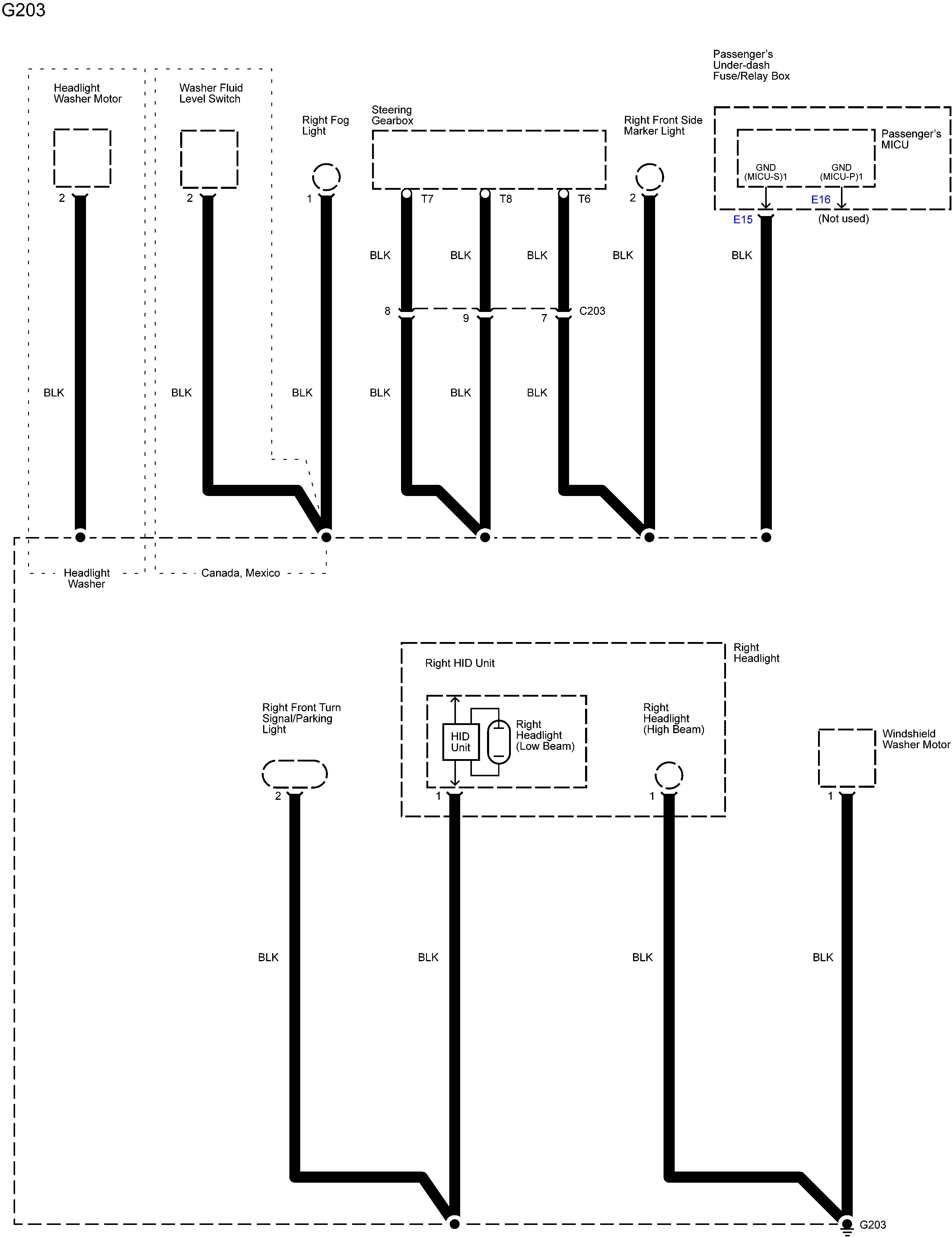
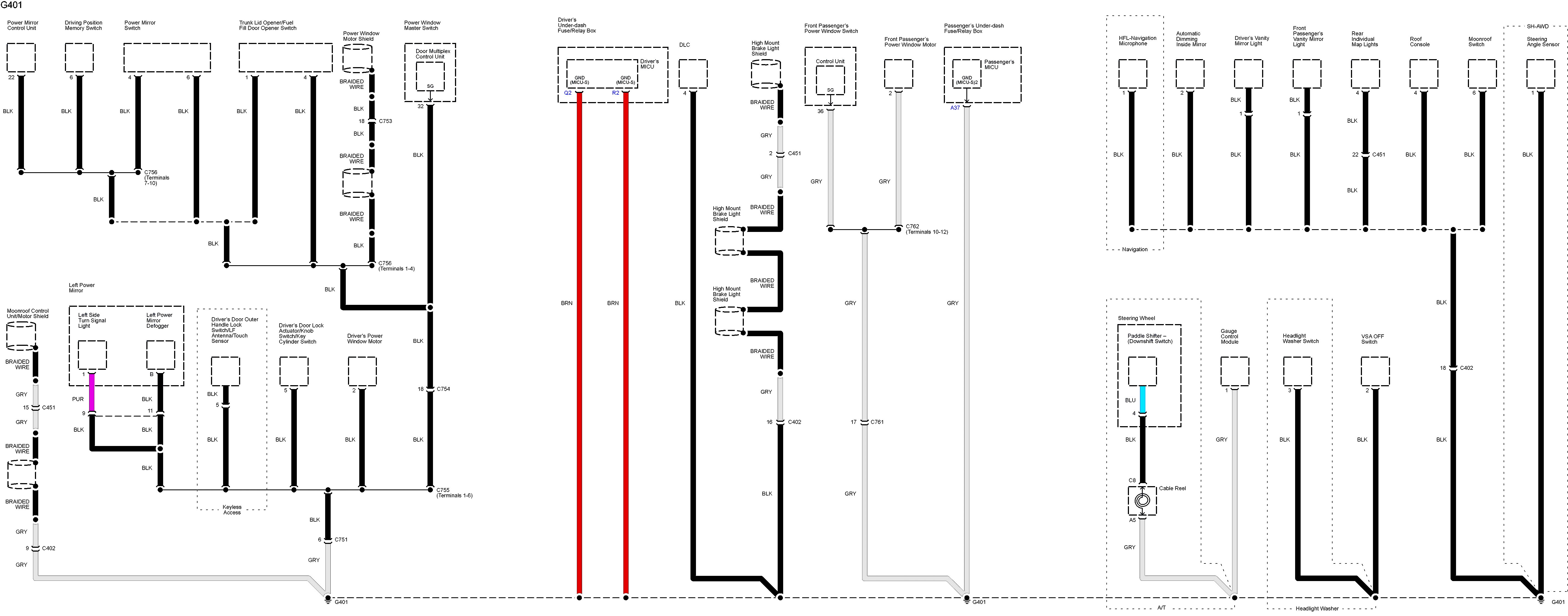
Ground distribution
Version 1


























Version 2


WARNING: Terminal and harness assignments for individual connectors will vary depending on vehicle equipment level, model, and market.
