Acura TL (1996 – 1997) – wiring diagrams – power seats
Year of productions: 1996, 1997
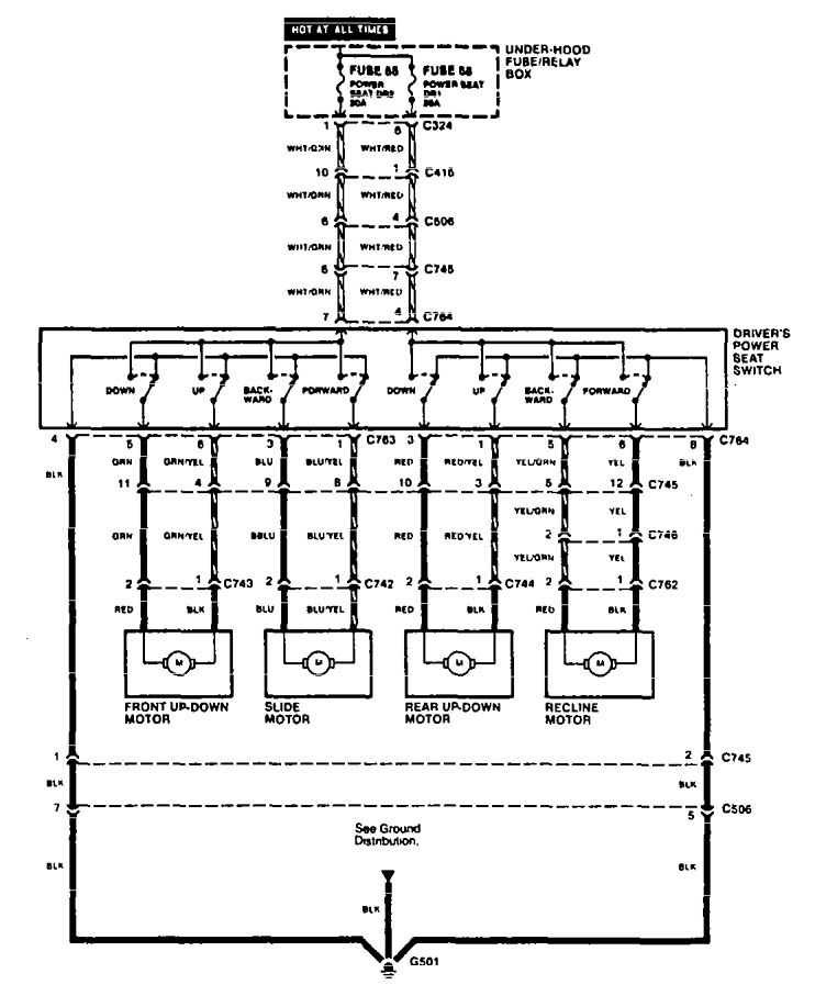
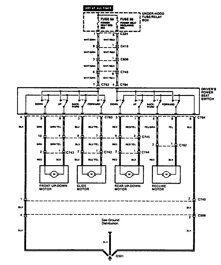
Power seats
Version 1


Version 2

WARNING: Terminal and harness assignments for individual connectors will vary depending on vehicle equipment level, model, and market.
