Suzuki Ertiga – fuse box diagram
Year of production:
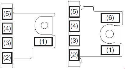
Fuse box in the engine compartment


| No. |
A |
Function/component |
| 1 | 100 | FL1 (GAS) |
| 120 | FL1 (DIESEL without ISG) | |
| 450 | FL1 (DIESEL with ISG) | |
| 2 | 100 | FL2 |
| 3 | 100 | FL3 |
| 4 | 50 | FL4 |
| 5 | 80 | FL5 |
| 6 | 100 | FL6 (DIESEL) |
| 7 | 50 | Ignition switch -2 |
| 8 | 7.5 | ECM (DIESEL |
| 9 | 15 | A/T controller |
| 10 | 20 | Fuel pump (DIESEL) |
| 11 | 10 | Air compressor |
| 12 | 15 | FI (GAS) |
| 13 | 30 | FI (DIESEL) |
| 14 | 60 | Power steering |
| 15 | 30 | Radiator fan |
| 16 | 40 | ABS motor |
| 17 | 40 | Blower fan |
| 18 | 30 | Starting motor |
| 19 | – | Not used |
| 20 | 30 | Back up |
| 21 | 30 | DCDC |
| 22 | 15 | Head light (Left) |
| 23 | 25 | ABS control module |
| 24 | 15 | Head light (Right) |
| 25 | 20 | Front fog light |
| 26 | 7.5 | CNG Valve |
| 27 | 40 | Ignition switch |
| 28 | 7.5 | Starting Signal |
| 29 | 20 | INJ DRV (DIESEL) |
| 30 | 10 | FI2 (DIESEL) |
| 31 | – | Not used |
| 32 | – | Not used |
| 33 | – | Not used |
| 34 | 7.5 | CNG |
Fuses under the Dash Board

| o. |
A |
Function/component |
| 1 | – | Not used |
| 2 | – | Not used |
| 3 | 20 | Steering lock |
| 4 | 20 | Rear defogger |
| 5 | – | Not used |
| 6 | – | Not used |
| 7 | – | Not used |
| 8 | 7.5 | Starting Signal |
| 9 | 15 | ACC-2 |
| 10 | 30 | Power window |
| 11 | 10 | Hazard |
| 12 | 7.5 | BCM |
| 13 | 15 | Ignition coil |
| 14 | 10 | ABS control module |
| 16 | 10 | A-STOP controller |
| 17 | 15 | Horn |
| 18 | 10 | Stop light |
| 19 | 10 | Air bag |
| 20 | 10 | Back-up light |
| 21 | 15 | Rear wiper / Washer |
| 22 | 25 | Front wiper |
| 23 | 7.5 | Dome light |
| 24 | Not used | |
| 25 | – | Not used |
| 26 | – | Not used |
| 27 | 7.5 | Ignition-1 signal |
| 28 | 15 | Radio 2 |
| 29 | 10 | ACC-3 |
| 30 | 15 | Radio |
| 31 | 10 | Tail lamp |
| 32 | 20 | D/L |
| 33 | – | Not used |
| 34 | 10 | Meter |
| 35 | 7.5 | Ignition-2 signal |
| 36 | – | Not used |
WARNING: Terminal and harness assignments for individual connectors will vary depending on vehicle equipment level, model, and market.
