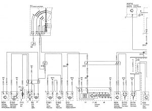
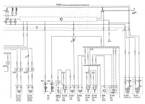
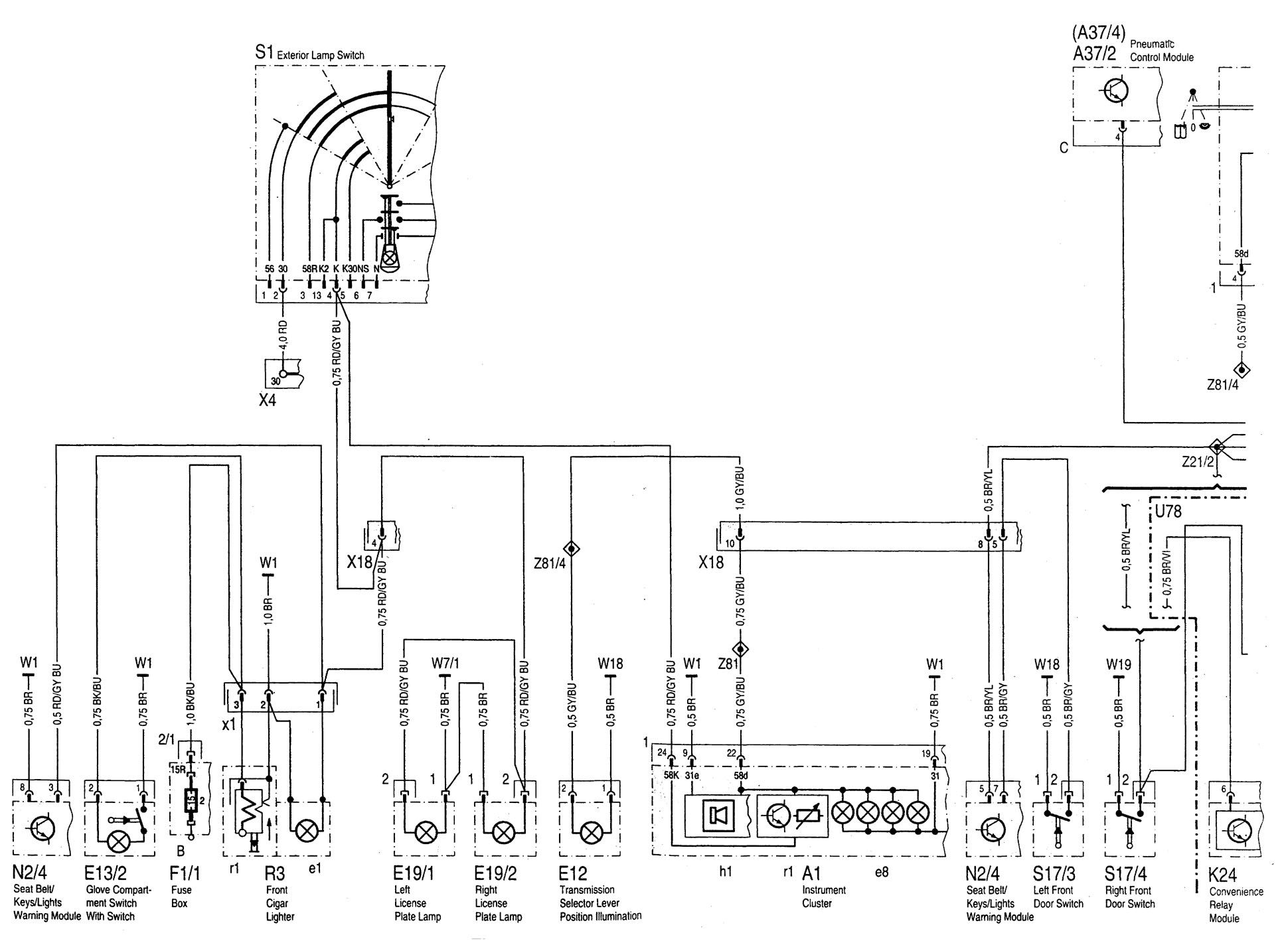
Mercedes-Benz C220 (1994 – 1996) – wiring diagrams – exterior lighting
Year of productions: 1994, 1995, 1996
Exterior lighting


| A1 | Instrument cluster |
| A1e8 | Instrument illumination |
| A1h1 | Warning buzzer |
| A1r1 | Instrument illumination rheostat |
| A37/2 | PSE control module (CL) |
| A37/2 | PSE control module (CL, MVA) |
| E12 | Transmission selector lever position illumination |
| E13/2 | Glove compartment lamp with switch |
| E14/1 | Left sun visor (with illuminated vanity mirror) |
| E14/2 | Right sun visor (with illuminated vanity mirror) |
| E15/2 | Front dome lamp (with shut-off delay and front reading lamp) |
| E15/3 | Rear dome lamp |
| E17/3 | Left front door entrance/exit lamp |
| E17/4 | Right front door entrance/exit lamp |
| E18/1 | Trunk lamp |
| E19/1 | Left license plate lamp |
| E19/2 | Right license plate lamp |
| F1/1 | Fuse box (12-fuse, in fuse and relay box F1) |
| F1/1-2 | Fuse 2, terminal 15R |
| F3 | Fuse box (18-fuse, in fuse and relay box F1) |
| F3-33 | Fuse 33, terminal 30 |
| F3-35 | Fuse 35, terminal 15R |
| K24 | Convenience relay module |
| N2/4 | Seat belt warni.ng module (USA) |
| N26 | AT A control module |
| R3 | Front cigar lighter (with ashtray illumination) |
| R3e1 | Illumination |
| R3r1 | Heating element |
| R3x1 | Illuminated cigar lighter connector |
| S1 | Exterior lamp switch |
| S17/3 | Left front door switch |
| S17/4 | Right front door switch |
| S17/5 | Left rear door switch |
| S17/6 | Right rear door switch |
| S17/8 | Trunk lamp switch |
| S88/2 | Trunk lid lock switch (CF) |
| S88/2×1 | Trunk lid lock switch connector (CF) |
| U78 | Valid for power seats |
| W1 | Main ground (behind instrument cluster) |
| W7/1 | Ground (right rear taillamp in trunk) |
| W18 | Ground (left front seat crossmember) |
| W19 | Ground (right front seat crossmember) |
| Grounds not indicated, components are connected on engine block bodywork. | |
| X4 | Terminal block (terminal 30, left footwall) (3-pole) |
| X18 | lnterior/taillamp harness connector |
| X34/3 | Right front door contact switch intermediate connector (entrance/exit amp) |
| X35/1 | Left front door separation point |
| X35/2 | Right front door separation point |
| Z7/1 | Terminal 30 connector sleeve (CL) |
| Z21/2 | Front door contact connector sleeve (switched ground feed from left front (S17/3) and right front (S17/4) door contact switches) |
| Z81 | Terminal 58d connector sleeve |
| Z81/4 | Terminal 58d connector sleeve (frame floor) |
WARNING: Terminal and harness assignments for individual connectors will vary depending on vehicle equipment level, model, and market.
