Saab 9-2x (2005 – 2006) – fuse box diagram
Year of production: 2005, 2006
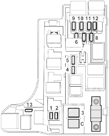
Passenger compartment fuse box

| No. | A | Circuits |
| 1 | 15 | Heater Fan |
| 2 | 15 | Heater Fan |
| 3 | 15 | Power Door Lock, Remote Keyless Entry |
| 4 | 20 | Cigarette Lighter, Remote Controlled Rear View Mirrors |
| 5 | 10 | Taillight, Parking Light |
| 6 | 15 | SRS Airbag |
| 7 | 15 | Fog Light |
| 8 | 20 | ABS Solenoid |
| 9 | 15 | Radio |
| 10 | — | — |
| 11 | 15 | Engine Ignition System, SRS Airbag, AT Control System |
| 12 | 10 | Illumination Brightness Control |
| 13 | 10 | Combination Meter, SRS Lamp |
| 14 | 10 | Rear Window Wiper and Washer |
| 15 | 30 | Windshield Wiper and Washer |
| 16 | 20 | Brake Light |
| 17 | 15 | Air Conditioner |
| 18 | 15 | Backup Light, Cruise Control |
| 19 | 20 | Mirror Heater |
| 20 | — | — |
| 21 | 15 | Ignition Coil |
| 22 | 10 | ABS Ignition |
| 23 | 20 | Seat Heater |
Engine Compartment Fuse Box

| No. | A | Circuits |
| 1 | 20 | Radiator Cooling Fan (Main) |
| 2 | 20 | Radiator Cooling Fan (Sub) |
| 3 | 30 | ABS Motor |
| 4 | 20 | Rear Window Defogger |
| 5 | 15 | Hazard Warning Flasher, Horn |
| 6 | 15 | Turn Signal Lights |
| 7 | 10 | Automatic Transmission Control Unit |
| 8 | 10 | Alternator |
| 9 | 15 | Head Light (Right Side) |
| 10 | 15 | Head Light (Left Side) |
| 11 | 20 | Lighting Switch |
| 12 | 20 | Clock, Interior Switch |
| 13 | 10 | Turbo: Secondary Air Combination Valve |
WARNING: Terminal and harness assignments for individual connectors will vary depending on vehicle equipment level, model, and market.
