Mercedes-Benz C Class w203 (Second generation 2000 – 2007) – fuse box diagram
| Description | Fuse number |
| ABS | 56,59,60,62 |
| Airbag warning lamps | 41,42,4549 |
| Airbag/side airbag control unit | 45,49 |
| Air-conditioner (SE) | 41,51 |
| Anti-thef alarm (SE) | 8,9,41 |
| Automatic heater system | 41 |
| Auxiliary heater (SE) | 35 |
| Blower motor (heater/AC) | 30,41 |
| Breake lights | 62 |
| Central locking | 21,22,32,33,57 |
| Central locking – interior switch | 41 |
| COMAND (SE) | 64 |
| Convenience locking | 8,9,21,22,32,33, |
| Courtesy lights (SE) | 21,22 |
| Diagnostic socket | 62 |
| Dipped deam | 62,63 |
| Dome lights | 3,9 |
| E-Call/TeleAid (SE) | 40,44 |
| Electronic Stability Program | 55,56,57,59,60,62 |
| Engine electronics | 48,53,54 |
| Engine fan | 51 |
| Engine residual heat system (SE) | 30,41,51 |
| Fanfare | 43 |
| Fog lamps | electronic |
| Fog tail light | electronic |
| Fuel filter flap unlocking | 15 |
| Fuel pump | 4 |
| Garage door opener (SE) | 9 |
| Glove compartment light | 47 |
| Hazard warning flashers | 41 |
| Headlamp flasher | electronic |
| Headlamp range adjust (SE) | 51 |
| Headlamp washer system (SE) | 63 |
| Heated rear window | 10,41 |
| High beam, high beam tell-tale | electronic |
| Instrument cluster | 42 |
| Language control system (SE) | 13,16 |
| License plate illumination | electronic |
| Locking check-back | electronic |
| Low beam | 62,63 |
| Main beam, m. b. indic. lamp | electronic |
| Make-up mirror (SE) | 9 |
| Mirror adjustment | 21,22,63 |
| Mirror automatic dimming (SE) | 9,21 |
| Mirror fold-in feature (SE) | 21,22,63 |
| Mirror heater | 21,22 |
| Multi-contour backrest (SA) | 13,19 |
| Multi-function steering wheel | electronic |
| Navigation system (SE) | 64 |
| Number plate light | electronic |
| Parking lamps/tail lamps | electronic |
| Parktronic system (SE) | 13,41 |
| Power socket, boot (SE) | 12 |
| Power window, front | 21,22 |
| Power window, rear | 21,32,33 |
| Radio | 64 |
| Rain sensor (SE) | 9 |
| Rear fog light | electronic |
| Rear head release | 41 |
| Rear windscreen wash system | 14,41 |
| Remote boot/trunk release | 8,21 |
| Reversing lamps | electronic |
| Seat adjustment, driver | 2,21,27,(29 sp.-coupe) |
| Seat adjustment, passenger | 1,22,38,(34 sp.-coupe) |
| Seat heater (SE) | 25,41 |
| Sound system (SE) | 26 |
| Start enable | 31,52,57 |
| Steering lock | 31 |
| Steering wheel adjustment (SE) | 2,21,27,(29 sp.-coupe) |
| Sun blind for rear window (SE) | 20,41 |
| Switch illumination | 9,21,22,32,33,41,50 |
| Tele Aid (SE)/E-Call | 40,44 |
| Telephone systems (SE) | 13,16,40,44 |
| Television (SE) | 3 |
| Tilting/sliding roof (SE) | 9 |
| Trailer lights (SE) | 17 |
| Trailer, power supply (SE) | 18 |
| Transmission electronics (SE) | 55,58,61 |
| Turn signal, t. s. indicator lamp | electronic |
| Water pump (AMG-Kompressor) | 5 |
| Windscreen washer pump | electronic |
| Windscreen wiper | 46 |
Fuse rating
| Fuse Number | Ampere | Colour |
| 13,44,50,56,57,62,63 | 5 | beige |
| 3,5,8,16,40,42,45,49,51,(54 Diesel),55 | 7,5 | brown |
| 15,20,64 | 10 | red |
| 12,14,41,43,47,48,52,(53,54 gasoline),61 | 15 | blue |
| 4,17,18,19,31 | 20 | yellow |
| 9,26,37,(53 Diesel) | 25 | white |
| 1,2,21,22,25,27,29,32,33,34,35,38 | 30 | green |
| 10,30,46,58,60,65 (Maxi) | 40 | amber |
| 59 (Maxi) | 50 | red |
Mercedes Class C w203 – fuse box – luggage compartment

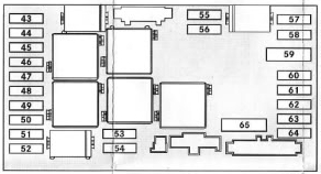
Mercedes Class C w203 – fuse box – passenger compartment

Mercedes Class C w203 – fuse box – engine compartment

WARNING: Terminal and harness assignments for individual connectors will vary depending on vehicle equipment level, model, and market.
