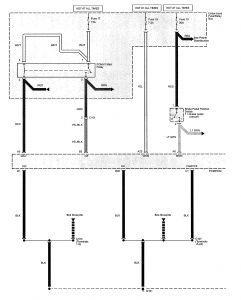
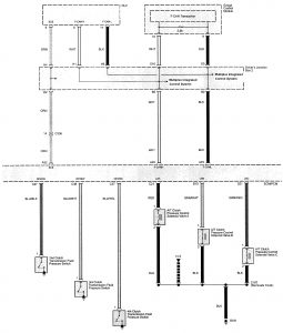
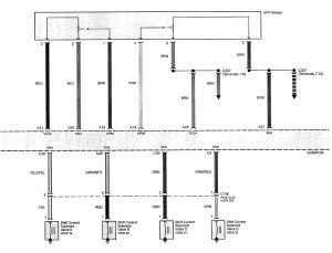
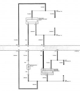
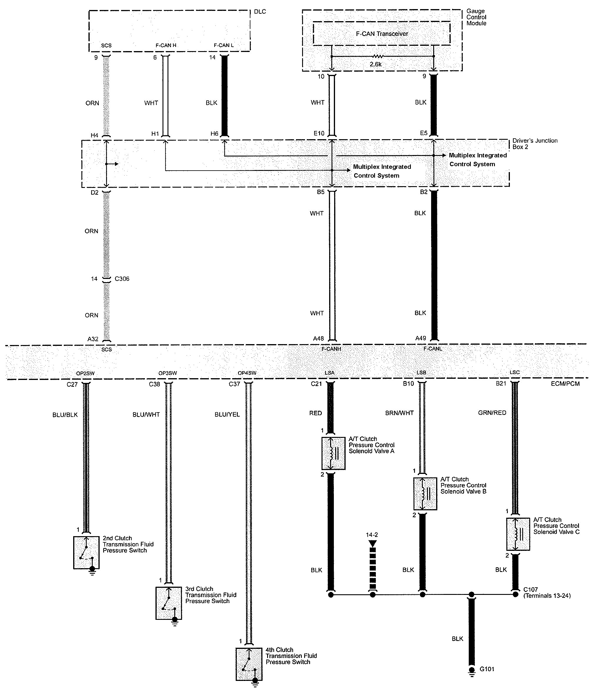
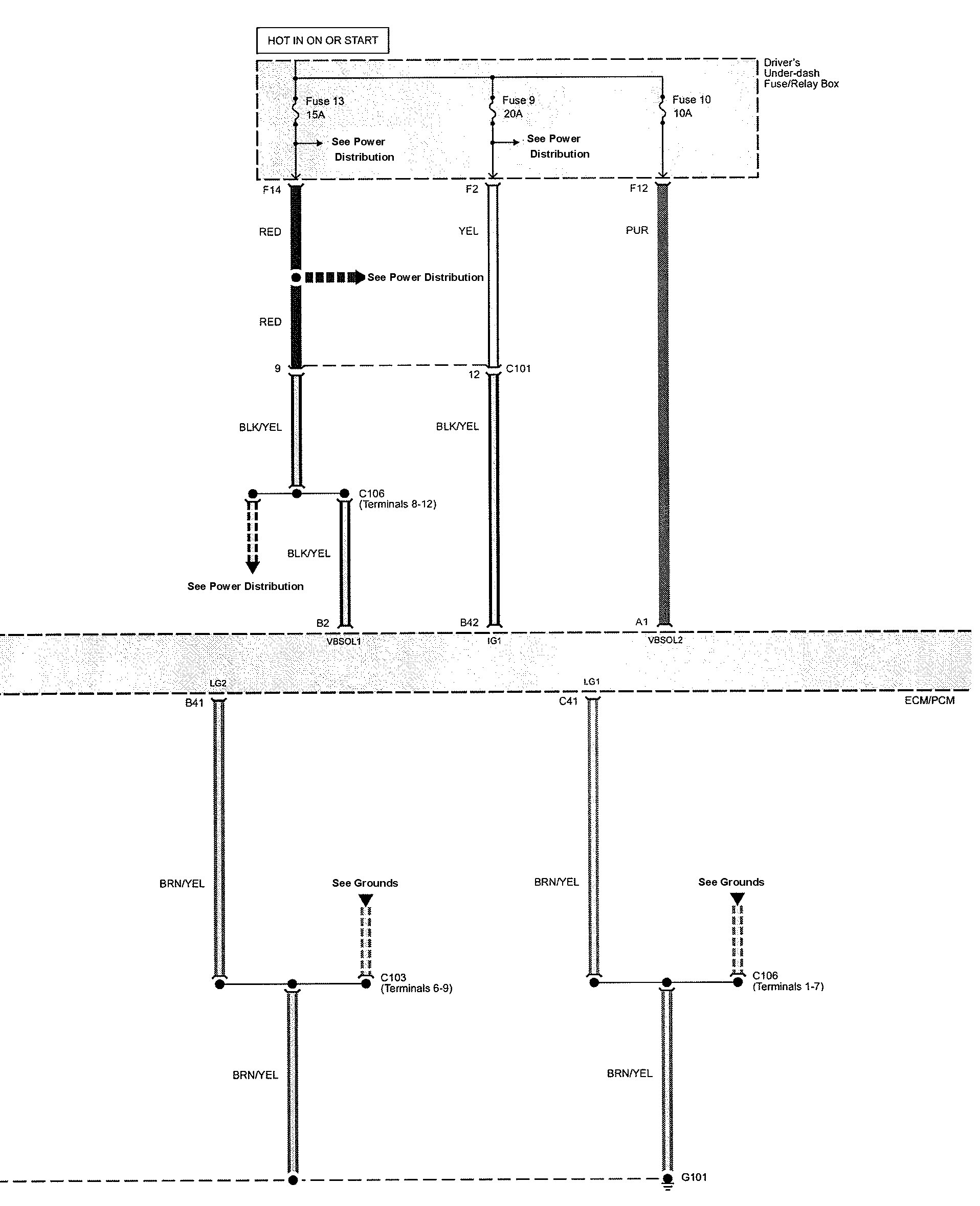
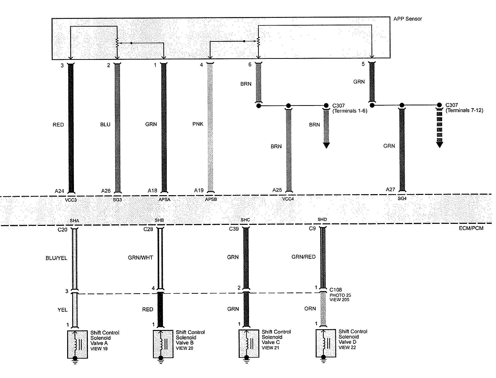
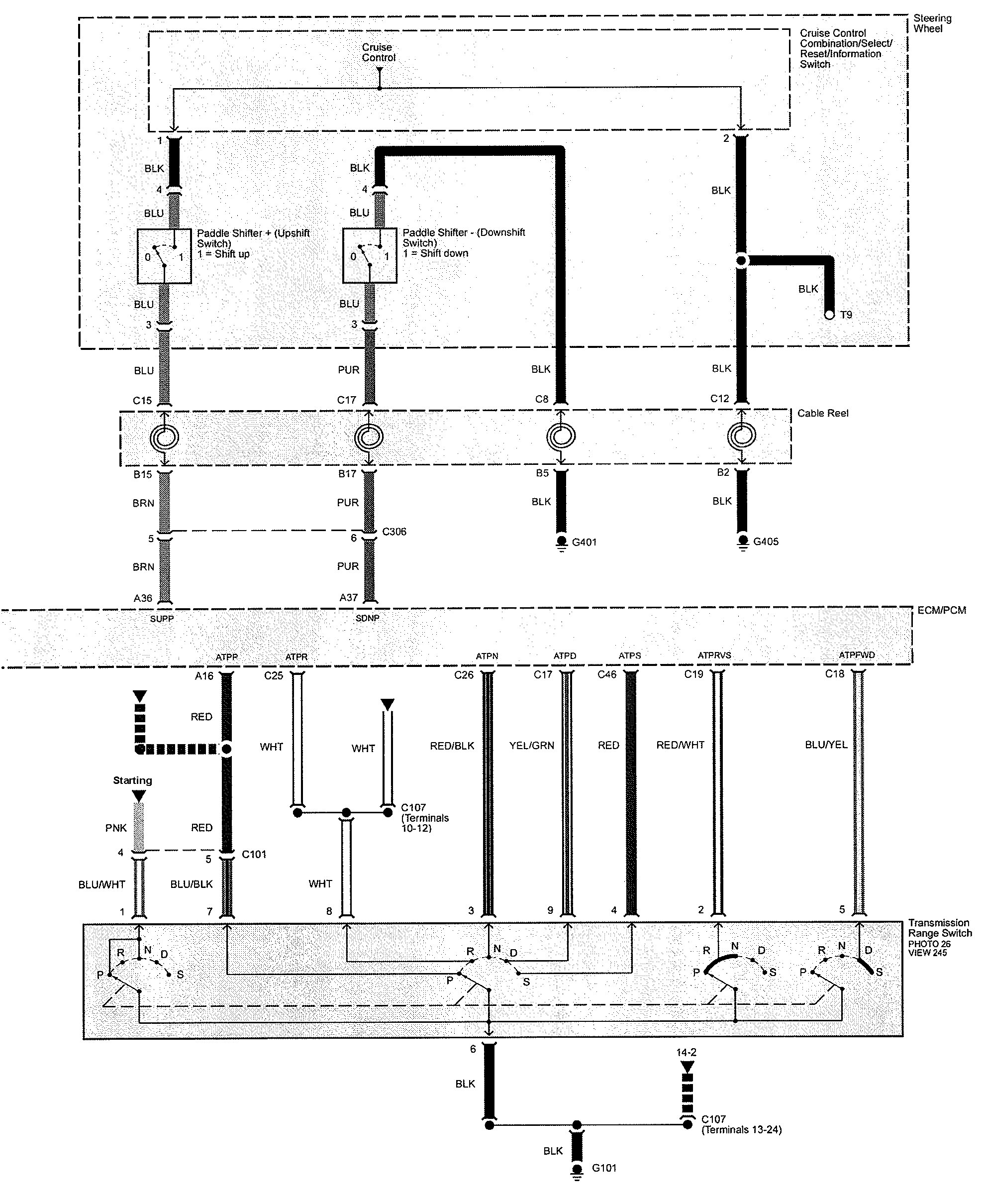
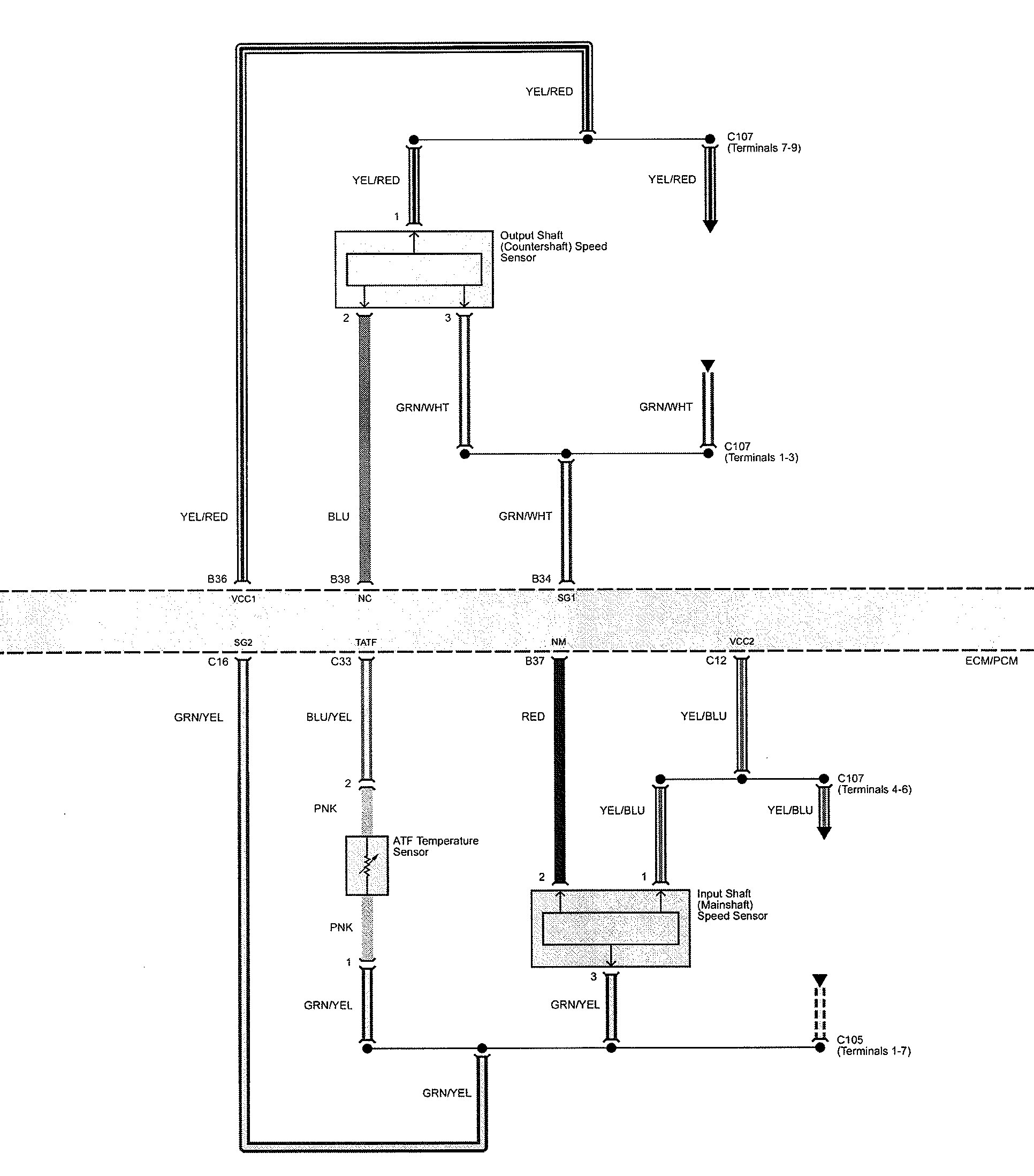
Acura TL (2009) – wiring diagrams – transmission controls
Year of productions: 2009
Transmission controls
Version 1

Version 2






WARNING: Terminal and harness assignments for individual connectors will vary depending on vehicle equipment level, model, and market.
