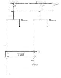
Acura TL (2003 – 2004) – wiring diagrams – clock

Acura TL (2003 – 2004) – wiring diagrams – clock

Year of productions:  2003, 2004

Clock

Acura TL – wiring diagram – clock

WARNING: Terminal and harness assignments for individual connectors will vary depending on vehicle equipment level, model, and market.