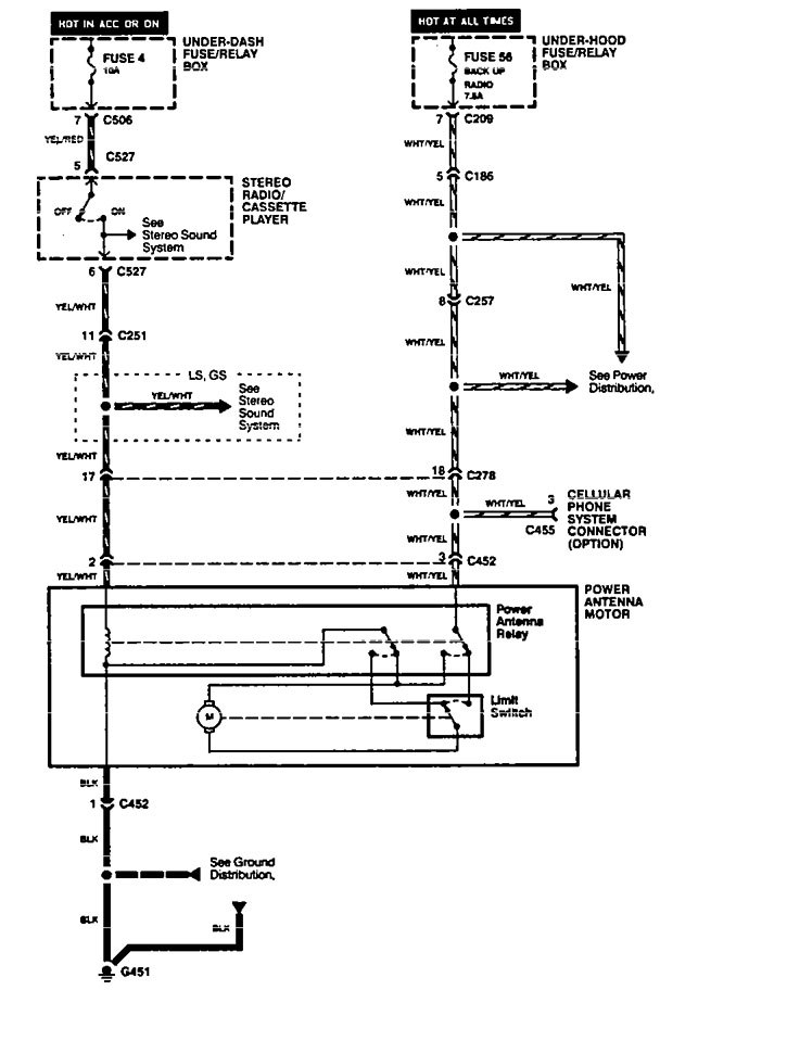
Acura Legenda (1994 – 1995) – wiring diagrams – antenna
Year of productions: 1994, 1995
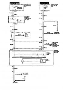
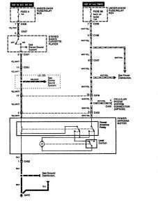
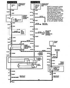
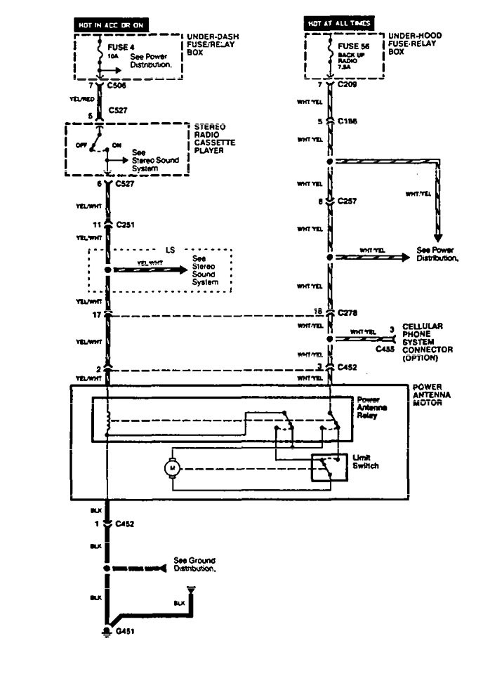
Antenna
Version 1

Version2

Version 3

WARNING: Terminal and harness assignments for individual connectors will vary depending on vehicle equipment level, model, and market.
