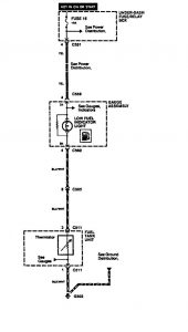
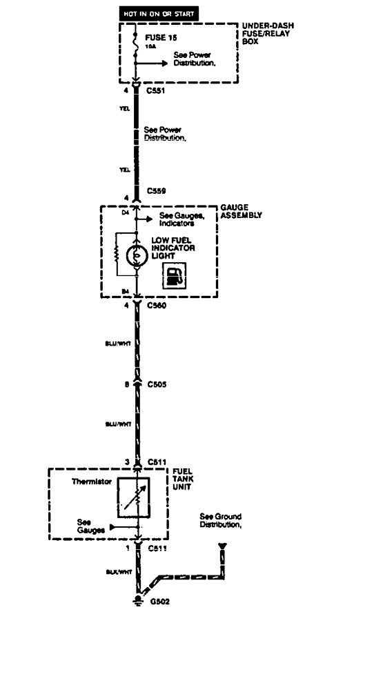
Acura Integra (1994 – 2001) – wiring diagrams – fuel warning
Year of productions: 1994, 1995, 1996, 1997, 1998, 1999, 2000, 2001
Fuel warning

WARNING: Terminal and harness assignments for individual connectors will vary depending on vehicle equipment level, model, and market.

Leave a Reply