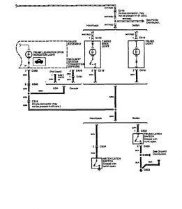
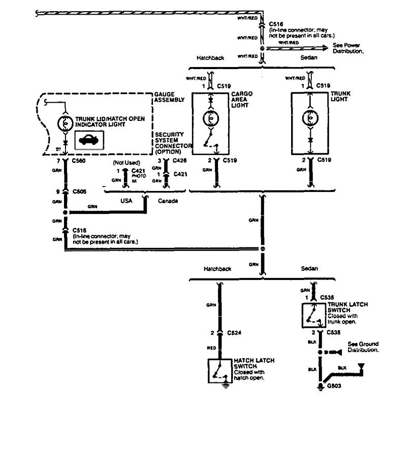
Acura Integra (1994 – 1996) – wiring diagrams – luggage compartment lamps
Year of productions: 1994, 1995, 1996
Luggage compartment lamps


WARNING: Terminal and harness assignments for individual connectors will vary depending on vehicle equipment level, model, and market.
