Renault Espace (2002 – 2006) – fuse box diagram
Year of production: 2002, 2003, 2004, 2005, 2006
Fuse box on the dashboard

Renault Espace – fuse box diagram – dashboard
| Number | Ampere rating [A] | Allocation |
| F1 | — | — |
| F2 | 10 | UCH supply – Card reader – Starter push button – Automatic parking brake |
| F3 | 10 | Voice synthesiser – Xenon bulb beam adjustment – Instrument panels -Demisting jets – Headlight adjustment tumblewheel |
| F4 | 20 | Reversing lights – Heating and air conditioning – Parking aid – + After ignition alarm signal – Switch control lighting – Rain sensor – Electrochrome door mirrors – Air conditioning compressor – Wiper motor signal |
| F5 | 15 | Timed interior lighting |
| F6 | 20 | Brake lights – Wiper stalk – Diagnostic socket – Child locking indicator – Rear electric lock indicator – Electric window switches lighting – cruise control -Hands-free kit connection |
| F7 | 15 | Left-hand dipped beam headlight – Xenon bulb computer – Beam adjustment motor |
| F8 | 7,5 | Right-hand side light |
| F9 | 15 | Hazard warning lights and indicators |
| F10 | 10 | Communication system – Radio – Driving position memory – Seat relay – Rear electric window relay feed |
| F11 | 30 | Voice synthesiser – Instrument panel – Front fog lights – Air conditioning |
| F12 | 5 | Airbags and pretensioners |
| F13 | 5 | ABS computer – Electronic Stability Program |
| F14 | 15 | Audible alarm (beeper) |
| F15 | 30 | Driver’s side front window lift – Electric door mirrors |
| F16 | 30 | Passenger’s electric window |
| F17 | 10 | Rear fog lights |
| F18 | 10 | Heated door mirrors |
| F19 | 15 | Right-hand dipped headlight |
| F20 | 7,5 | Left-hand side light – Lighting dimmer and glove box – Registration plate lighting -Cigarette lighter lighting – Switch lighting except doors and hazard warning lights – Parking brake control lighting |
| F21 | 30 | Main beam headlights and rear wiper |
| F22 | 30 | Central door locking |
| F23 | 15 | Console accessories sockets |
| F24 | 15 | Cigarette lighter |
| F25 | 10 | Steering column lock – Heated rear screen relay supply |

| Track | Description |
| RELAY | |
| R2 | Heated rear screen |
| R7 | Front fog lights |
| R9 | Windscreen wiper |
| R10 | Windscreen wiper |
| R11 | Rear screen – Reversing lights |
| R12 | Door lock |
| R13 | Door lock |
| R18 | Timed interior lighting |
| R19 | Relay plate |
| R21 | Starting inhibition |
| R22 | UCH – + after ignition |
| R23 | Accessories, retro-fitted radio – Rear electric window |
| Shunt | |
| SH1 | Rear electric windows |
| SH2 | Front electric windows |
| SH3 | Daytime running lights |
| SH4 | Daytime running lights |
Central console
The consumer cut-out fuse is located in the central console, under the covering of the storage armrest.

| Number | Ampere rating [A] | Descxription |
| F50 | 20 | Consumer cut-off fuse: Diagnostic socket – Radio – Seat memory aid computer – Clock-exterior temperature assembly – Navigation aid computer – central communications unit – Alarm connection – Tyre pressure receiver |

| Number | Ampere rating [A] | Description |
| F32 | — | — |
| F33 | — | — |
| F34 | 15 | Driver’s electric seat feed |
| F35 | 20 | Driver’s and passenger’s heated seats |
| F36 | 20 | Driver’s electric seat |
| F37 | 20 | Passenger’s electric seat |
| Relay | ||
| R3 | Seat supply | |
| R4 | Sidelight for daytime running lights | |
| R5 | Dipped beam headlights for daytime running lights | |
| R6 | Headlight washers pump | |
| R7 | Brake lights cut-off | |
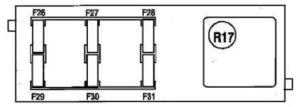
| Number | Ampere rating [A] | Description |
| F26 | 30 | Caravan socket |
| F27 | 30 | Sunroof |
| F28 | 30 | Rear left-hand electric window |
| F29 | 30 | Rear right-hand electric window |
| F30 | 5 | Steering wheel angle sensor |
| F31 | 30 | Curtain sunroof |
| Relay | ||
| R7 | Air conditioning | |

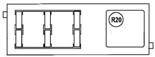
| Number | Description |
| R20 | Electric window |
WARNING: Terminal and harness assignments for individual connectors will vary depending on vehicle equipment level, model, and market.

