Fiat Qubo (from 2007) – fuse box diagram
Year of production: 2007, 2008, 2009, 2010, 2011, 2012, 2013, 2014, 2015, 2016
Fuse box in engine compartment
| Device protected | Fuse | Ampere rating [A] |
| Computer Body | F01 | 60 |
| Available | F02 | — |
| Starter system | F03 | 20 |
| ABS (pump) | F04 | 40 |
| Available | F05 | — |
| One-speed engine cooling electric fan (75W)/ Low speed engine cooling electric fan (187W) | F06 | 20 |
| Low speed engine cooling electric fan (350W) | F06 | 30 |
| High speed engine cooling electric fan (187W) | F07 | 30 |
| High speed engine cooling electric fan (350W) | F07 | 40 |
| Climate system electric fan | F08 | 30 |
| Available (trailer kit) | (F09) | (15) |
| Buzzers | F10 | 10 |
| Engine control system (secondary loads) | F11 | 10 |
| Main beam headlights | F14 | 15 |
| Available | F15 | — |
| +15 Engine control unit/Relay reel T20 | F16 | 7,5 |
| Engine control unit (1.4 version) | F17 | 10 |
| Engine control unit (1.3 Multijet version) | F17 | 10 |
| Relay reel T09 (version 1.4) | F18 | 7,5 |
| Engine control unit/Relay reel T09 (1.3 Multijet version) | F18 | 7,5 |
| Climate system compressor | F19 | 7,5 |
| Rear heated window/Mirror demisters | F20 | 30 |
| Fuel pump | F21 | 15 |
| Engine control unit (1.3 Multijet version) | F22 | 15 |
| Injectors/Ignition reel (1.4 version) | F22 | 15 |
| ABS (valves) | F23 | 20 |
| +15ABS | F24 | 7,5 |
| Fog lights | F30 | 15 |
| Plug heating unit (1.3 Multijet version) | F81 | 50 |
| Available | F83 | — |
| Cigar lighter/Passenger compartment current outlets/Heated seats | F85 | 30 |
| +15 Reverse lights/decimetre/Water sensor in diesel fuel/ Reels for relays T02, T05, T14, T17 and T19 | F87 | 7,5 |
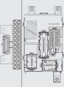
Fuse box in passenger compartment
| Device protected | Fuse | Ampere rating [A] |
| Dipped beam headlight (on passenger’s side) | F12 | 7,5 |
| Dipped beam headlight (on driver’s side)/Headlight aiming control | F13 | 7,5 |
| INT/A relay reels SCM | F31 | 5 |
| Timed internal lighting | F32 | 7,5 |
| Bluetooth sound system/central unit node/Blue&Me node/Troubleshooting outlet for EOBD system/Volumetric alarm control unit/Alarm siren control unit | F36 | 10 |
| Instrument panel/Stop light control node (NA) | F37 | 5 |
| Door/boot lock actuators | F38 | 20 |
| Widow/rear window washer two direction pump | F43 | 15 |
| Front power window (on driver’s side) | F47 | 20 |
| Front power window (on passenger’s side) | F48 | 20 |
| Control lighting/Parking sensor control unit/ Electric door mirror control/Volumetric alarm control unit | F49 | 4 |
| Airbag control unit | F50 | 7,5 |
| INT Sound system node/Bluetooth central unit node/Blue&Me node/ Movement of electric door mirrors/Clutch switch/Stop light control (NC) | F51 | 5 |
| Instrument panel node | F53 | 5 |
| Door mirror defrosters | F41 | 7,5 |
| Available | F45 | — |
| Available | F46 | — |
| Available | F90 | — |
| Available | F91 | — |
| Available | F92 | — |
| Available | F93 | — |
| Cigar lighter / Passenger compartment current outlet | F94 | 15 |
| Available | F95 | — |
| Cigar lighter / Passenger compartment current outlet | F96 | 15 |
| Front seat heater (on driver’s side) | F97 | 10 |
| Front seat heater (on passenger’s side) | F98 | 10 |
WARNING: Terminal and harness assignments for individual connectors will vary depending on vehicle equipment level, model, and market.


