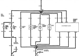
Buick Century (1990 – 1991) – wiring diagrams – interior light dimming
Year of productions: 1990, 1991
Interior light dimming


WARNING: Terminal and harness assignments for individual connectors will vary depending on vehicle equipment level, model, and market.
