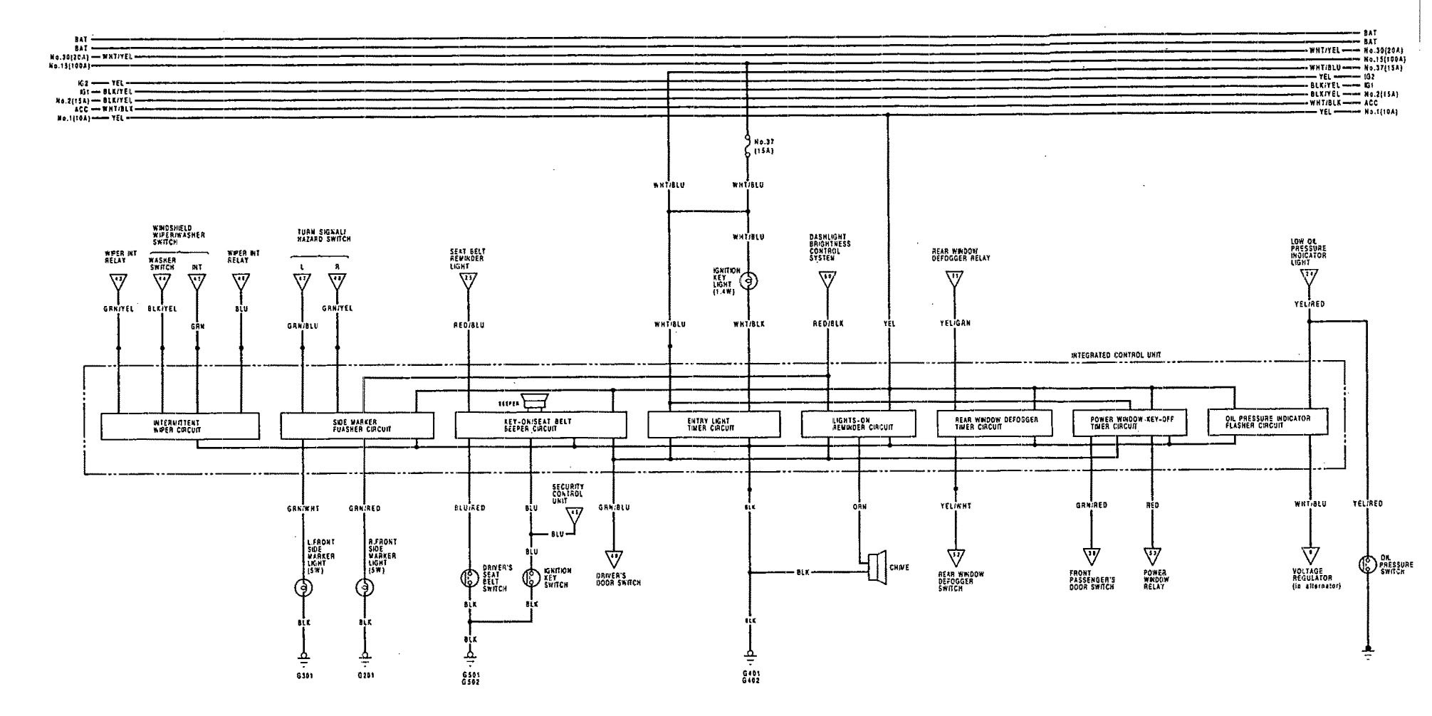
Acura Vigor (1992) – wiring diagrams – driver information center/message center
Year of productions: 1992
Driver information center/message center

WARNING: Terminal and harness assignments for individual connectors will vary depending on vehicle equipment level, model, and market.
