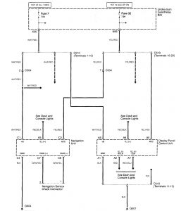
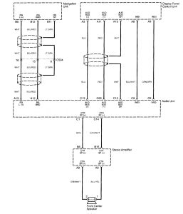
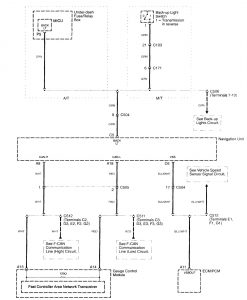
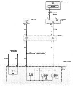
Acura TL (2003 – 2005) – wiring diagram – navigation system
Year of productions: 2003, 2004, 2005
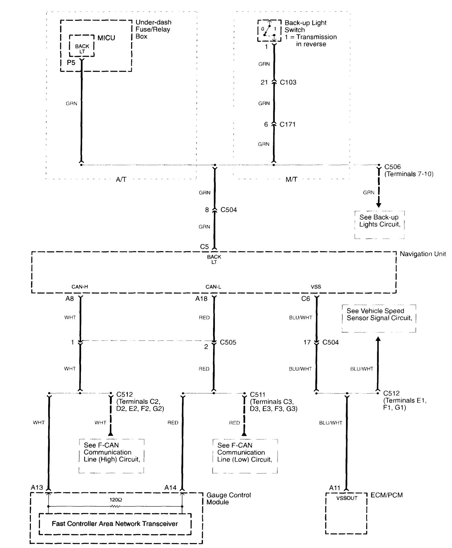
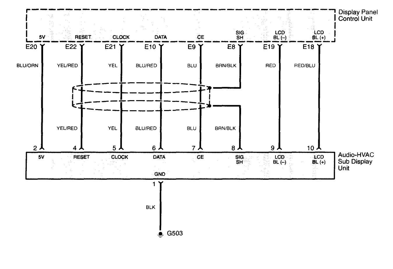
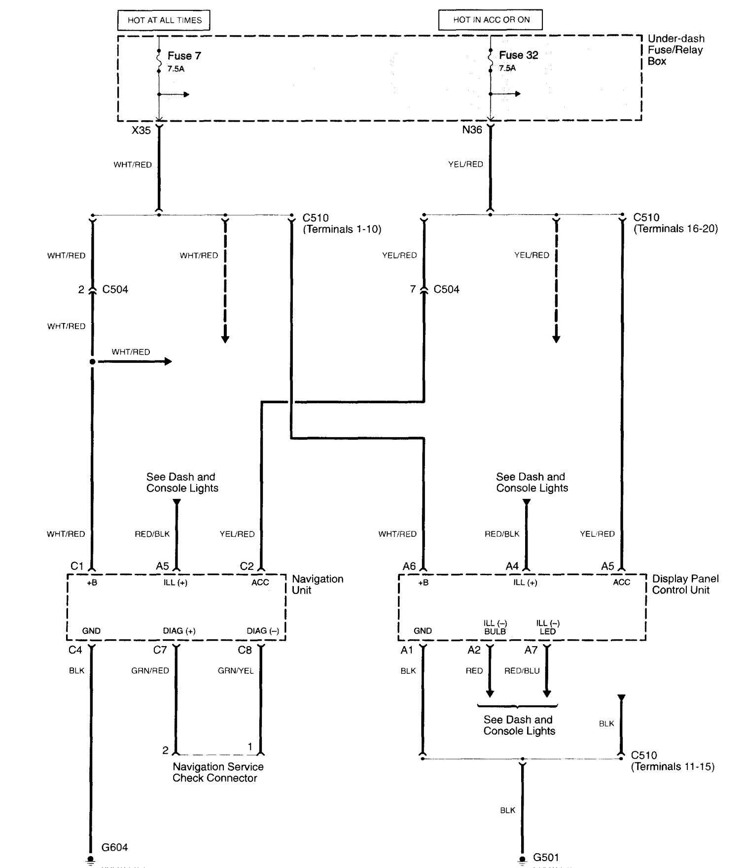
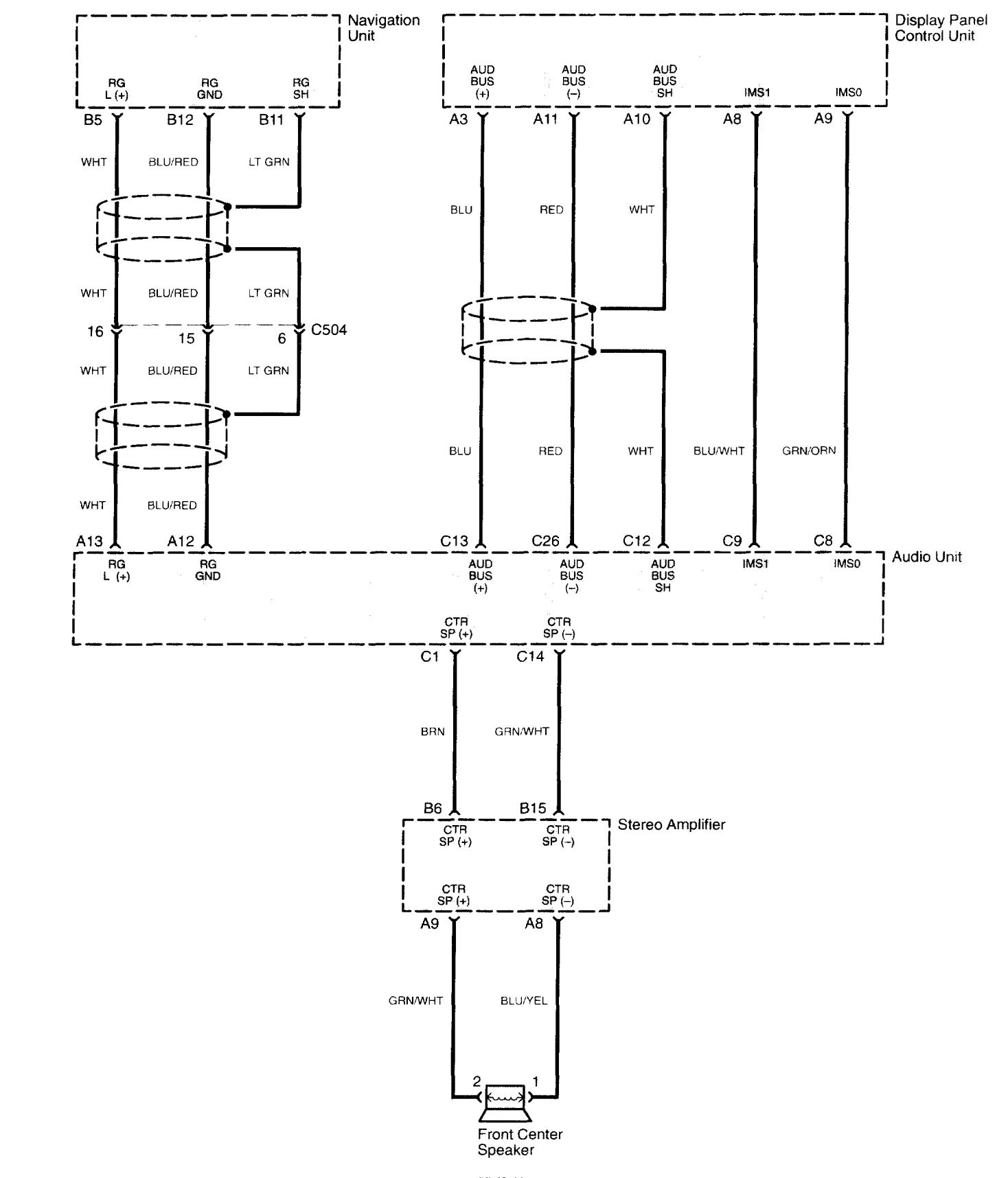
Navigation system







WARNING: Terminal and harness assignments for individual connectors will vary depending on vehicle equipment level, model, and market.
