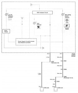
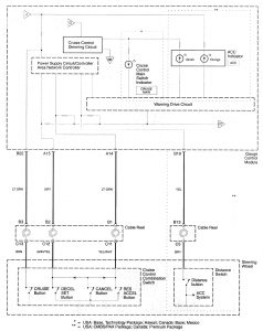
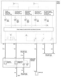
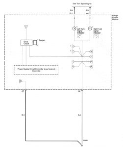
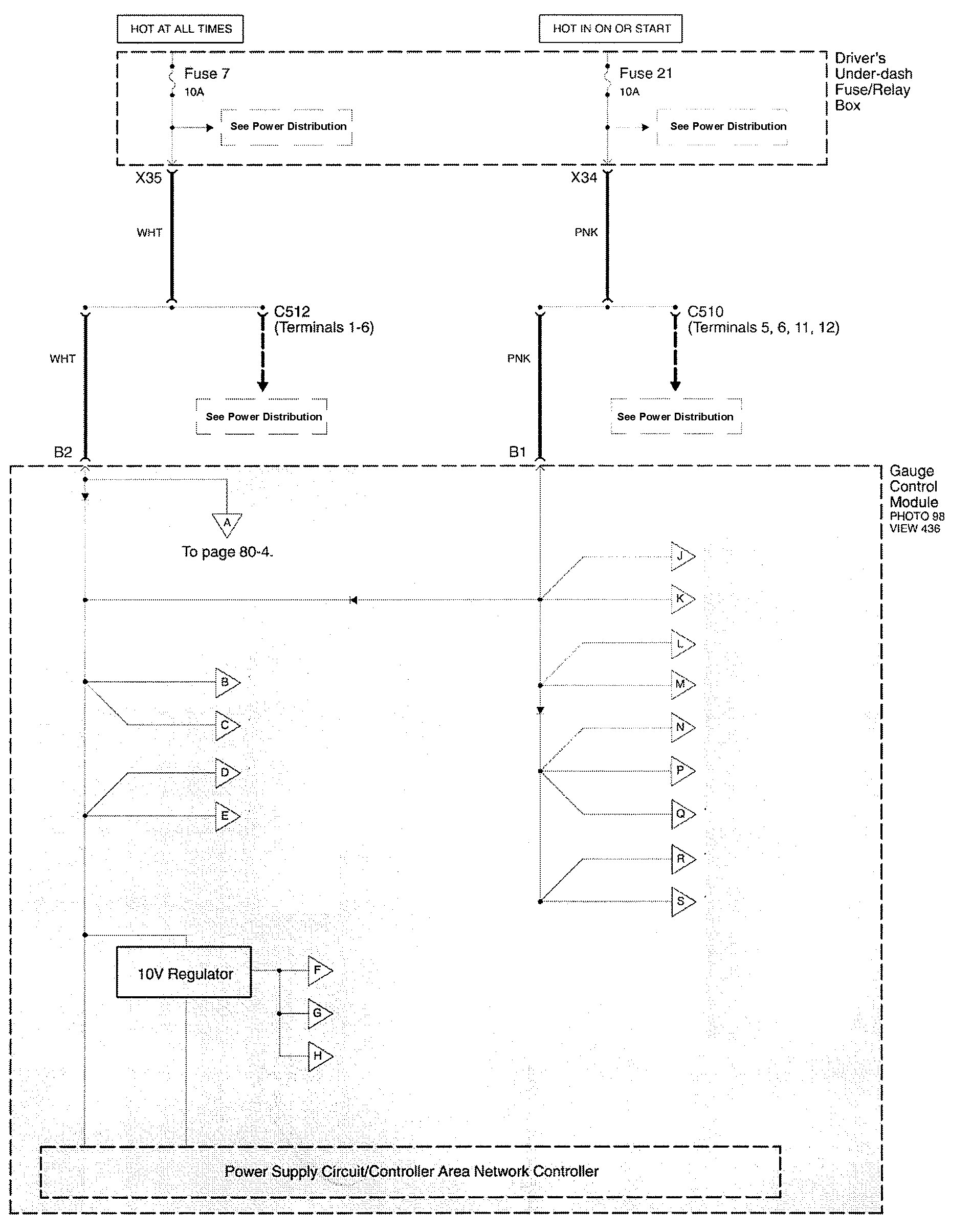
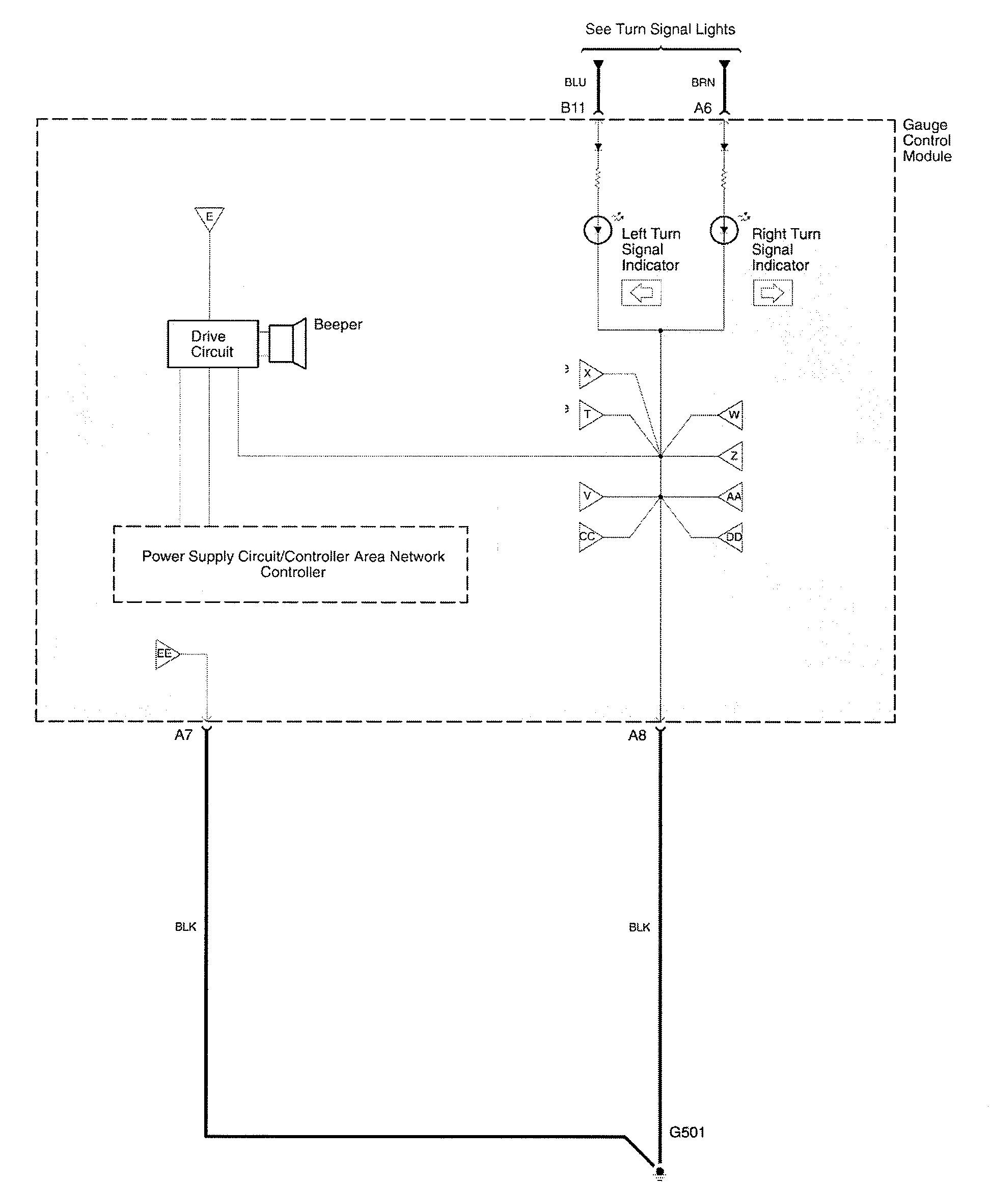
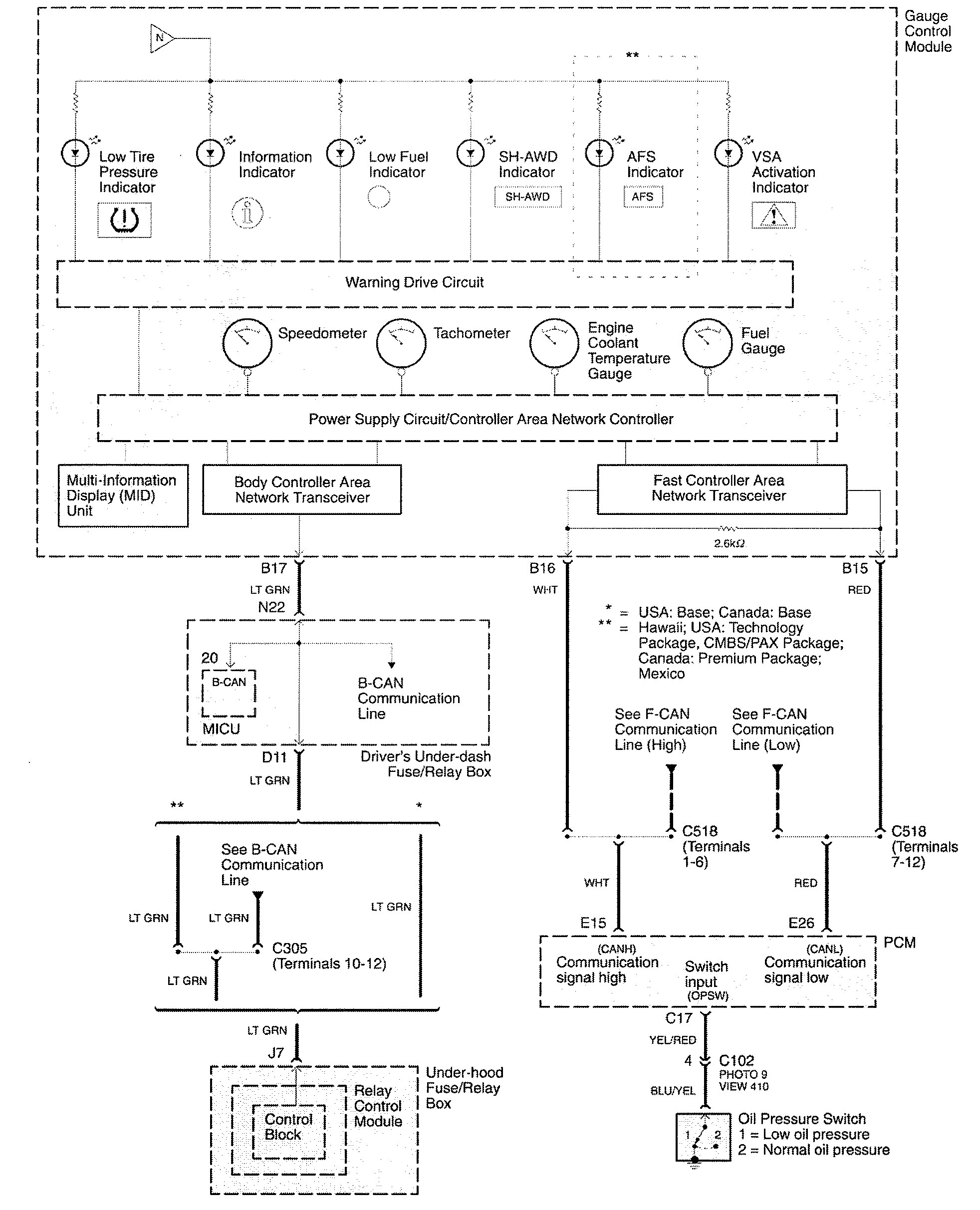
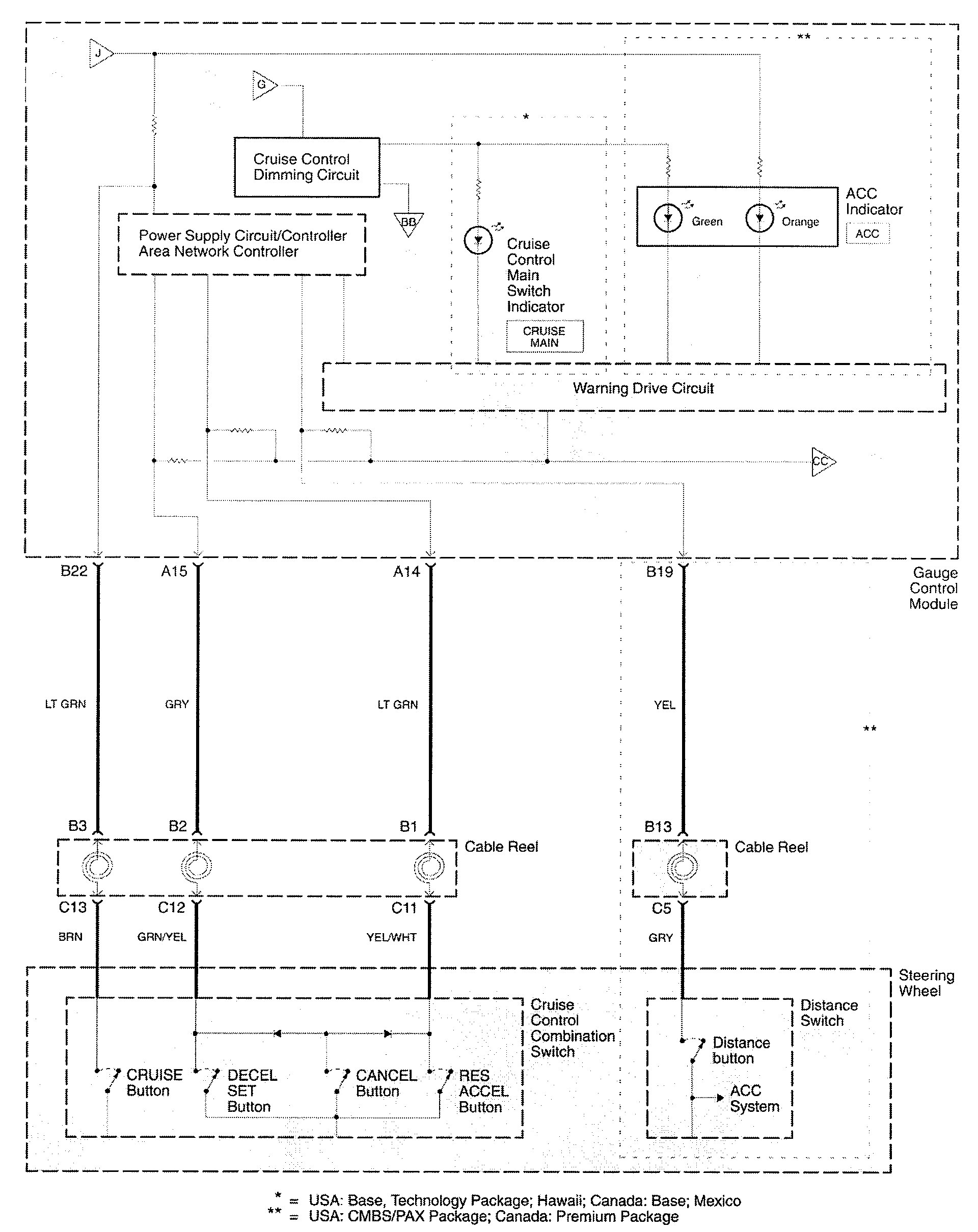
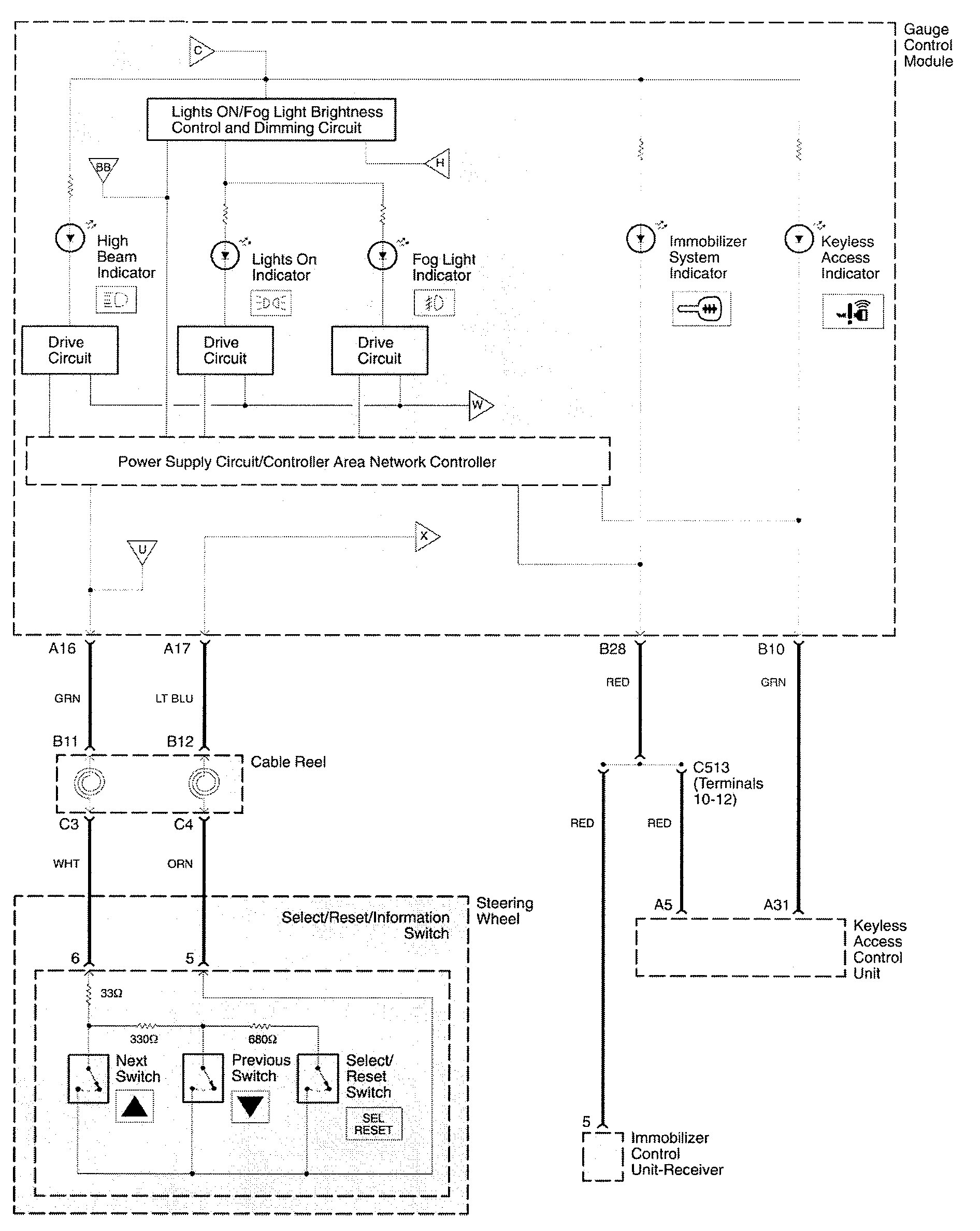
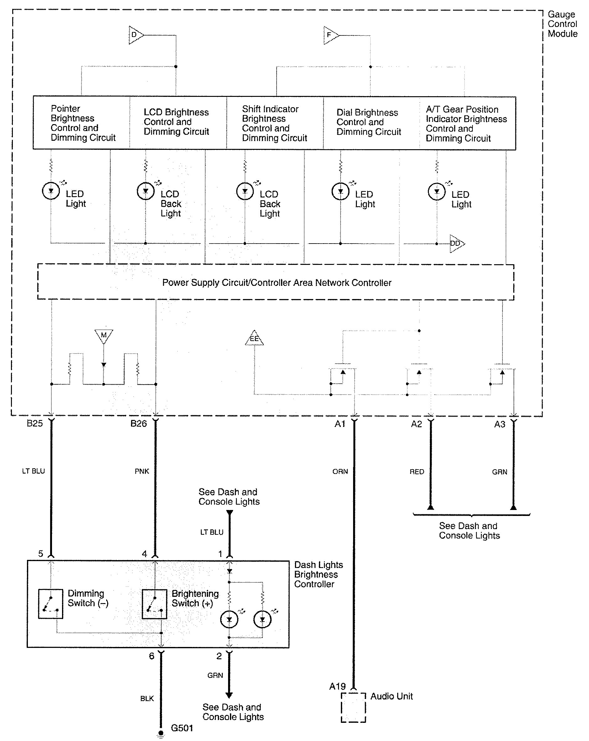
Acura RL (2009) – wiring diagrams – instrumentation
Year of production: 2009
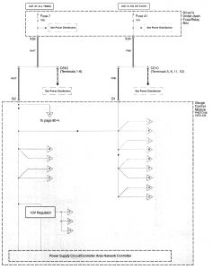
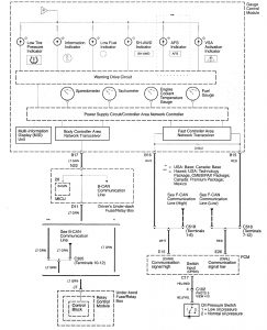
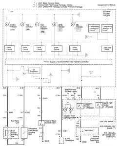
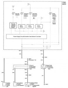
Instrumentation









WARNING: Terminal and harness assignments for individual connectors will vary depending on vehicle equipment level, model, and market.
Year of production: 2009









WARNING: Terminal and harness assignments for individual connectors will vary depending on vehicle equipment level, model, and market.
Copyright © 2026 | MH Magazine WordPress Theme by MH Themes