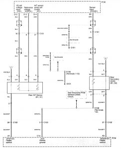
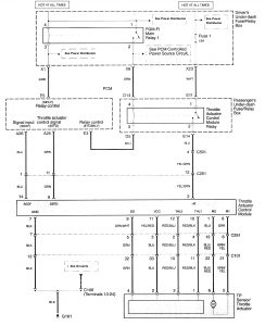
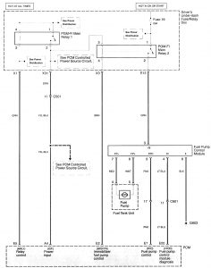
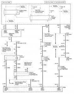
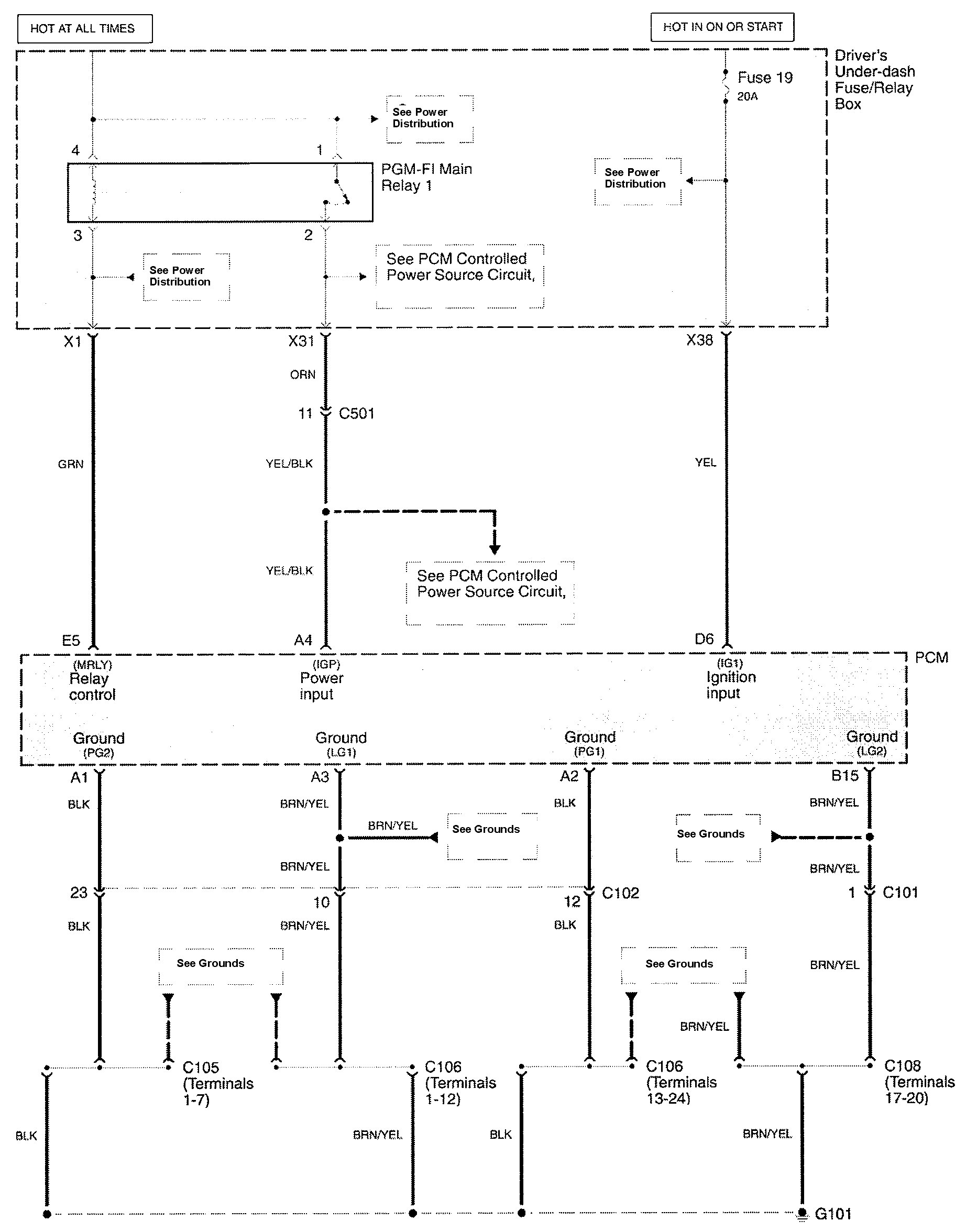
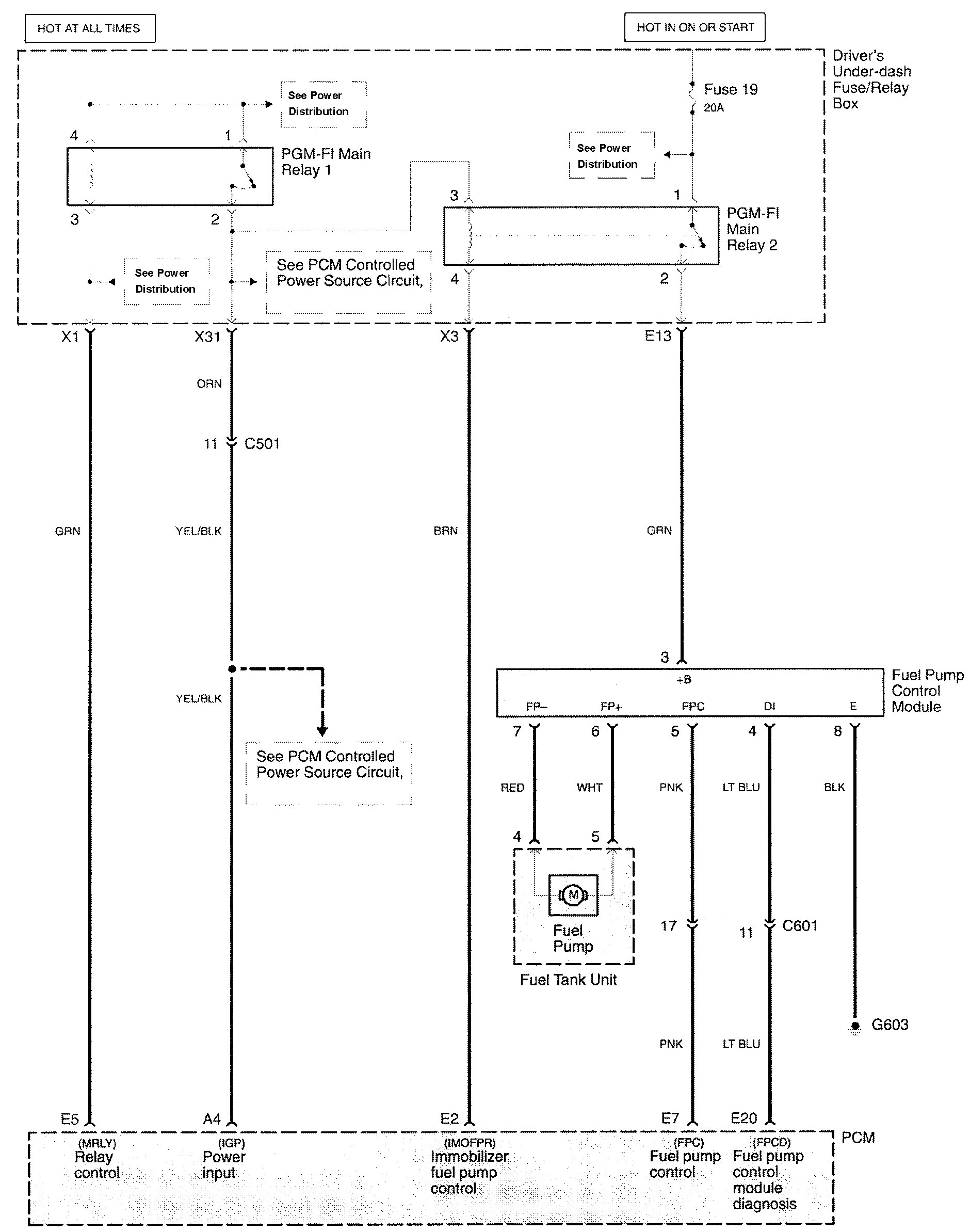
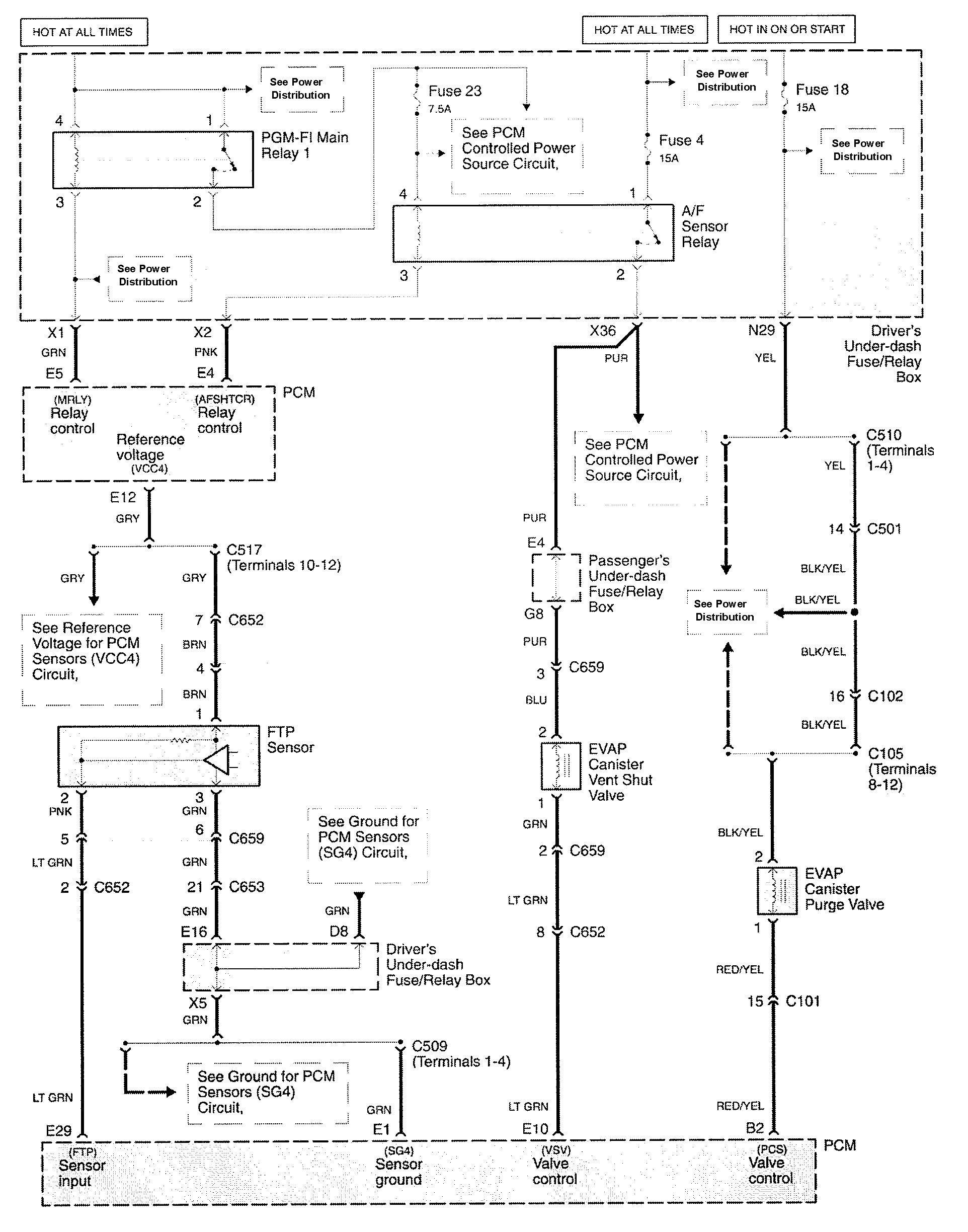
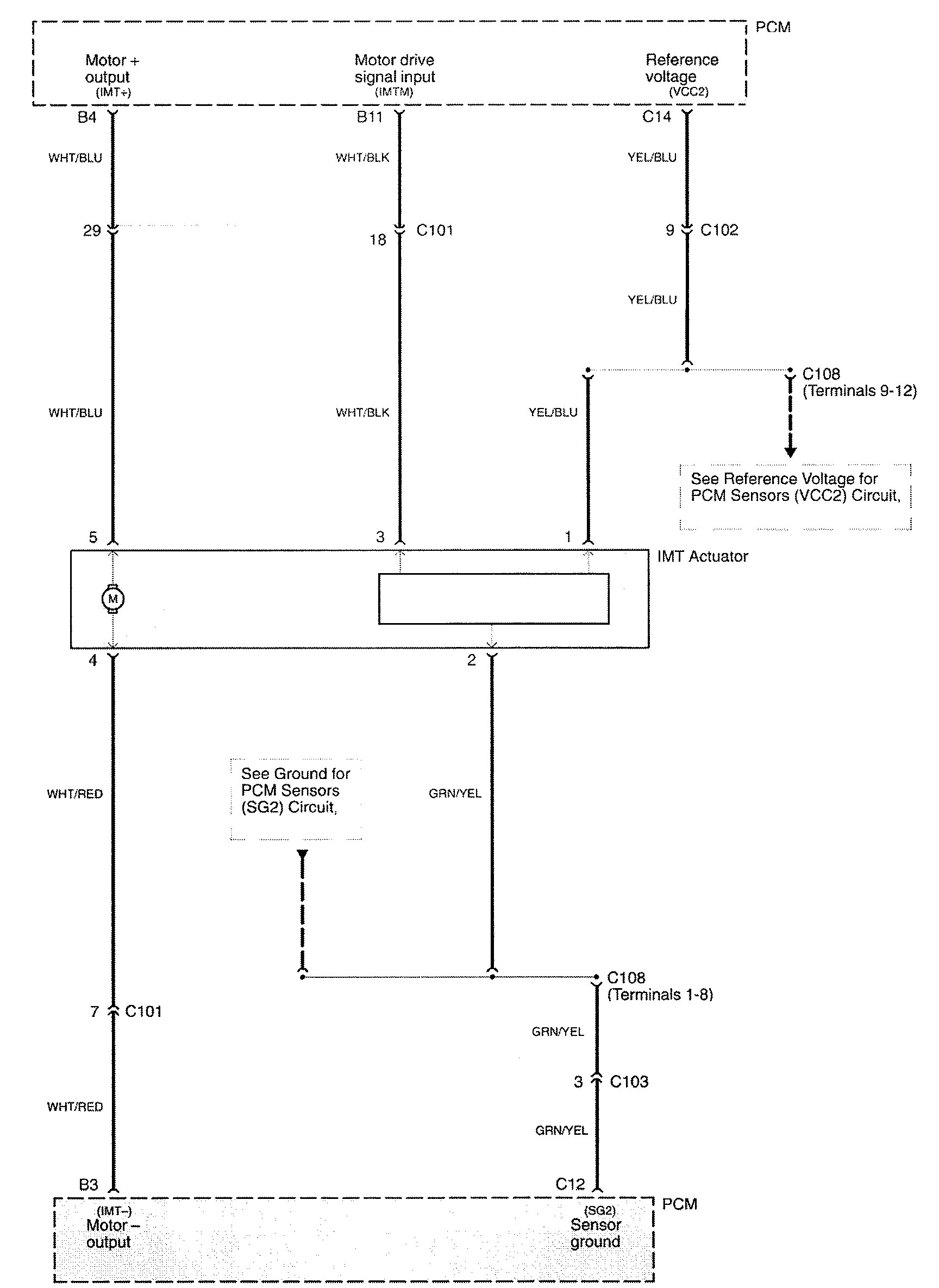
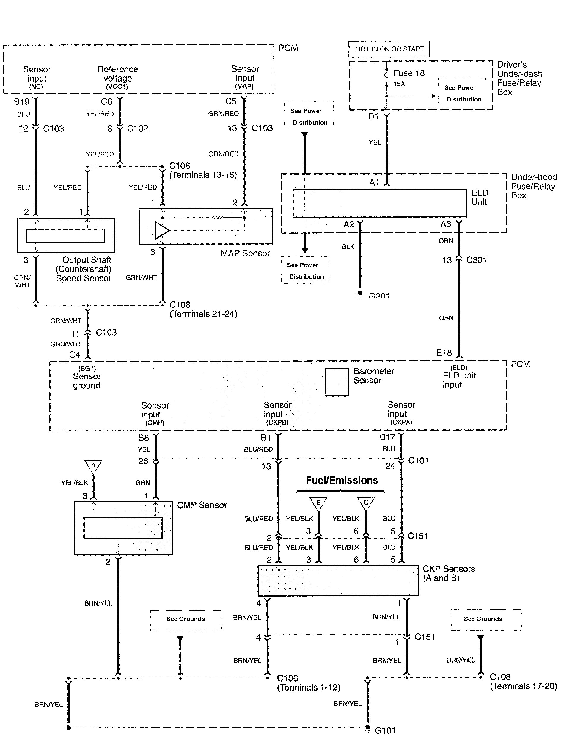
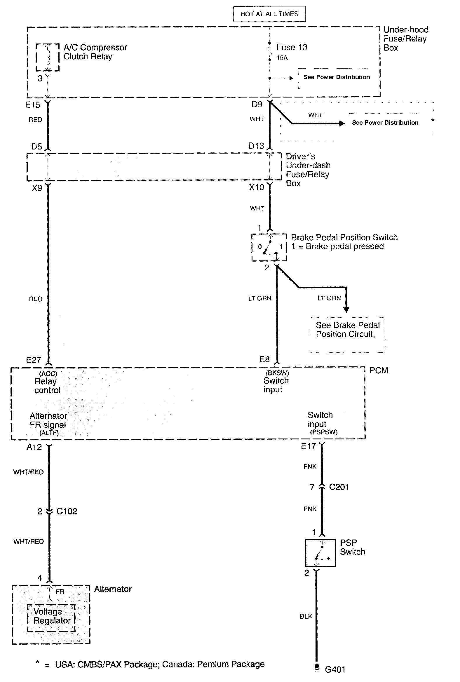
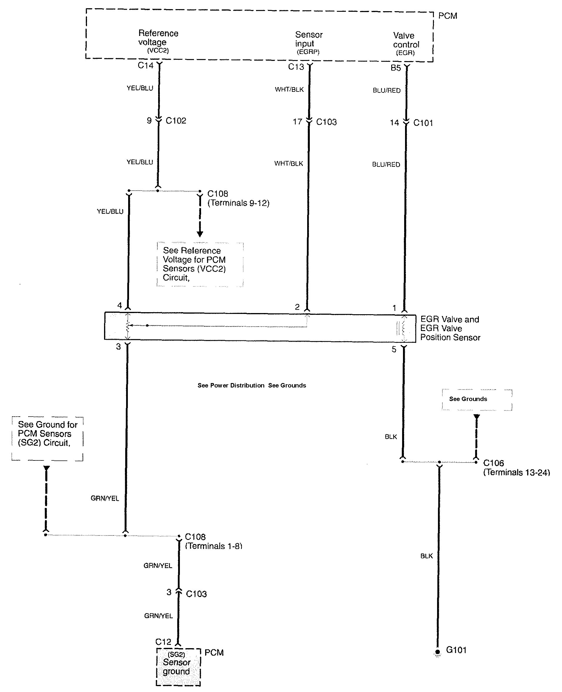
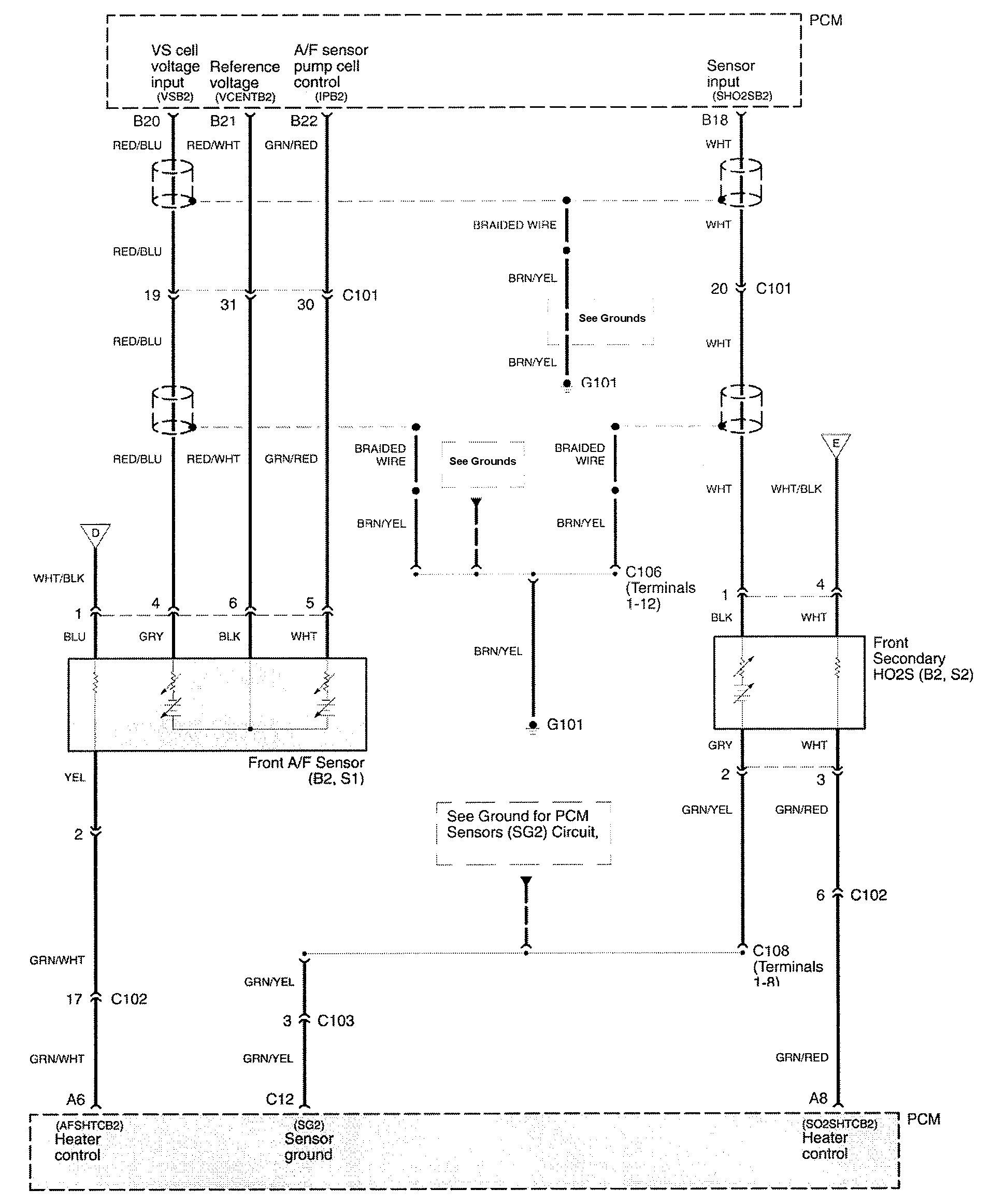
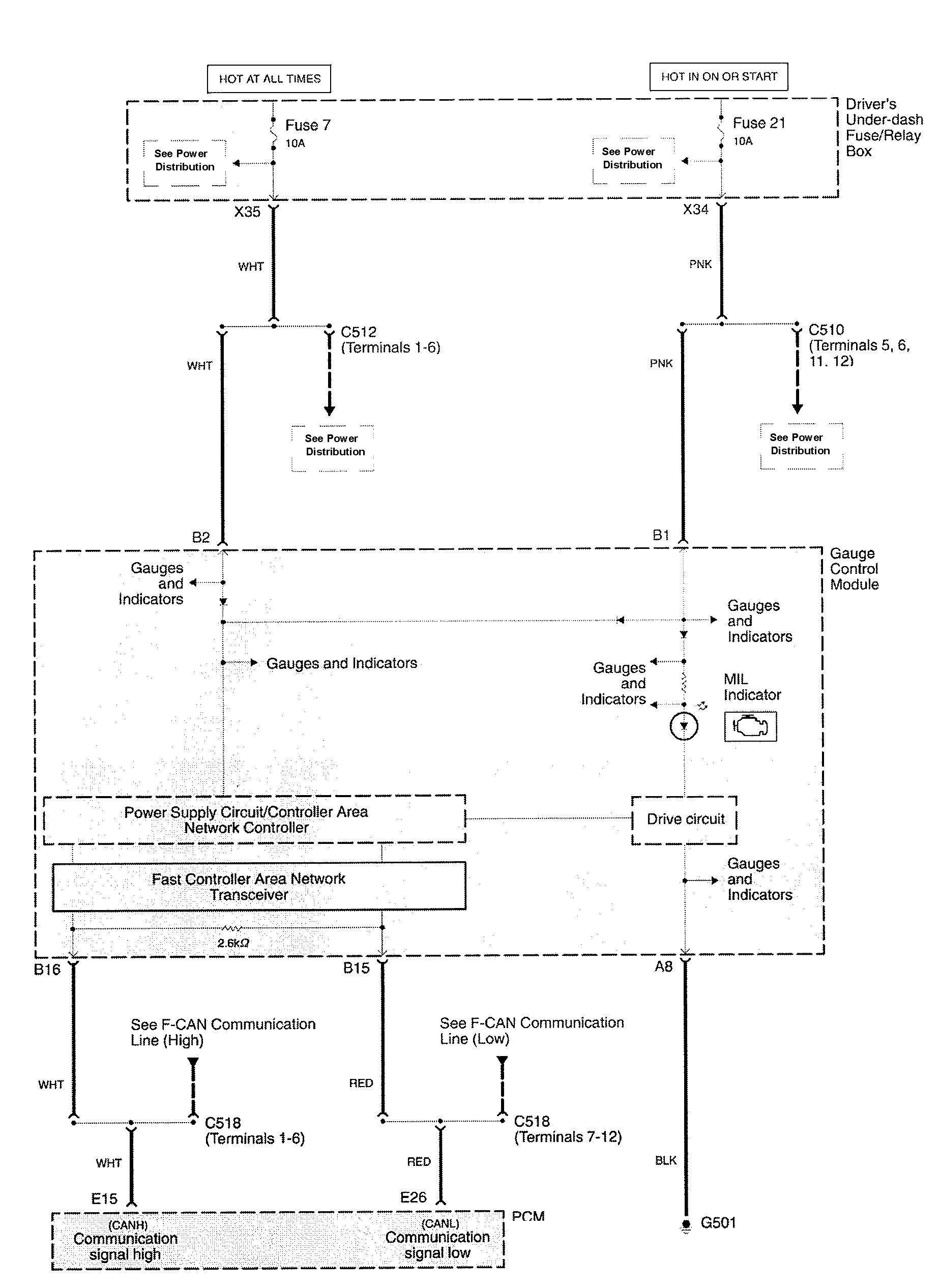
Acura RL (2009 – 2011) – wiring diagrams – fuel controls
Year of productions: 2009, 2010, 2011
Fuel controls

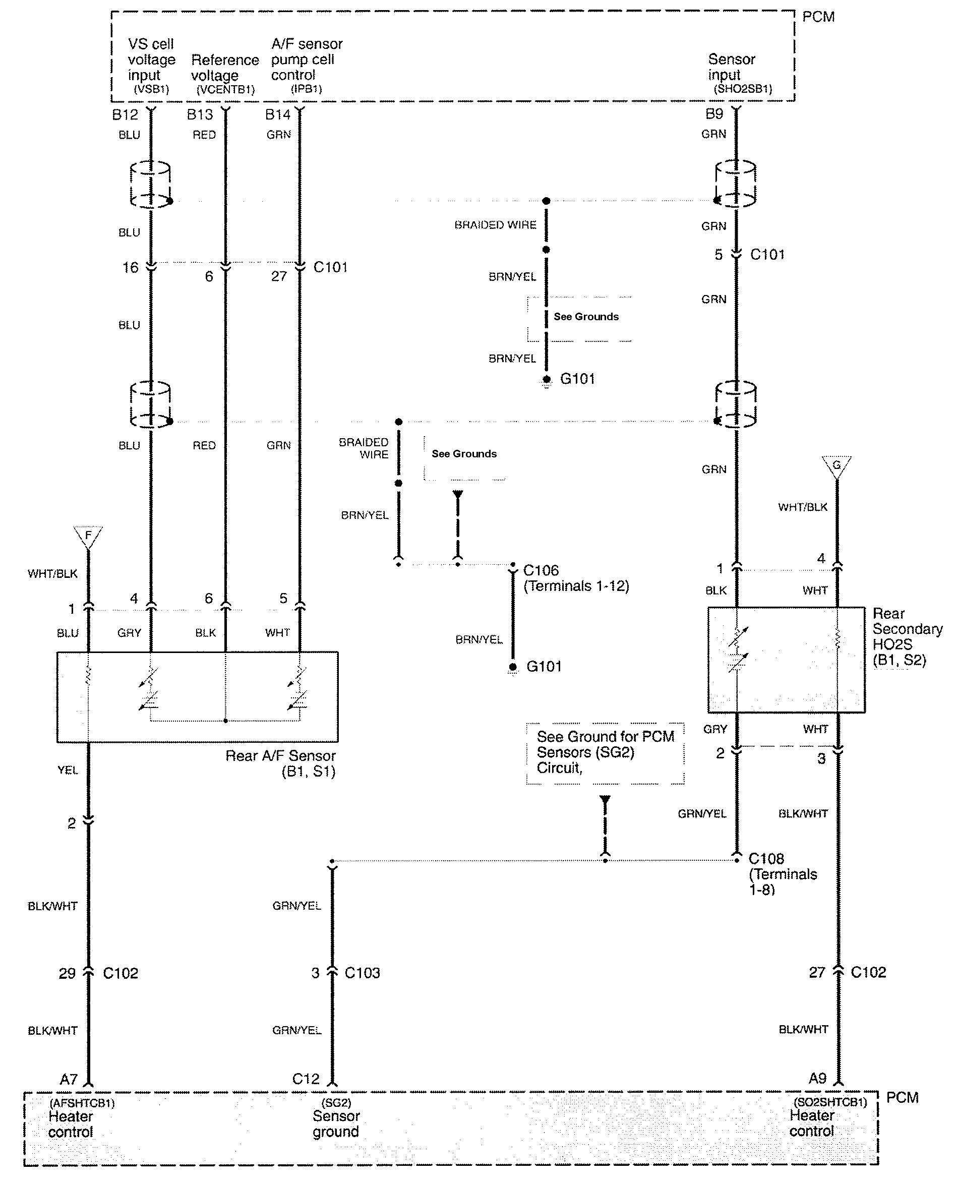
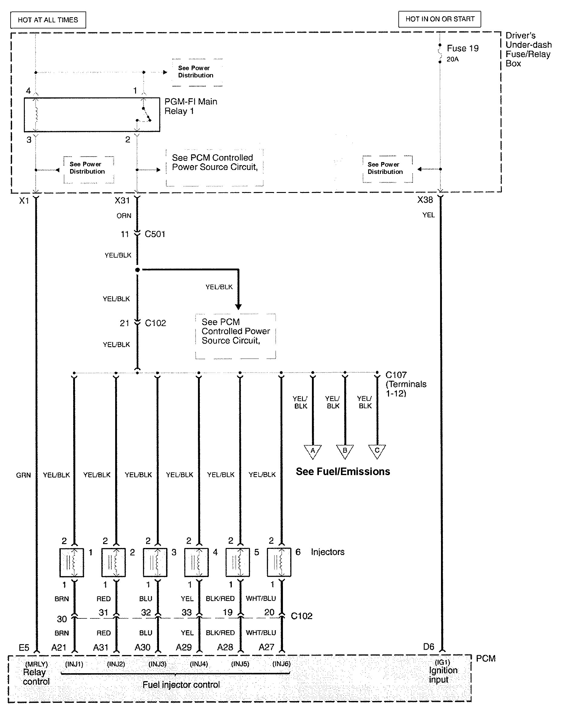
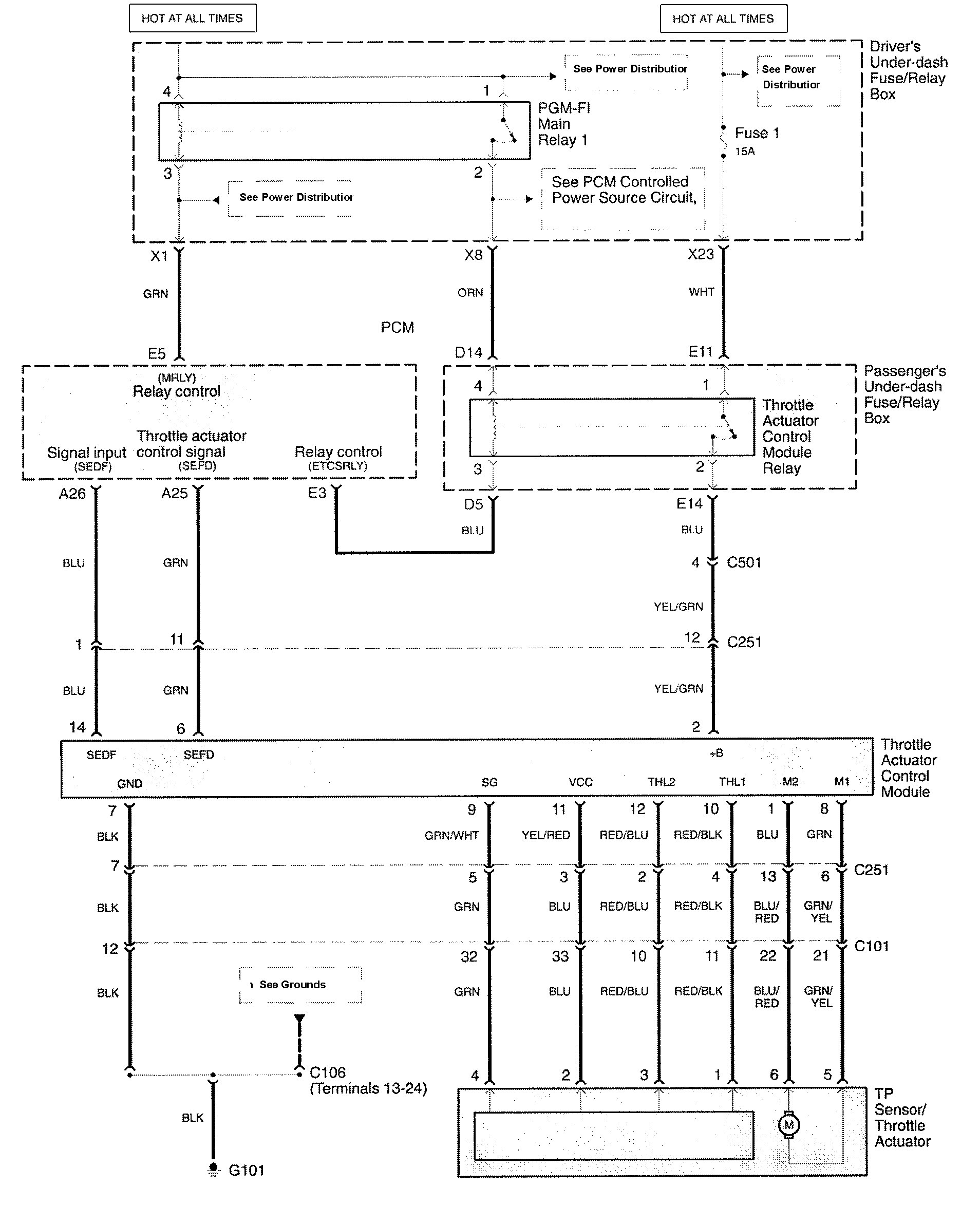
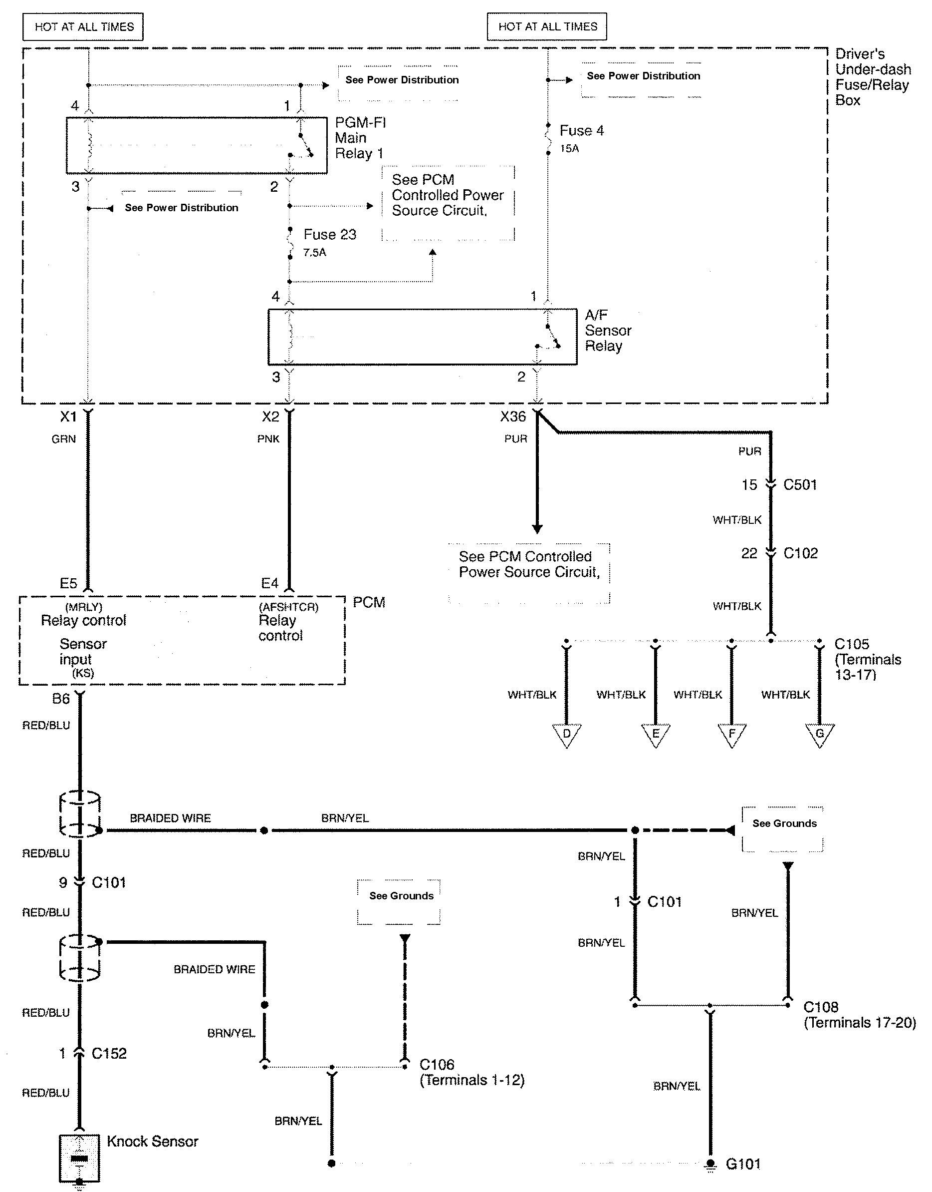
Acura RL – wiring diagram – fuel controls (part 1)

Acura RL – wiring diagram – fuel controls (part 1)













WARNING: Terminal and harness assignments for individual connectors will vary depending on vehicle equipment level, model, and market.
