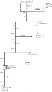
Acura RL (2007 – 2008) – wiring diagrams – engine mount control
Year of productions: 2007, 2008
Engine mount control

WARNING: Terminal and harness assignments for individual connectors will vary depending on vehicle equipment level, model, and market.
