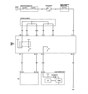
Acura RL (2006) – wiring diagrams – steering controls
Year of productions: 2006
Steering controls
Version 1


Version 2

WARNING: Terminal and harness assignments for individual connectors will vary depending on vehicle equipment level, model, and market.
