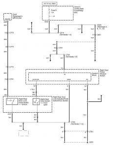
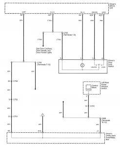
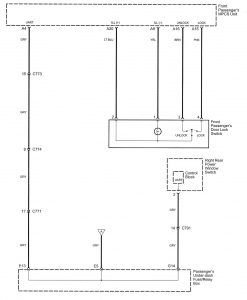
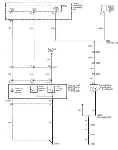
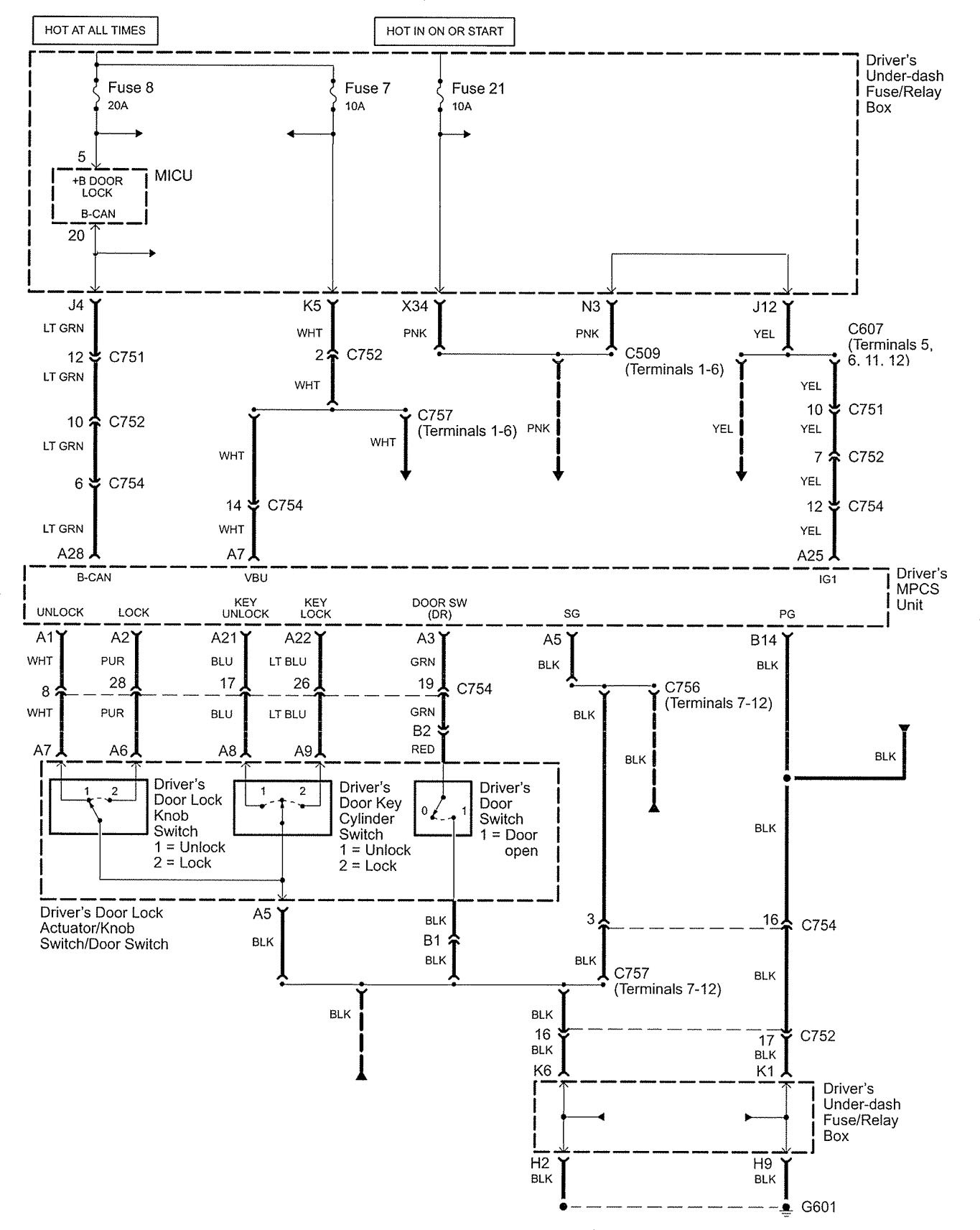
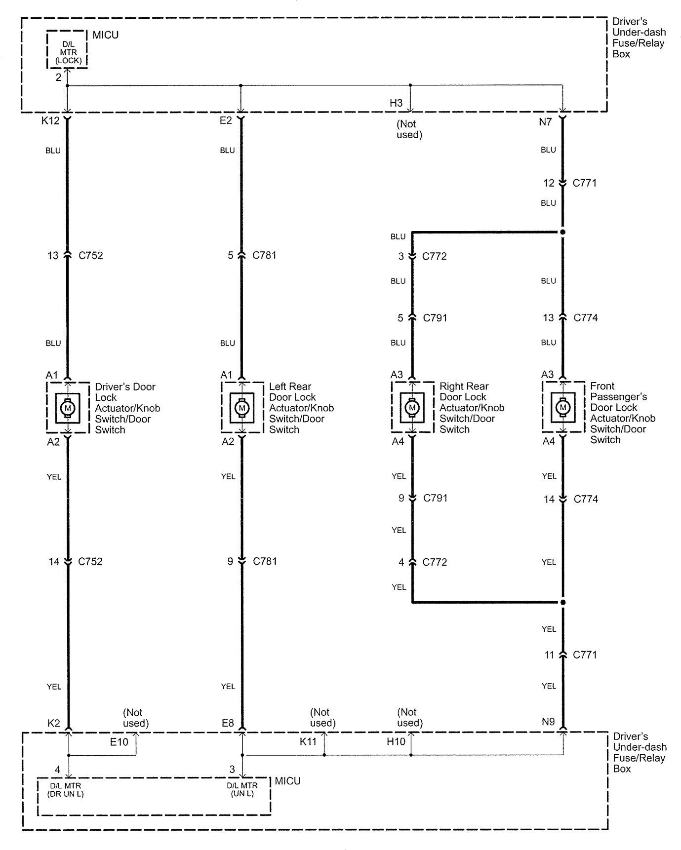
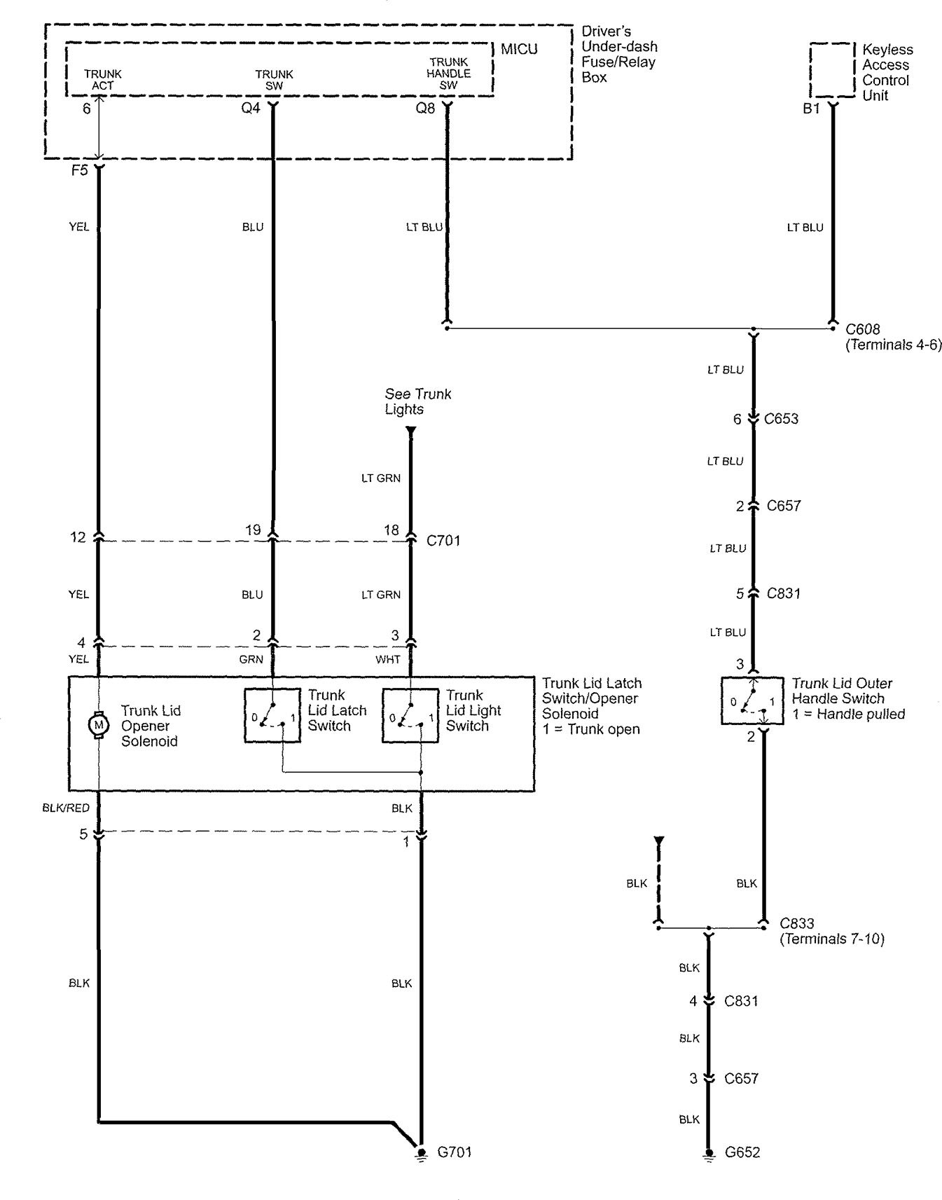
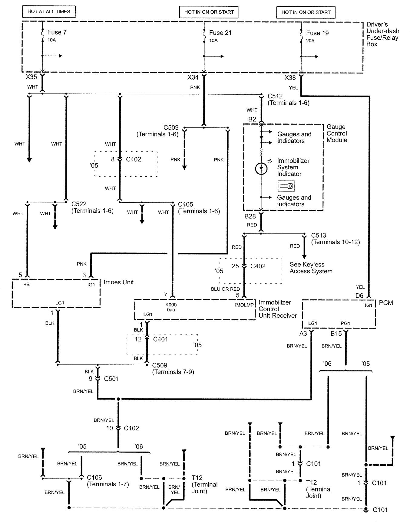
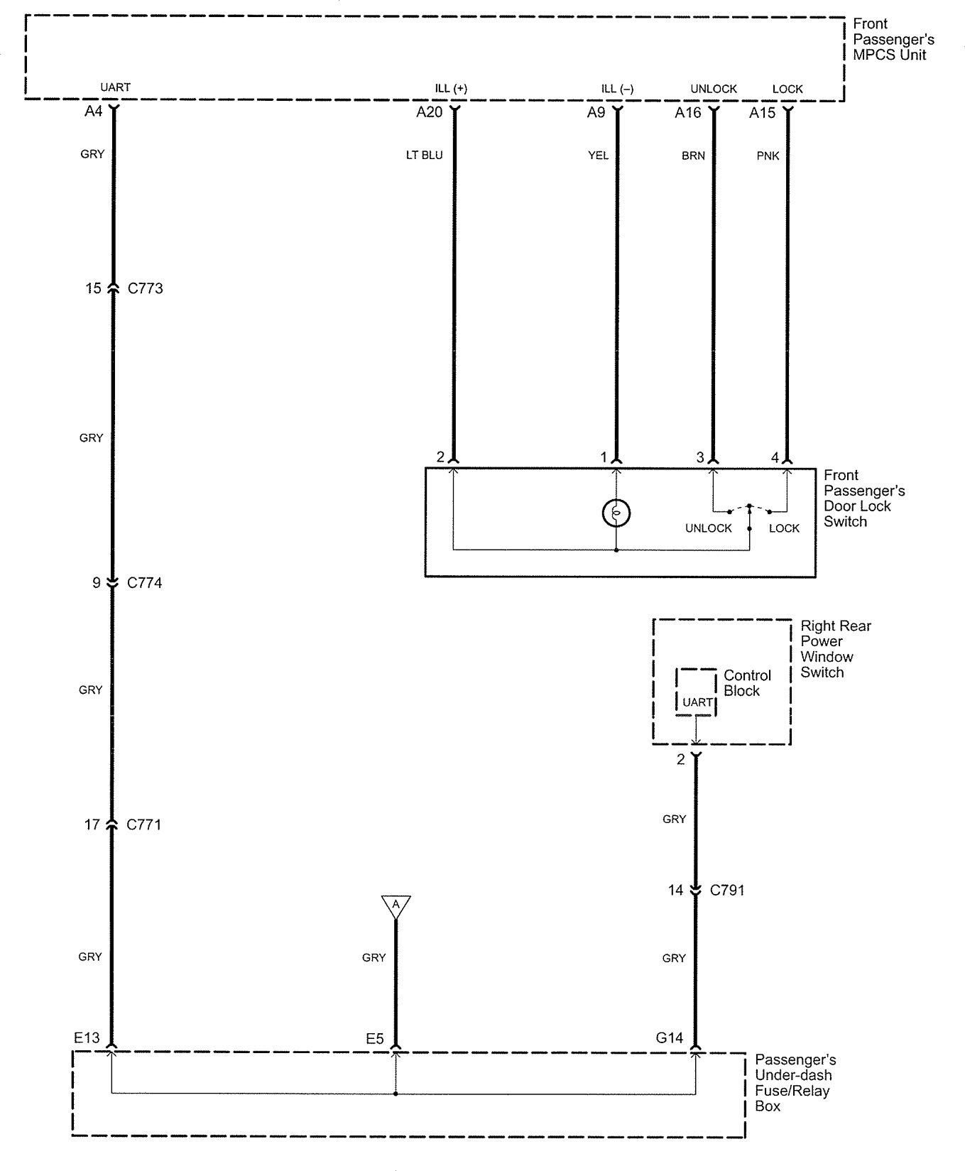
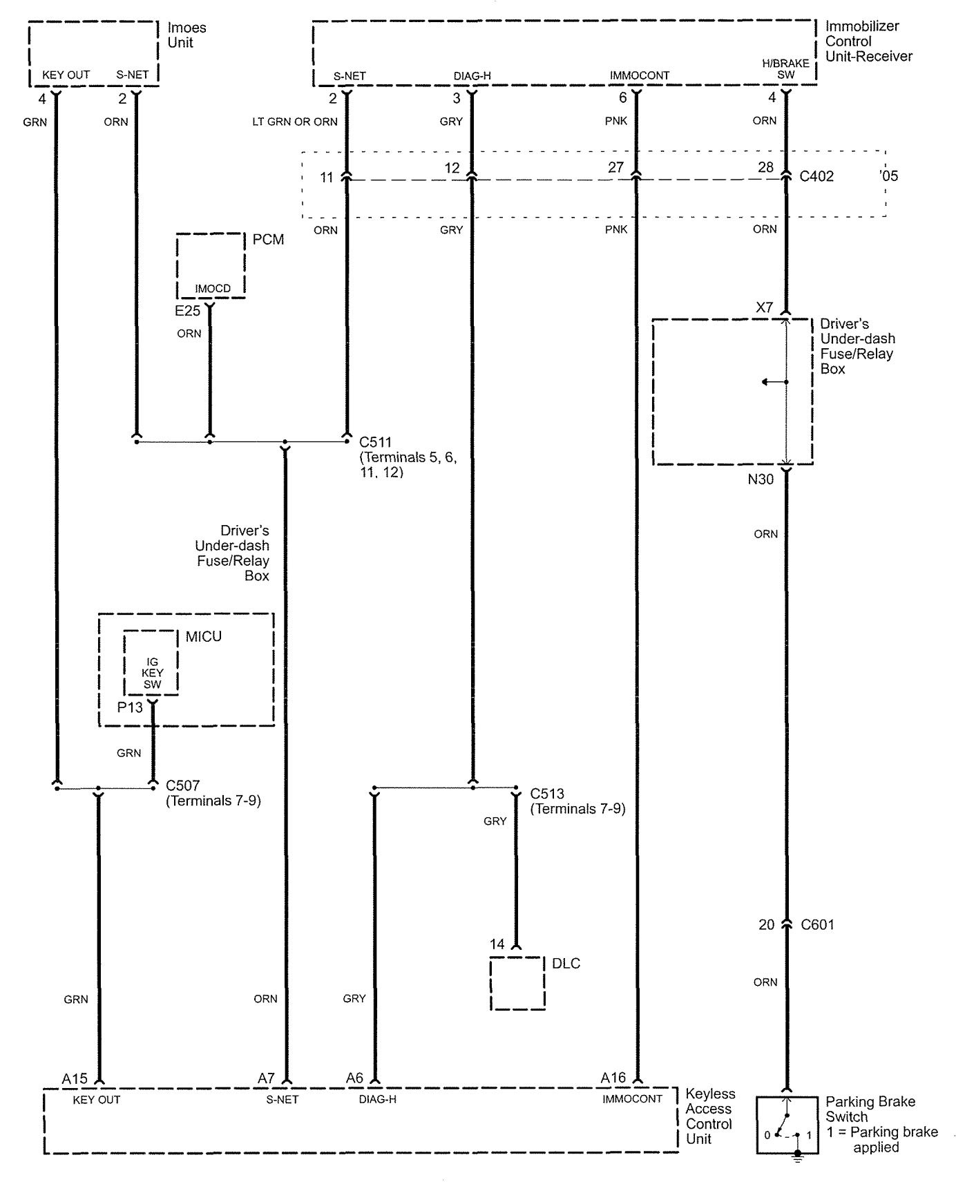
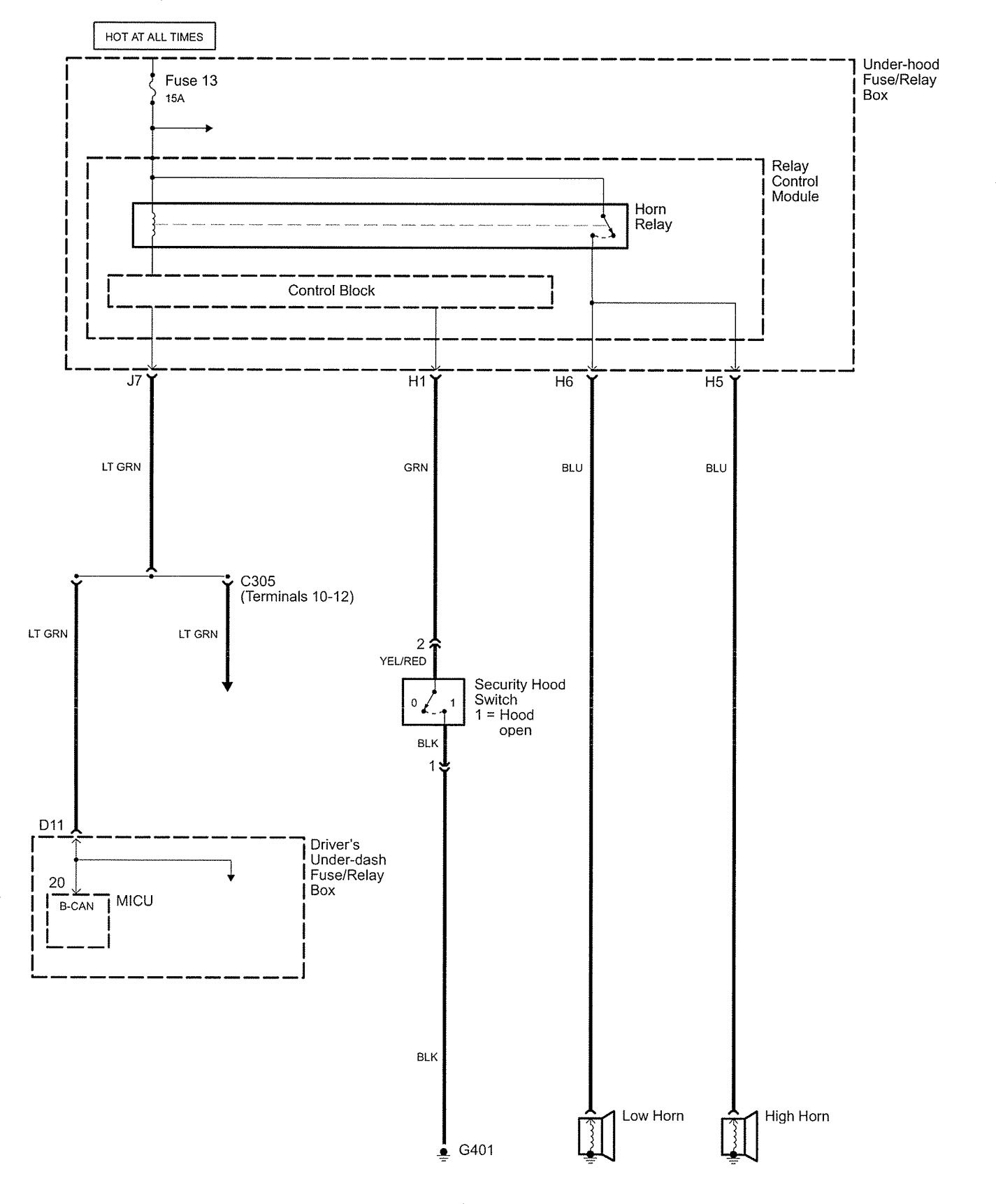
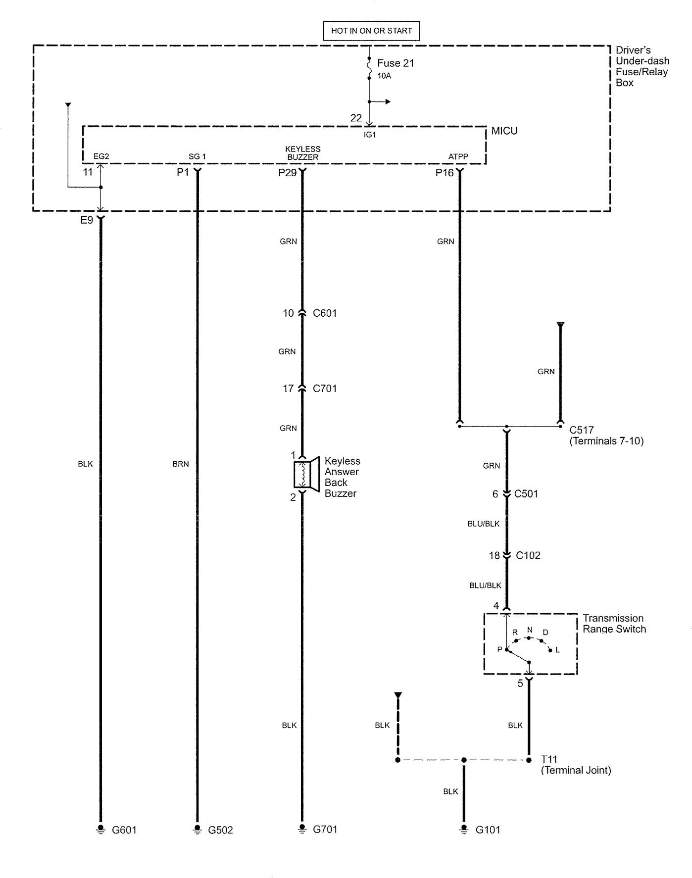
Acura RL (2006) – wiring diagrams – security/anti-theft
Year of productions: 2006
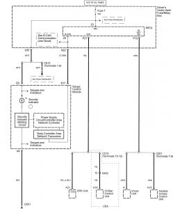
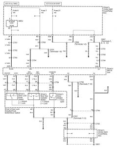
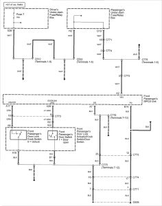
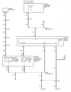
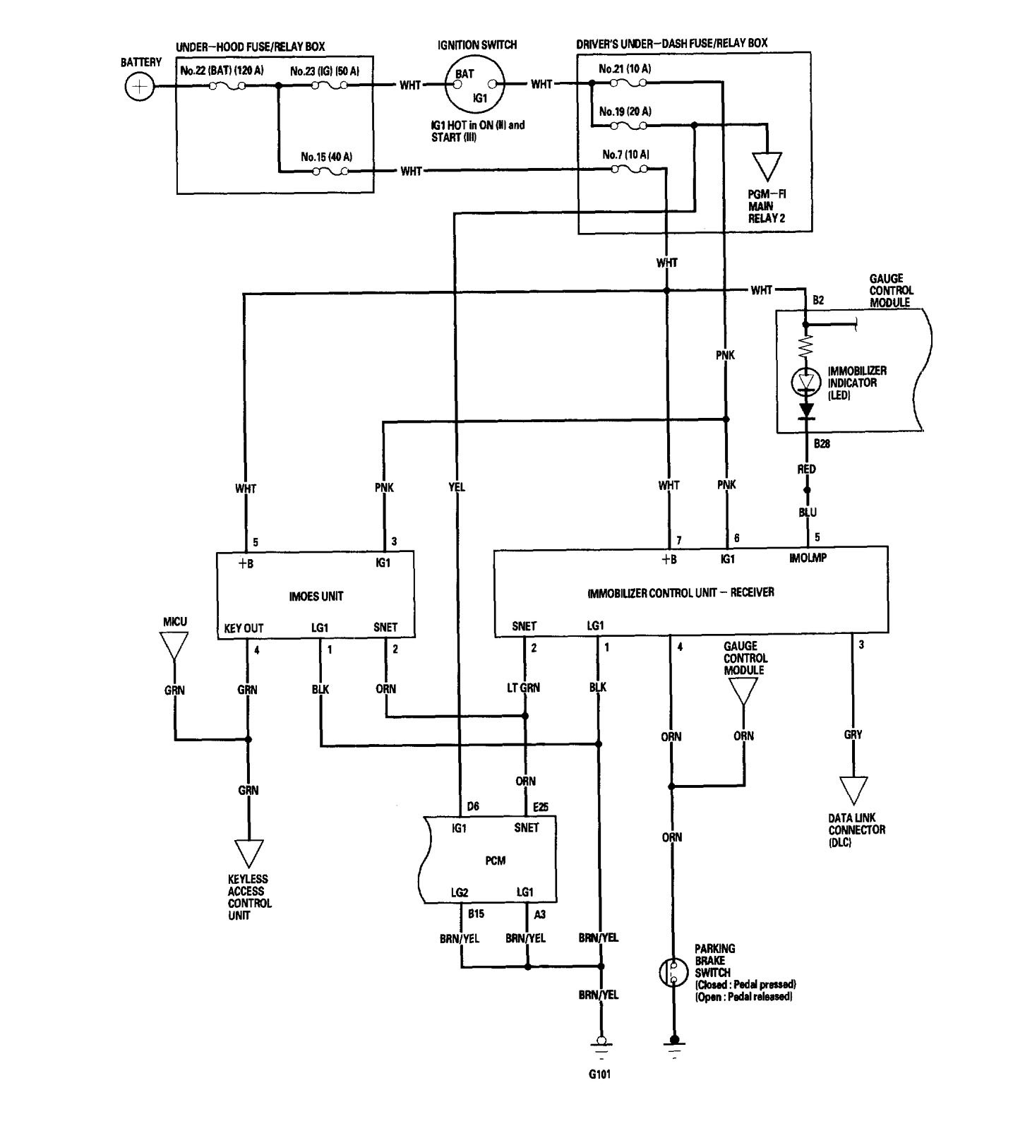
Security/Anti-theft
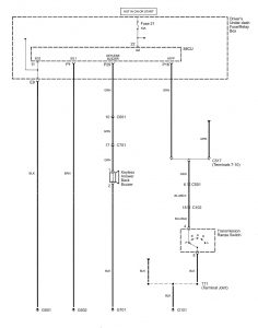
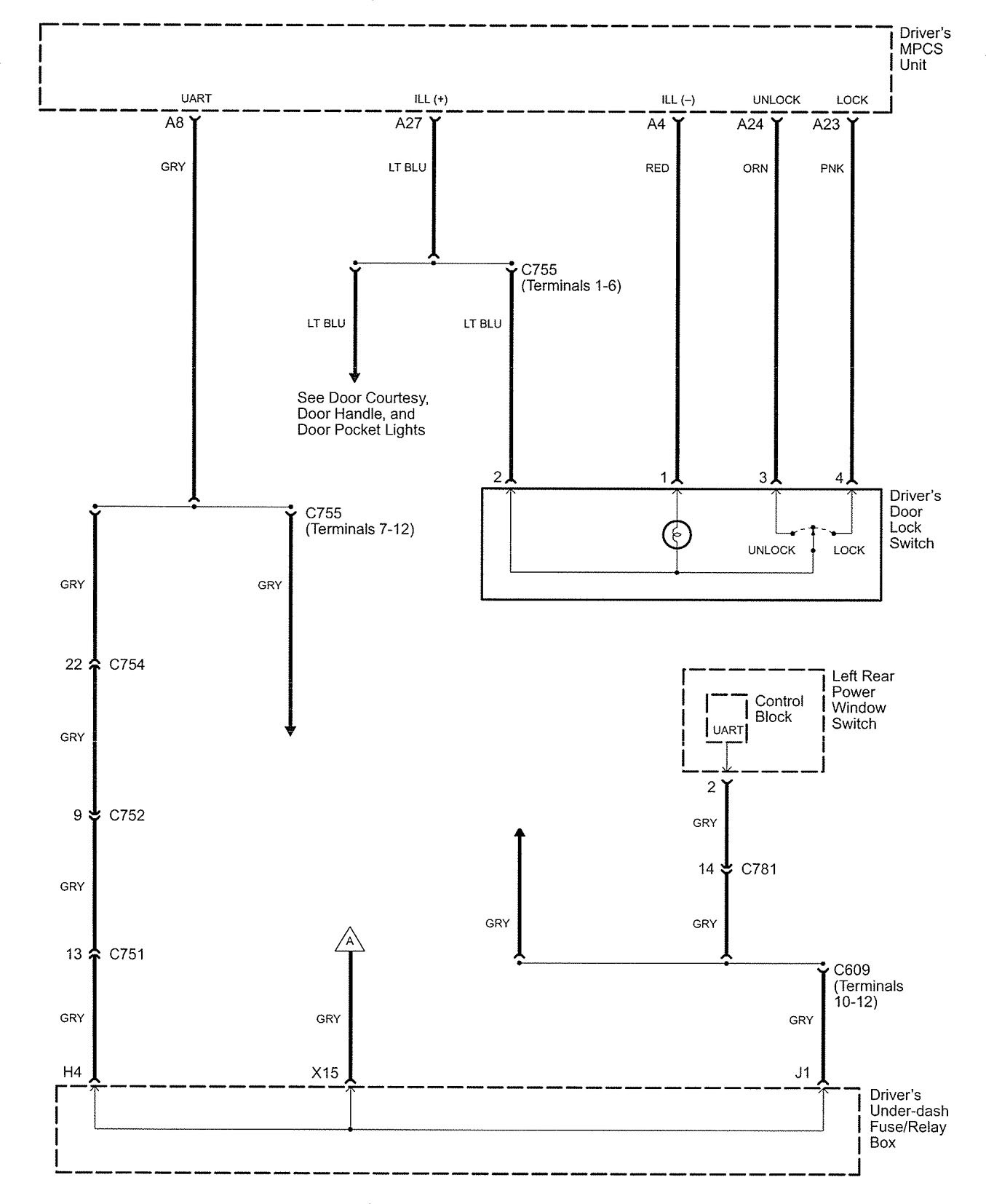
Version 1











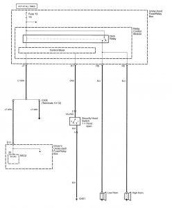
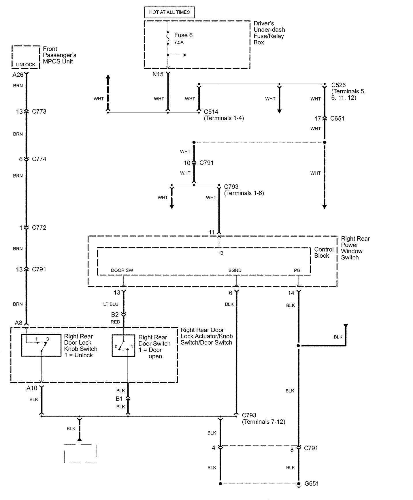
Version 2


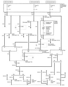
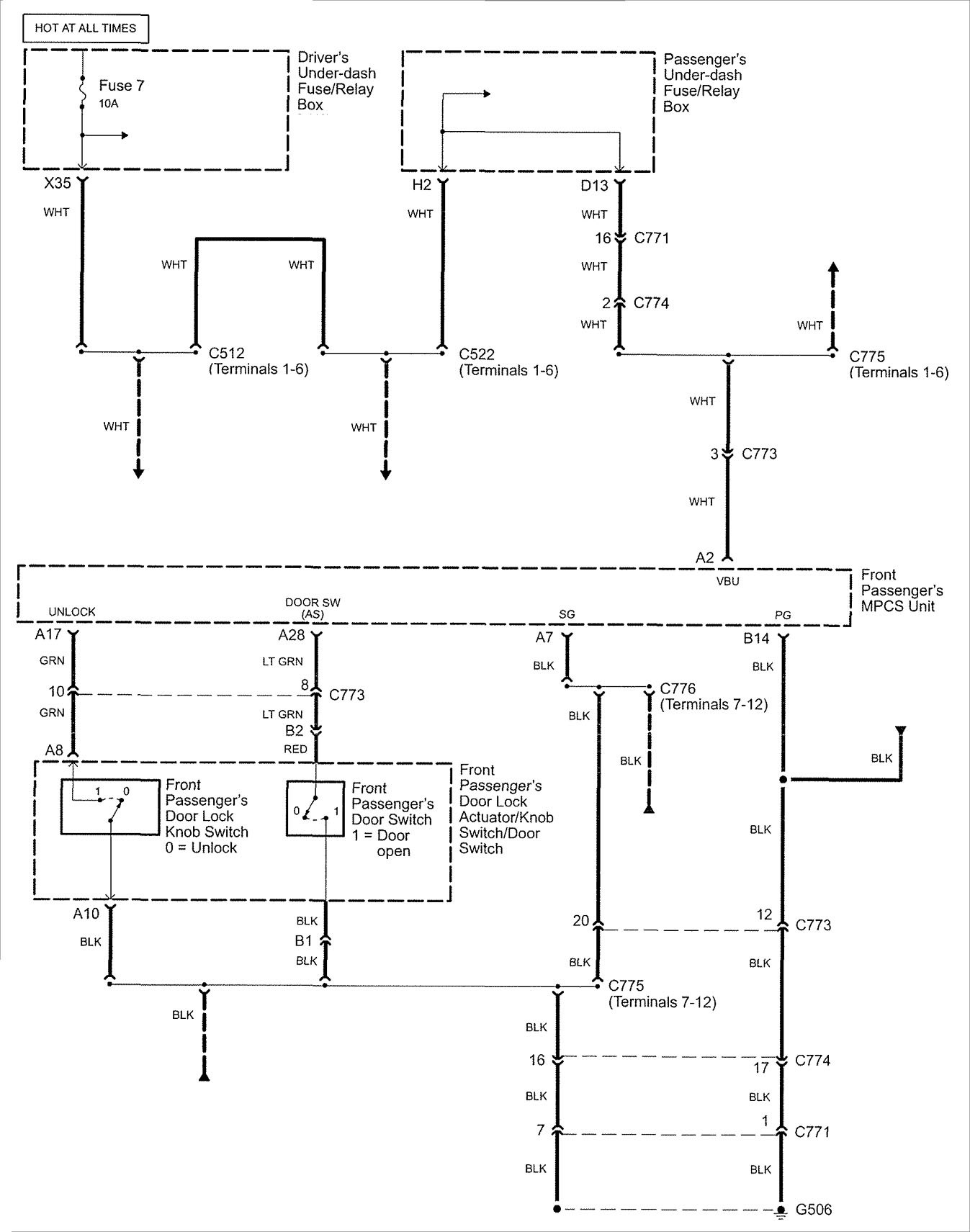
Version 3

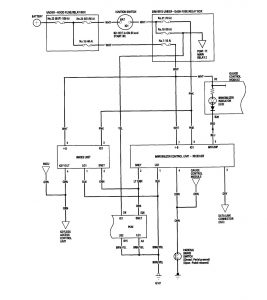
WARNING: Terminal and harness assignments for individual connectors will vary depending on vehicle equipment level, model, and market.
