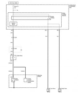
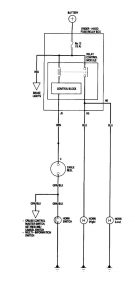
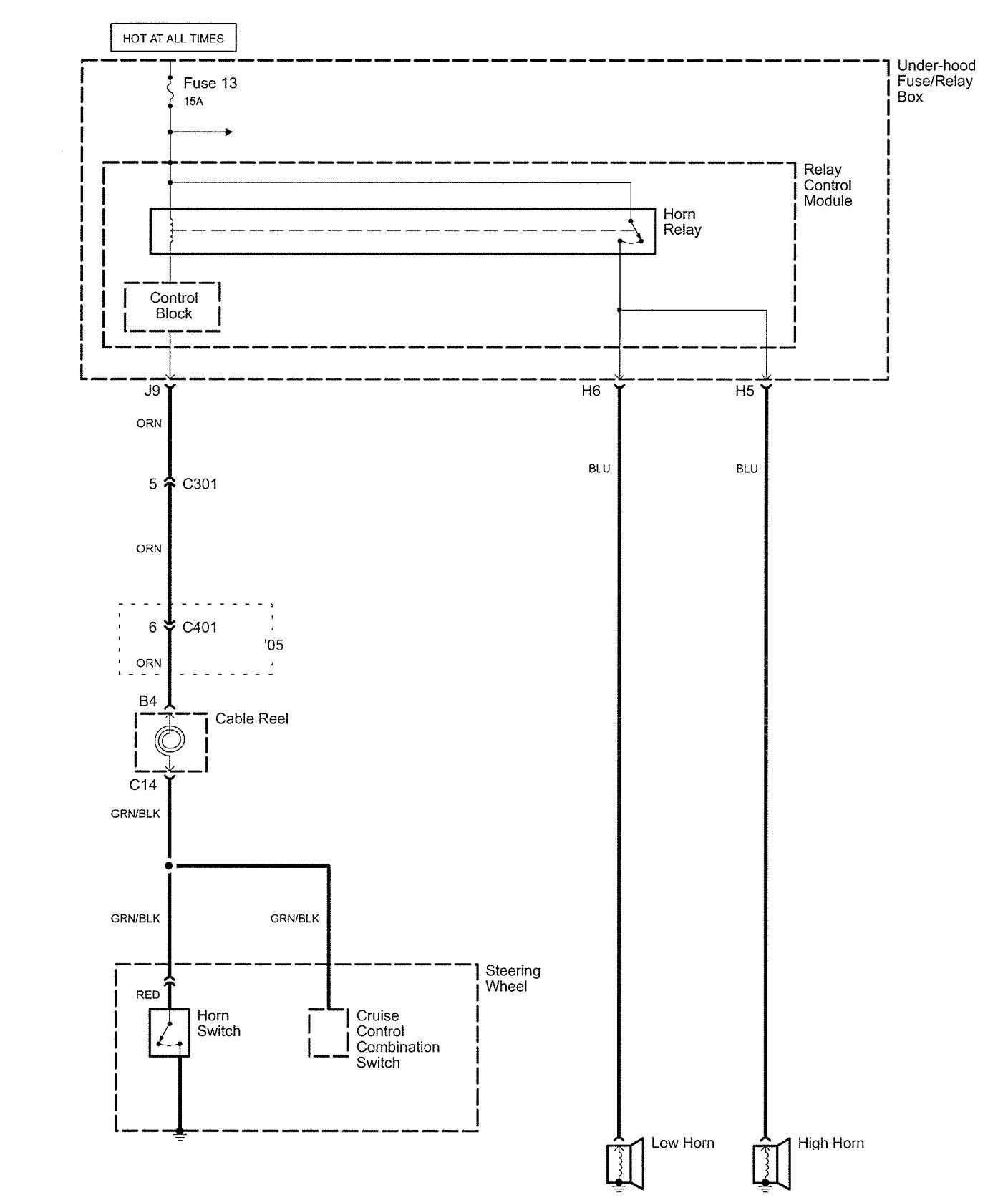
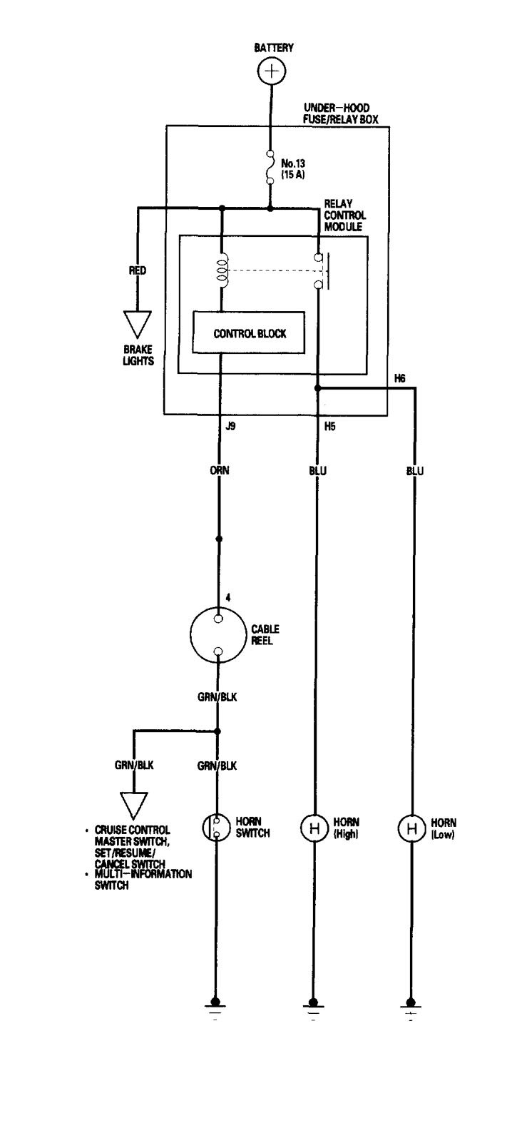
Acura RL (2006) – wiring diagrams – horn
Year of productions: 2006
Horn
Version 1

Version 2

WARNING: Terminal and harness assignments for individual connectors will vary depending on vehicle equipment level, model, and market.
Copyright © 2025 | MH Magazine WordPress Theme by MH Themes