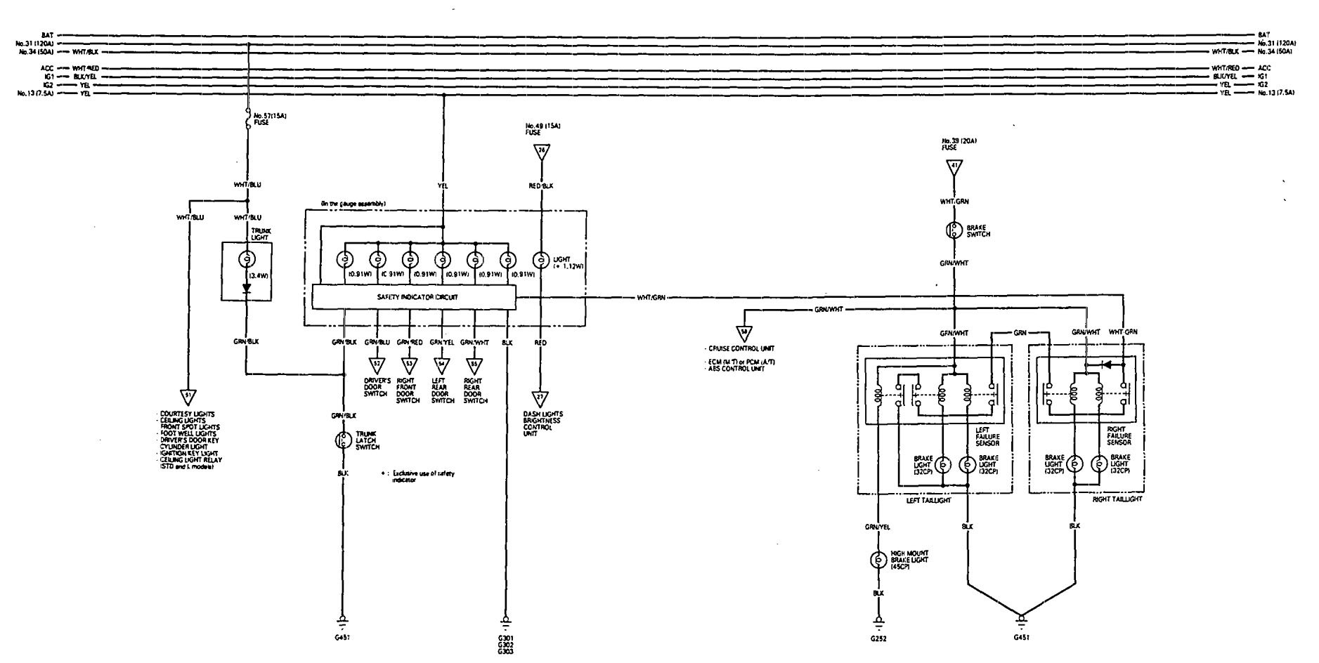
Acura Legend (1993) – wiring diagram – center high mounted stop lamp
Year of productions: 1993
Center high mounted stop lamp

WARNING: Terminal and harness assignments for individual connectors will vary depending on vehicle equipment level, model, and market.
