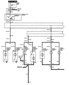
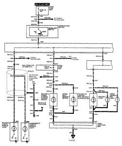
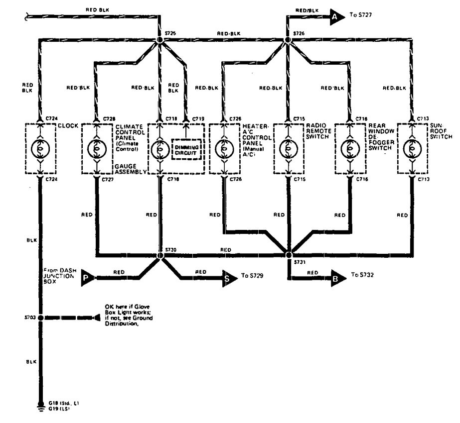
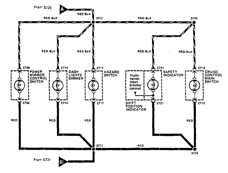
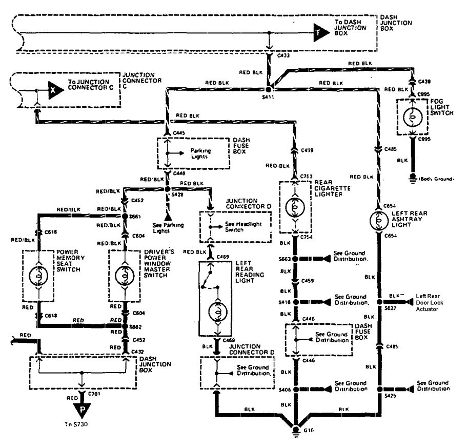
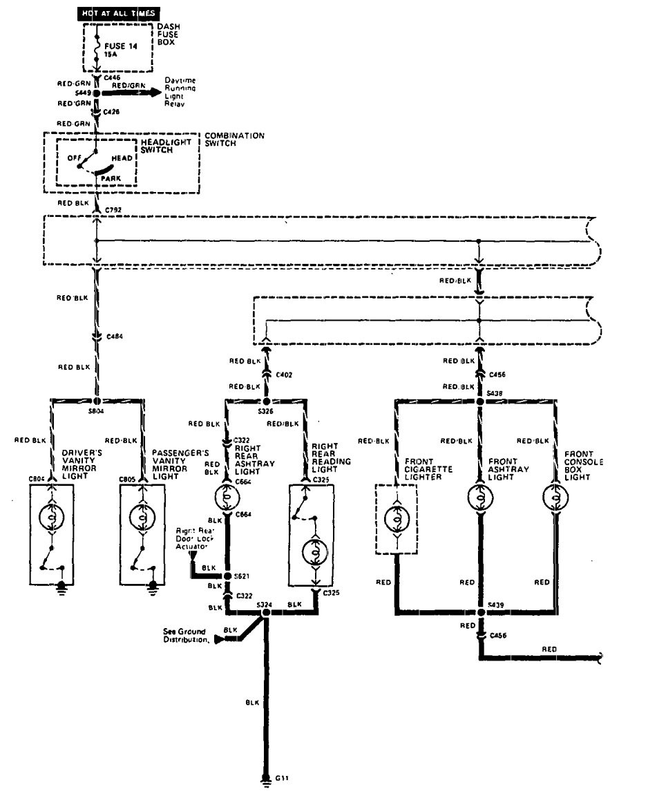
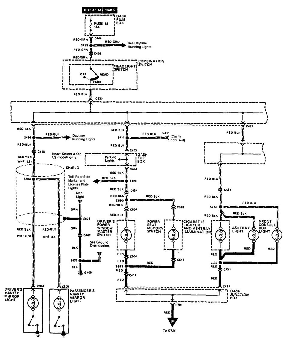
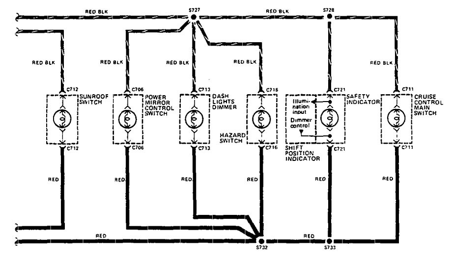
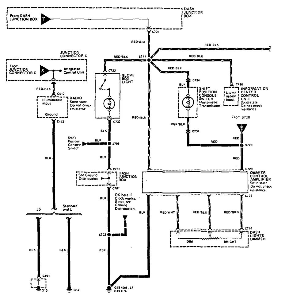
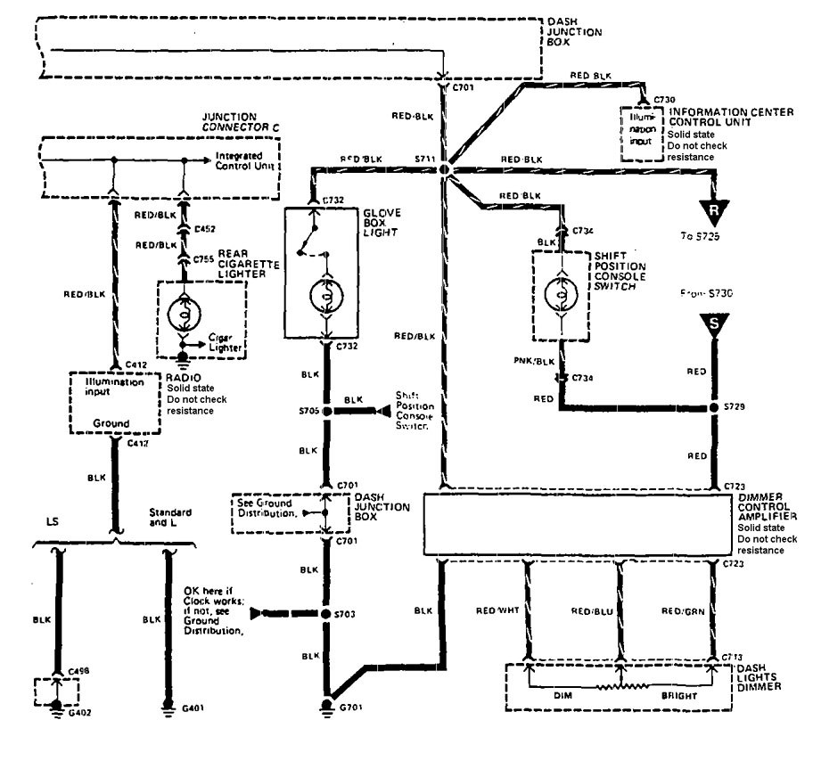
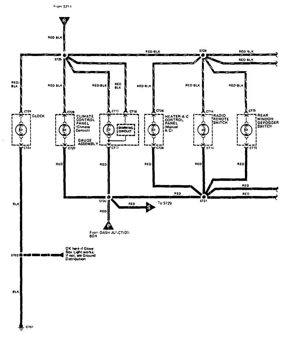
Acura Legend (1990) – wiring diagram – console lamp
Year of productions: 1990
Console lamp
Version 1





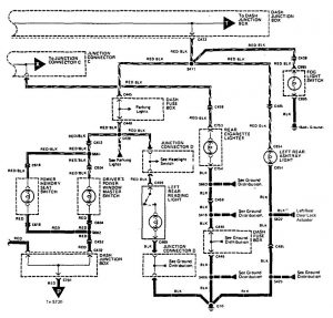
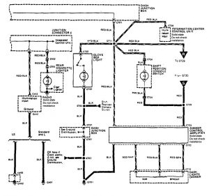
Version 2




WARNING: Terminal and harness assignments for individual connectors will vary depending on vehicle equipment level, model, and market.
Year of productions: 1990









WARNING: Terminal and harness assignments for individual connectors will vary depending on vehicle equipment level, model, and market.
Copyright © 2026 | MH Magazine WordPress Theme by MH Themes