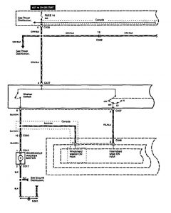
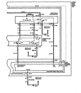
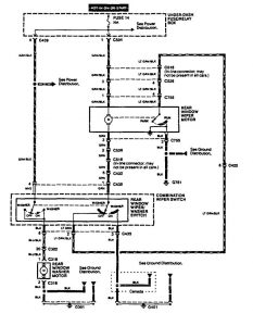
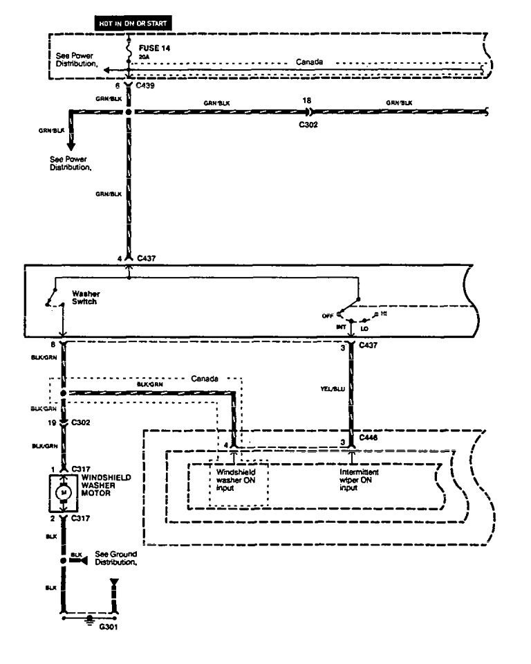
Acura Integra (1994 – 1995) – wiring diagrams – wiper/washer
Year of productions: 1994, 1995
Wiper/washer
Version 1


Version 2

WARNING: Terminal and harness assignments for individual connectors will vary depending on vehicle equipment level, model, and market.

Leave a Reply