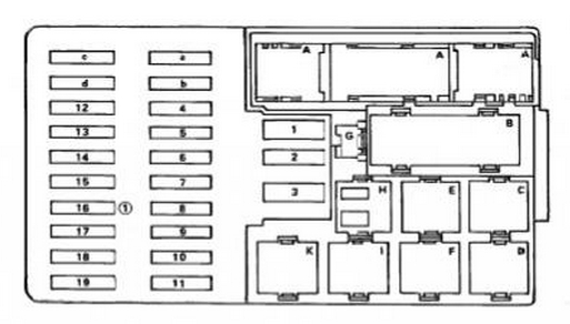
Mercedes-Benz E-Class w123 – 300d (1987) – fuse box diagram

| Fuse | Ampere rating [A] | Circuit protected |
| 1 | 16 | Auxiliary fan |
| 2 | 8 | Clock, Turn signal/hazard lamps, Radio, Power seats, Warning system, Courtesy lamps, Illumination Cluster/Center Console |
| 3 | 30 | Rear defogger |
| 4 | 8 | Headlamps (High low beam) |
| 5 | 8 | Automatic Climate Control, Transmission kick-down, Stop lamps/Backup lamps, Auxiliary fan |
| 6 | 8 | Courtesy lamps, Ani-lock brake system, Stop lamps/Backup lamps, Cruise control, Warning system, Warning indicators |
| 7 | 8 | Horn, Rear defogger, Turn signal/hazard lamps |
| 8 | 16 | Outside heated mirrors, Anti-theft alarm system |
| 9 | 8 | Lamps: Park/TailMarker/License |
| 10 | 8 | Fog lamps |
| 11 | 8 | Headlamp wiper/washer, Lamps: Park/TailMarker/License, Illumination instrument: cluster, central console |
| 12 | 8 | Headlamps (Left: Low beam) |
| 13 | 8 | Headlamps (Right: Low beam, indicator) |
| 14 | 8 | Headlamps (Left: High beam) |
| 15 | 8 | Central locking system, Anti-theft alarm system, Power seats, Courtesy lights, Truck lamps, Automatic Antenna |
| 16 | 25 | Blower control/ Not used |
| 17 | 16 | Headlamps/Fog lamps, Wiper/washer, Headlamps wiper/washer, Power windows, Power seats |
| 18 | 8 | Glove box lamp, Wiper/washer (washer jet heaters), Front cigar lighter, Radio |
| 19 | 16 | Sliding roof, Heated seats, Orthopedic seats |
| a | 25 | Power seats |
| b | 25 | Power seats |
| c | 25 | Power Windows |
| d | 25 | Power Windows |
Relays
| Relay code | Relay use |
| A | Exterior lamp Failure Monitoring Unit |
| B | Combination Relay (Turn signal, hazard lamps, wiper/washer) |
| C | High speed relay (auxiliary fan) |
| D | Low speed relay (auxiliary fan) |
| E | Air pump Clutch (Electronic engine control/air injection management) – gasoline engine only |
| F | Headlamp washer relay (Headlamp Wiper/washer) |
| G | Power seat diode (Power seats) |
| H | Power seat relay |
| I | Power window relay (power windows) |
| K | Auxiliary fuse holder (Anti-theft alarm system) |
WARNING: Terminal and harness assignments for individual connectors will vary depending on vehicle equipment level, model, and market.
