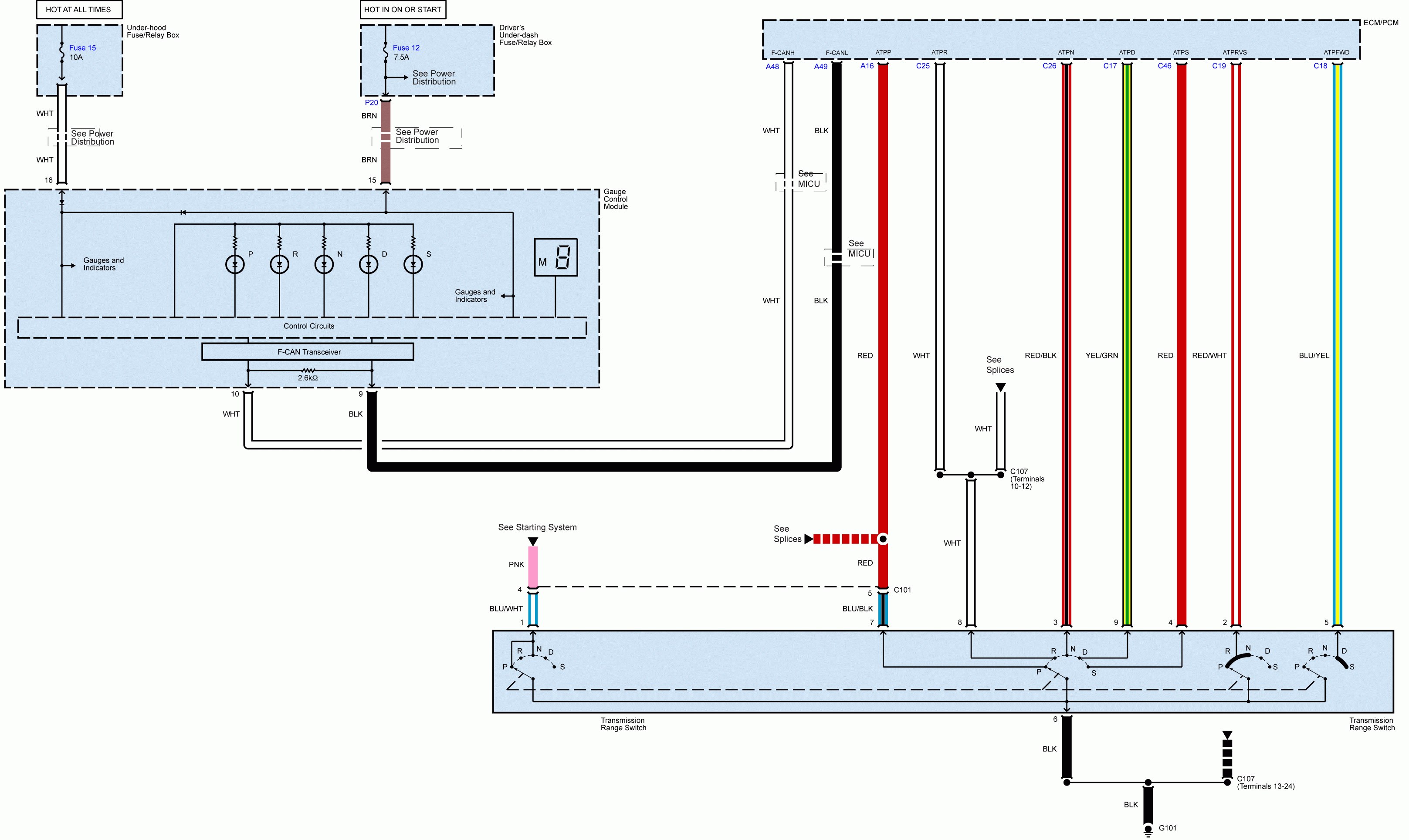
Acura TL (2011) – wiring diagrams – shift indicator
Year of productions: 2011
Shift indicator

WARNING: Terminal and harness assignments for individual connectors will vary depending on vehicle equipment level, model, and market.
Copyright © 2025 | MH Magazine WordPress Theme by MH Themes