Acura TL (2011) – wiring diagrams – ground distribution
Year of productions: 2011
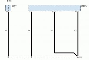
Ground distribution
Version 1



3)



















Version 2






WARNING: Terminal and harness assignments for individual connectors will vary depending on vehicle equipment level, model, and market.
