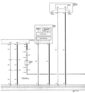
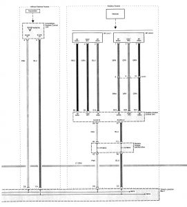
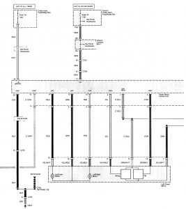
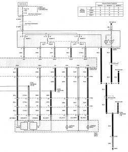
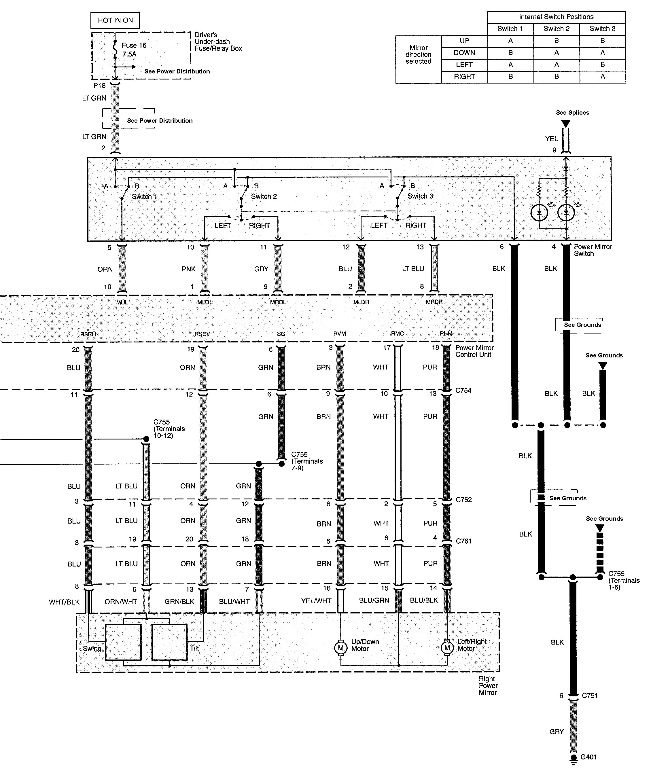
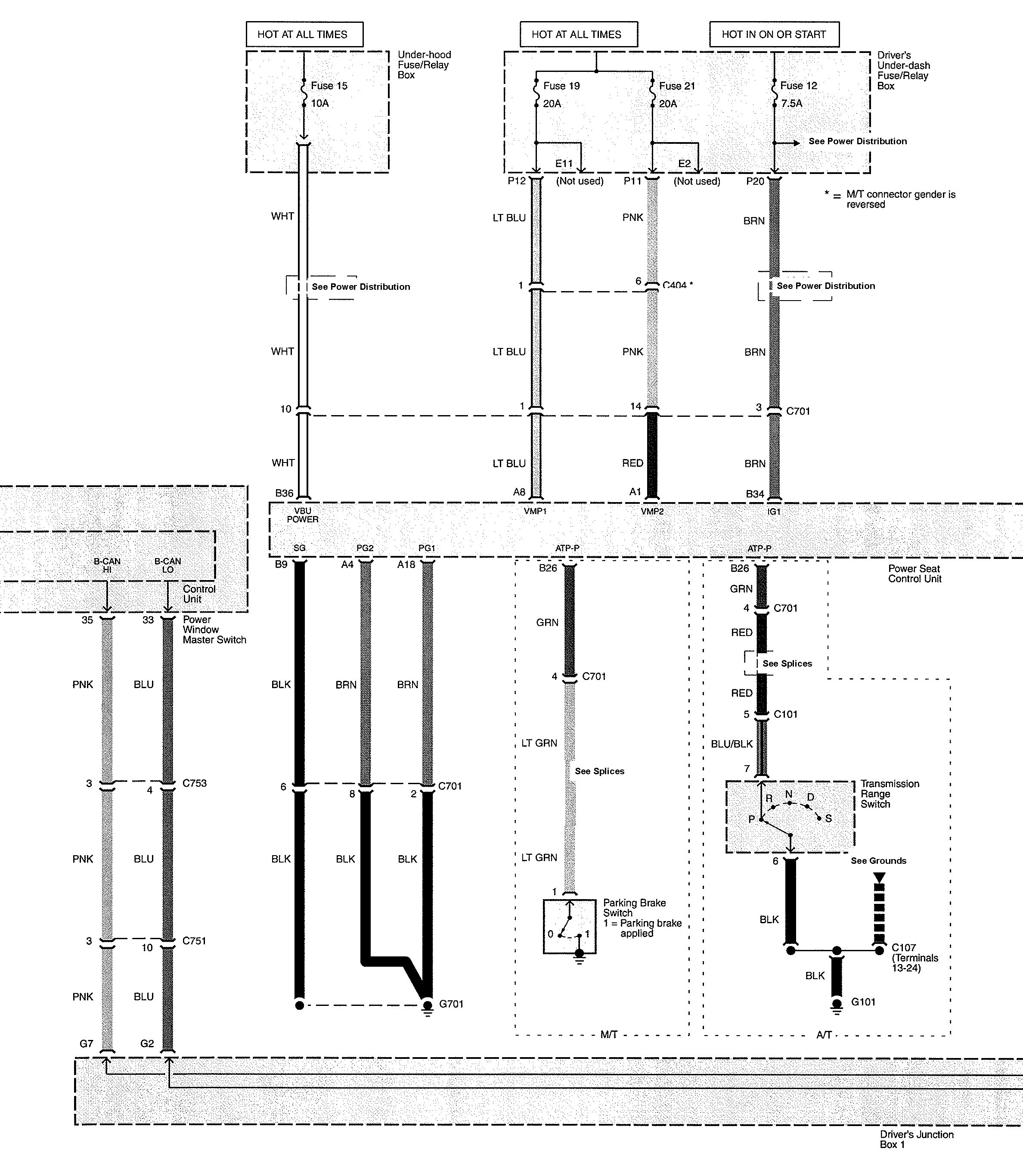
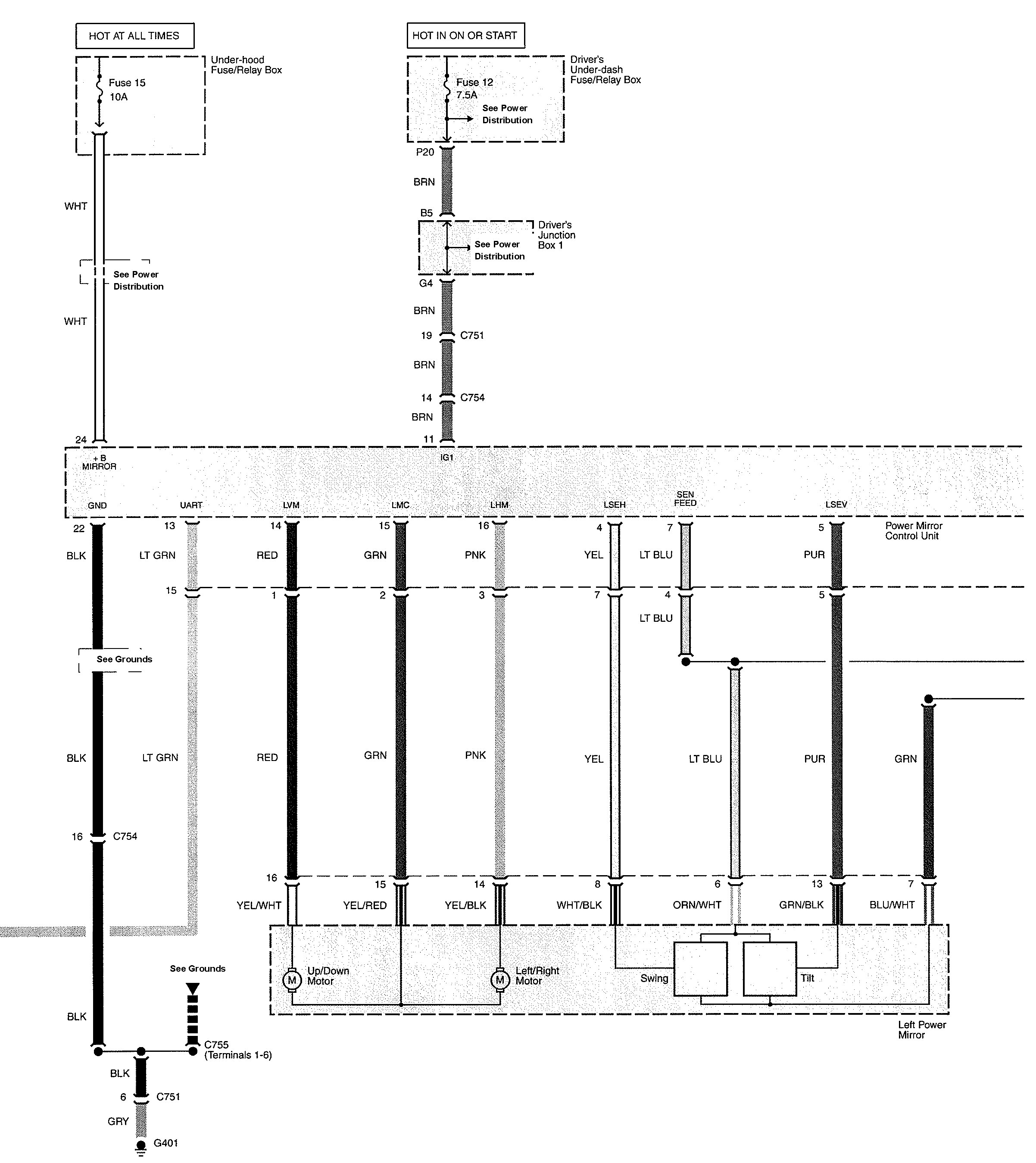
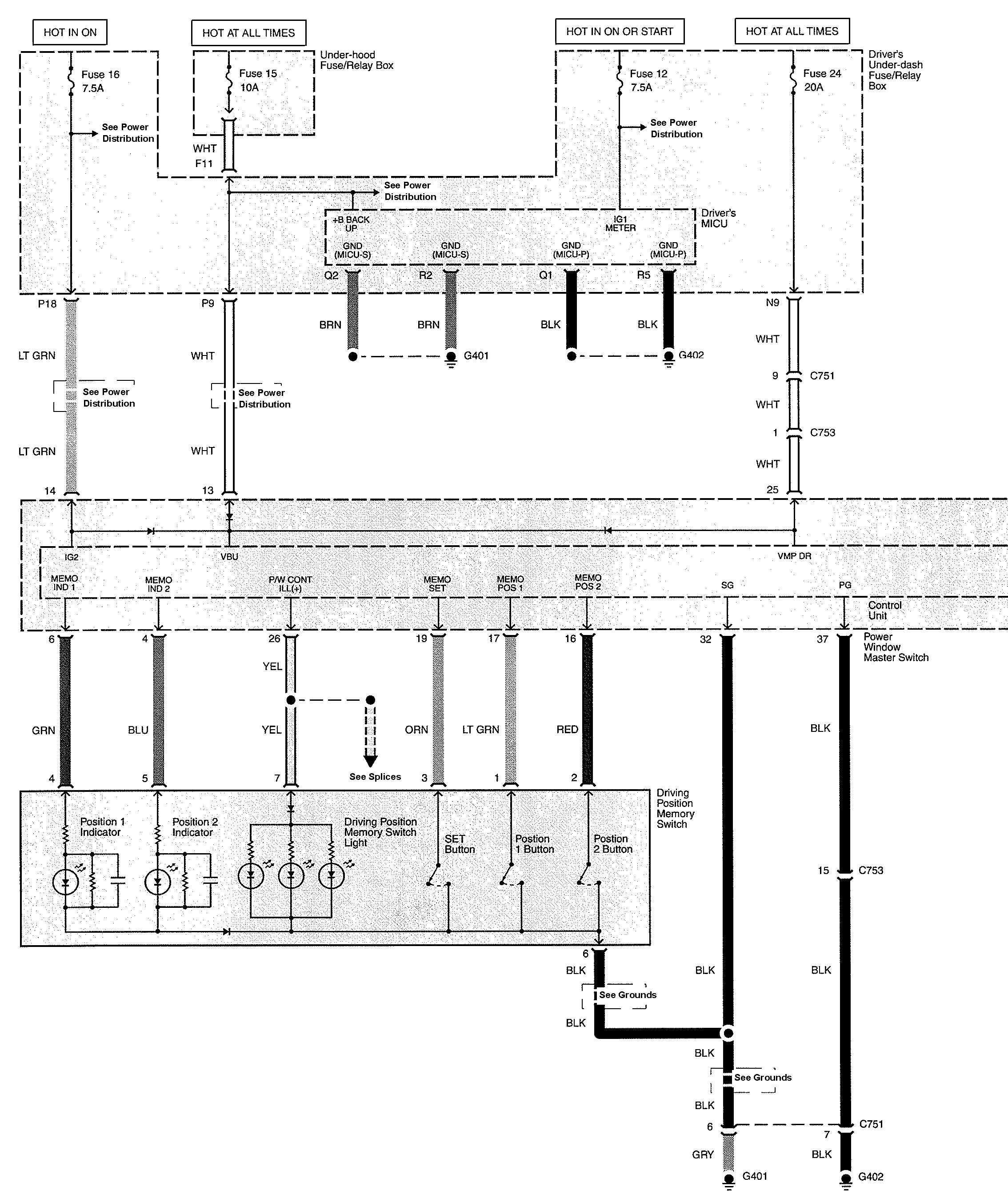
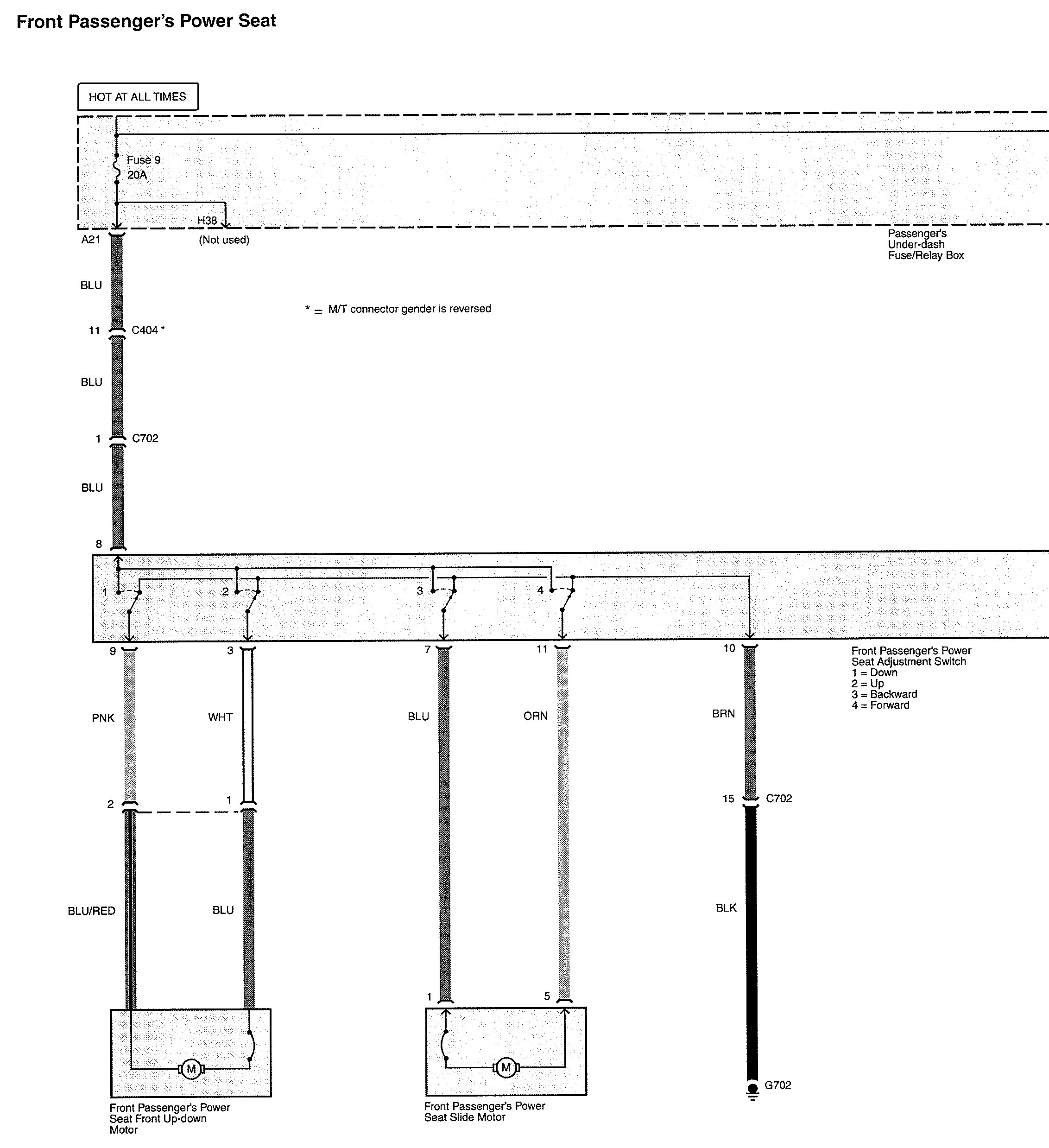
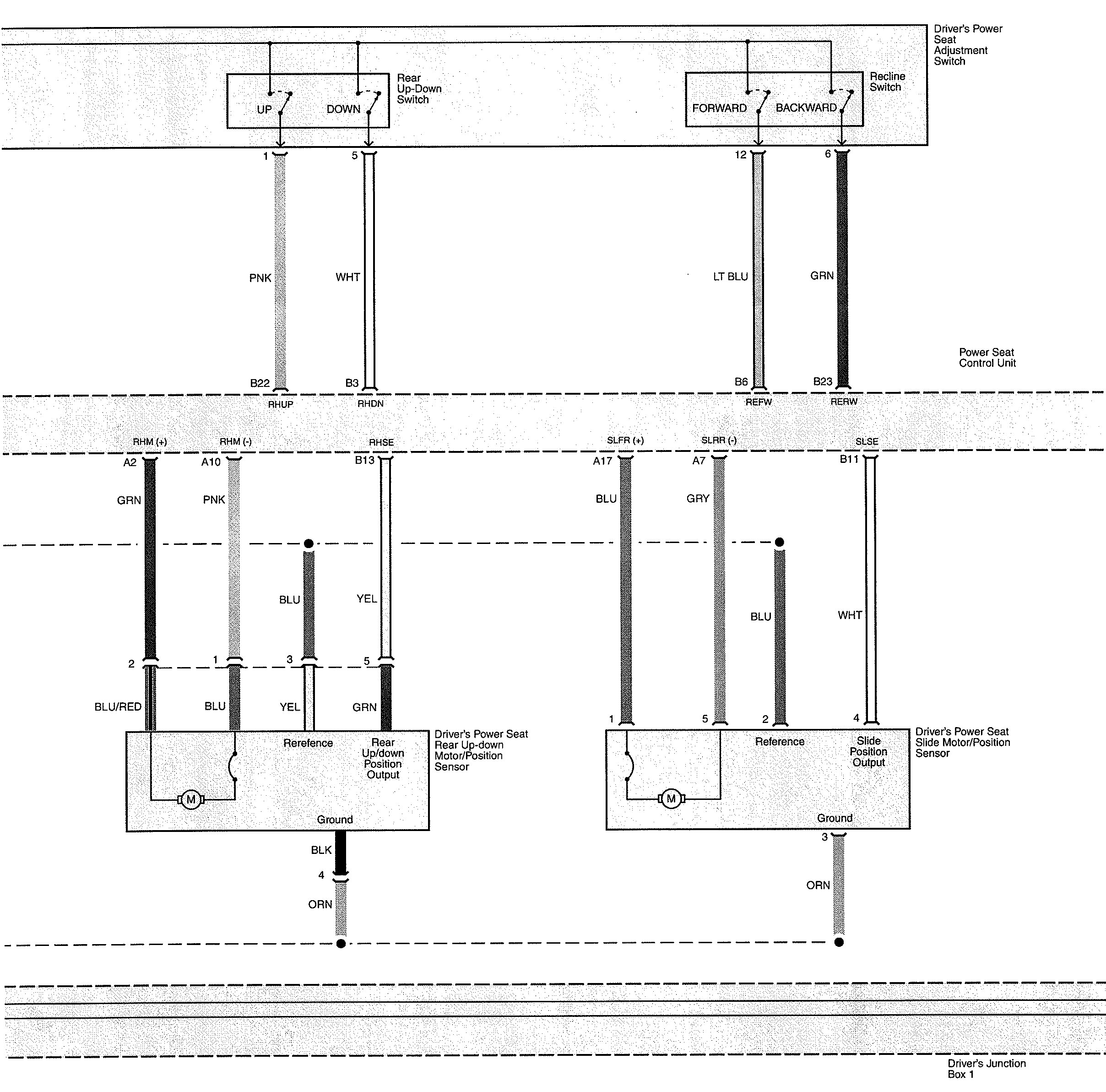
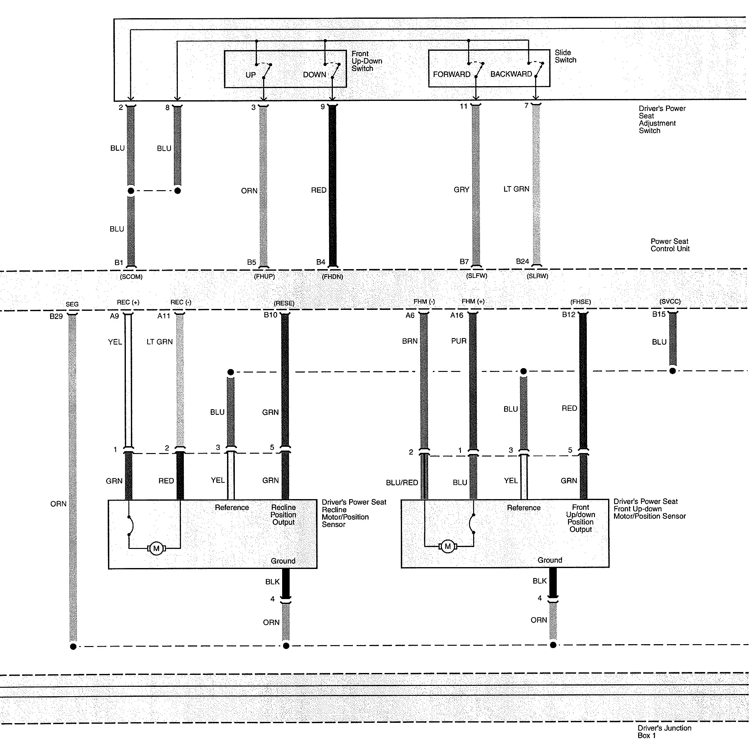
Acura TL (2010) – wiring diagrams – power seats
Year of productions: 2010
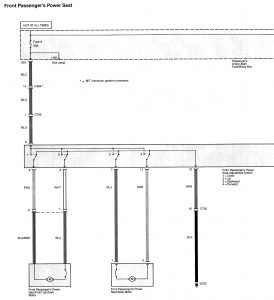
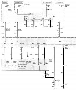
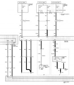
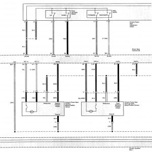
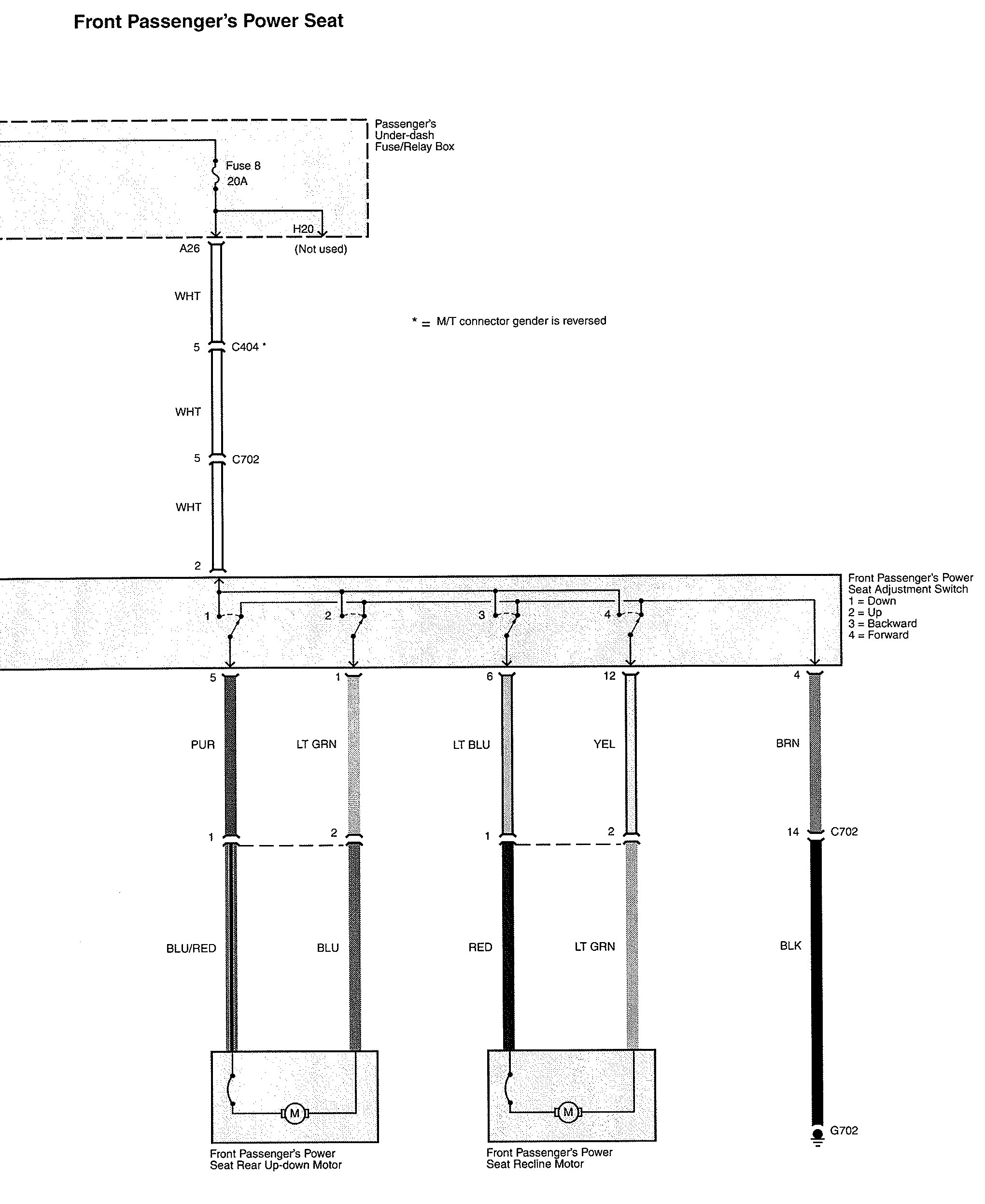
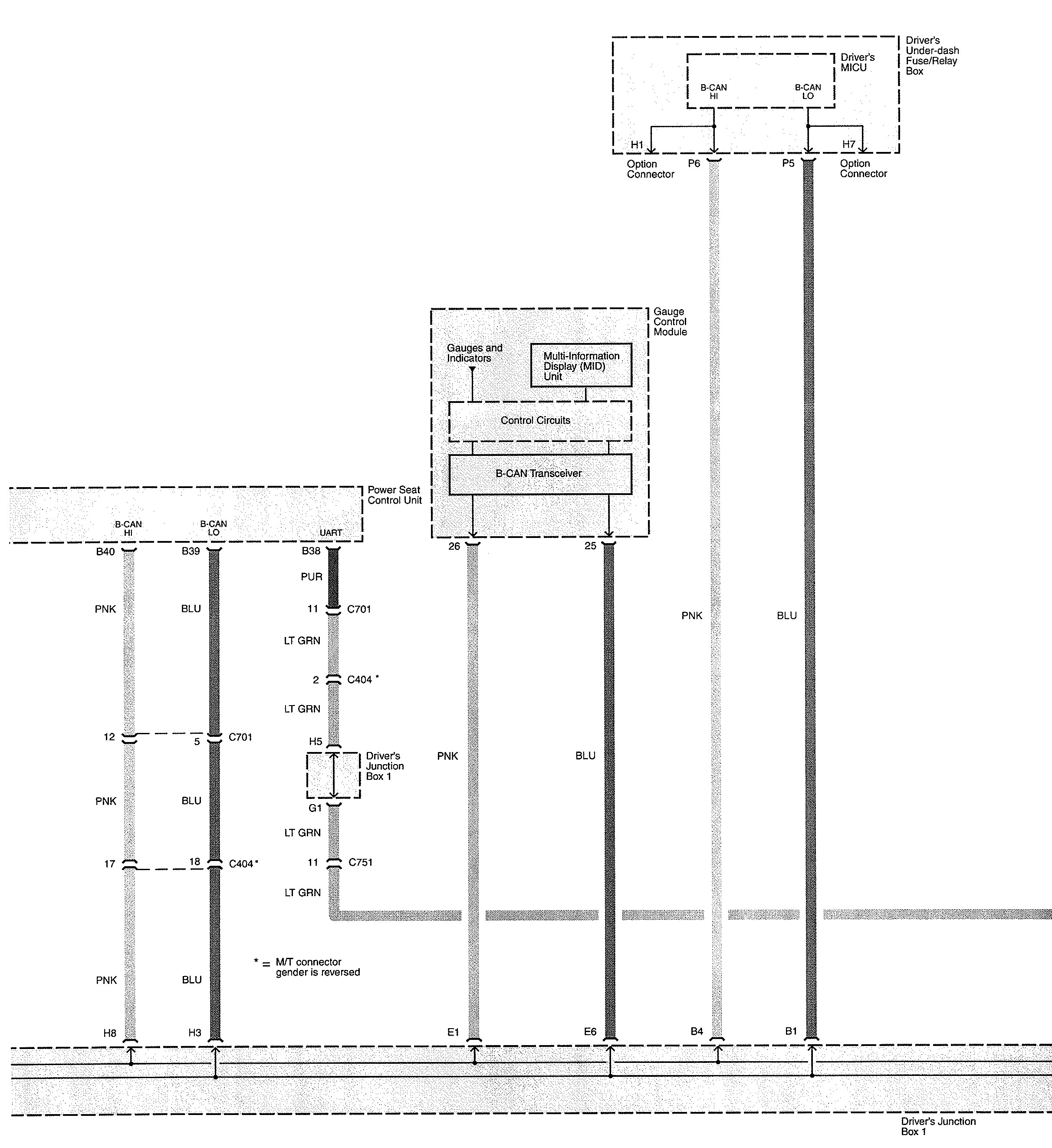
Power seats
Version 1


Version 2








WARNING: Terminal and harness assignments for individual connectors will vary depending on vehicle equipment level, model, and market.
Year of productions: 2010










WARNING: Terminal and harness assignments for individual connectors will vary depending on vehicle equipment level, model, and market.
Copyright © 2026 | MH Magazine WordPress Theme by MH Themes