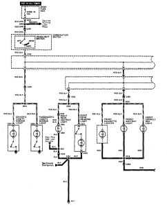
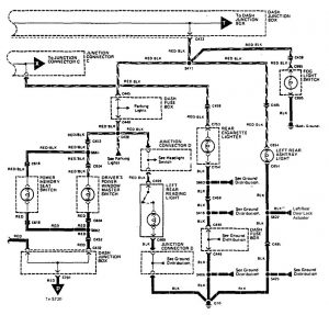
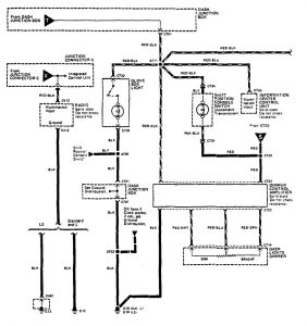
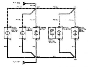
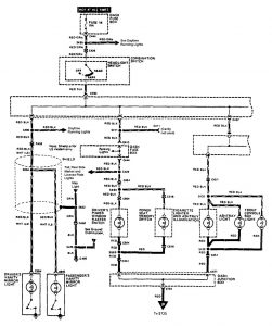
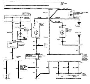
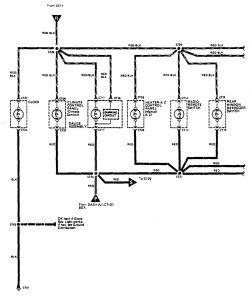
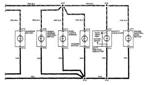
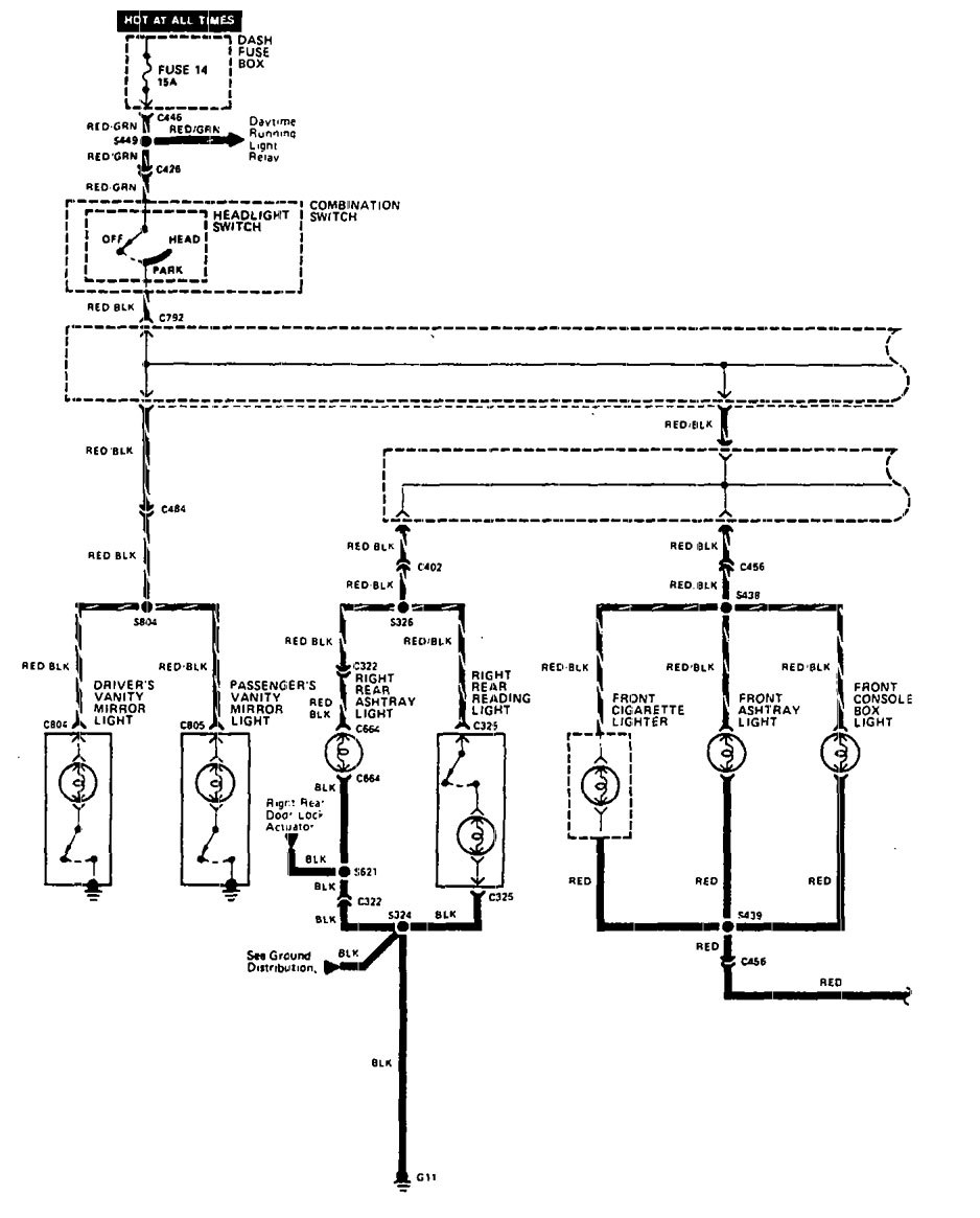
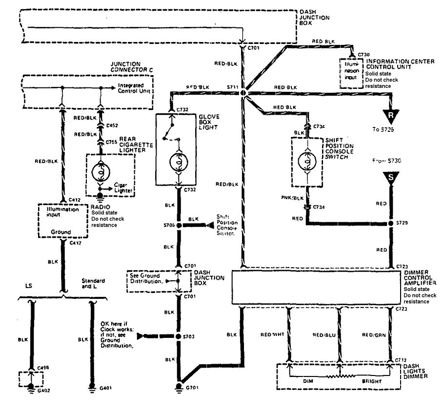
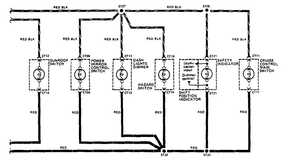
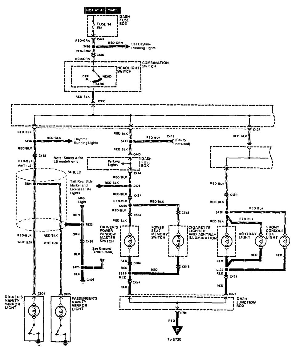
Acura Legend (1990) – wiring diagram – instrument panel lamps
Year of productions: 1990
Instrument panel lamps
Version 1





Version 2




WARNING: Terminal and harness assignments for individual connectors will vary depending on vehicle equipment level, model, and market.
