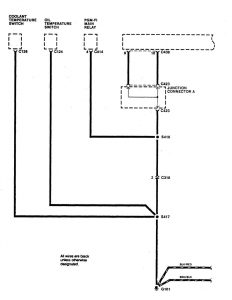
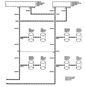
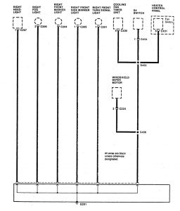
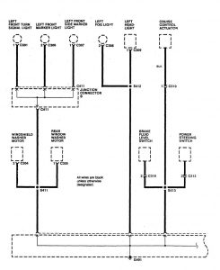
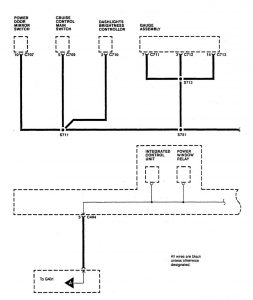
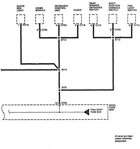
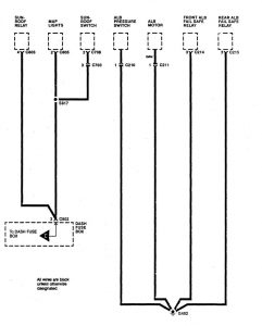
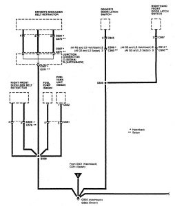
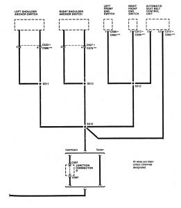
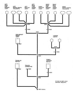
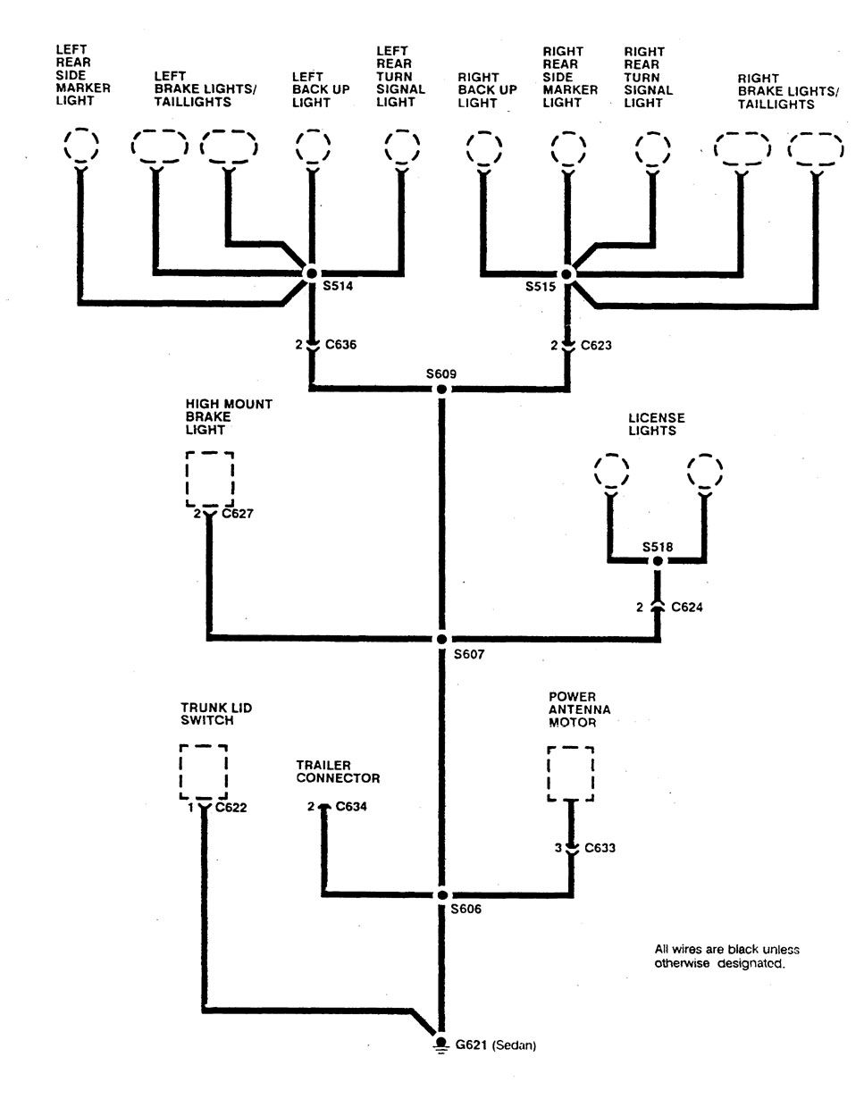
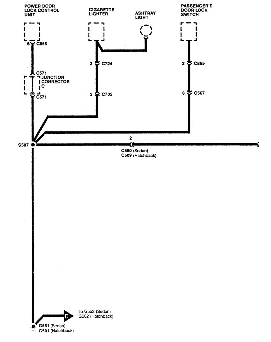
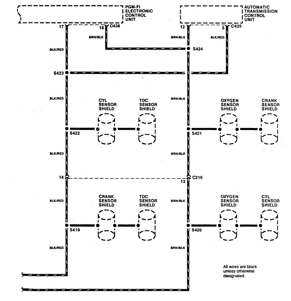
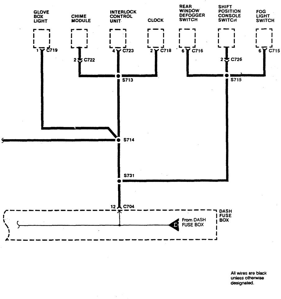
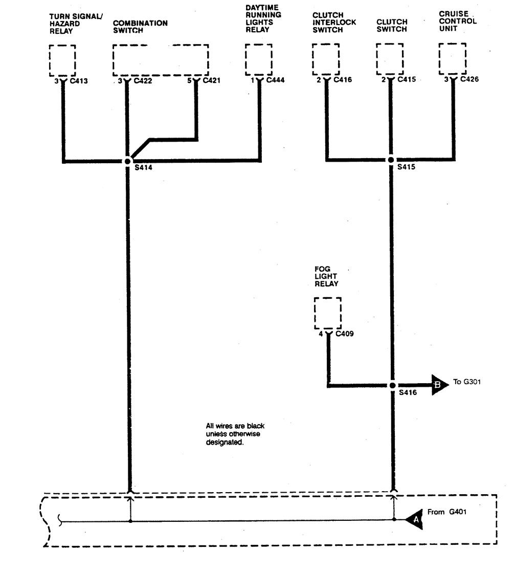
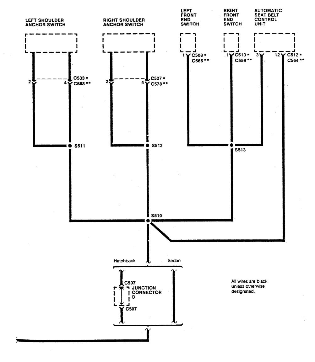
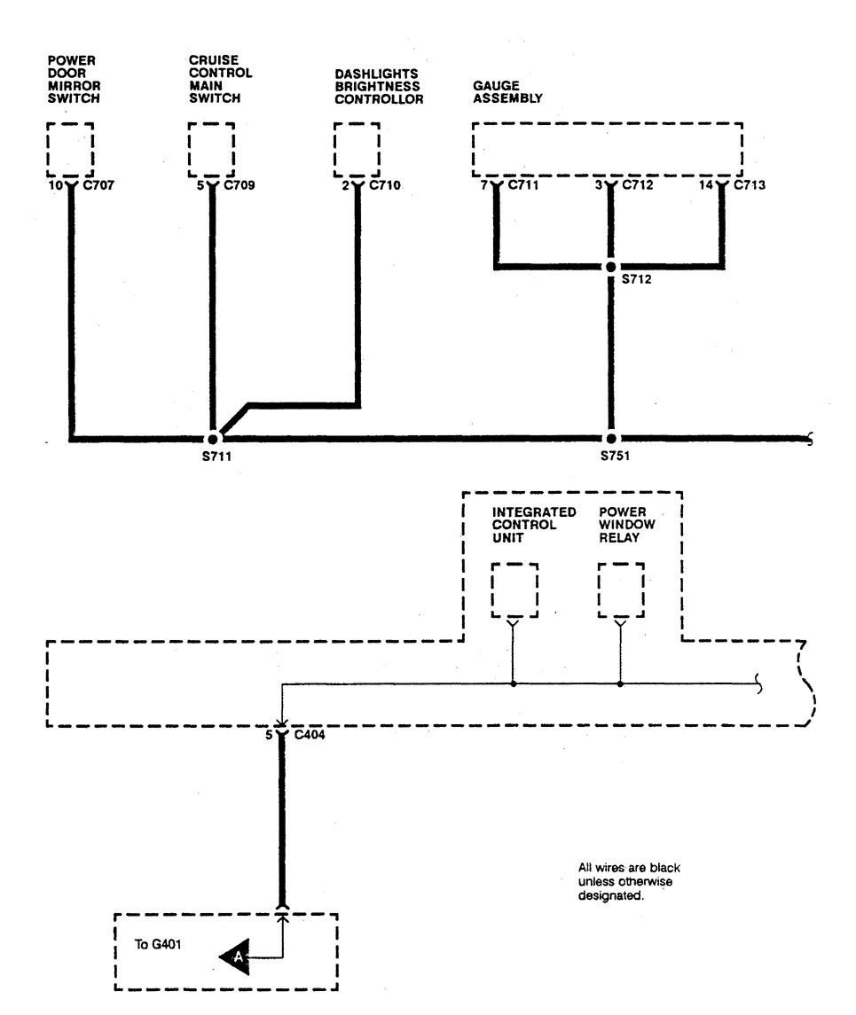
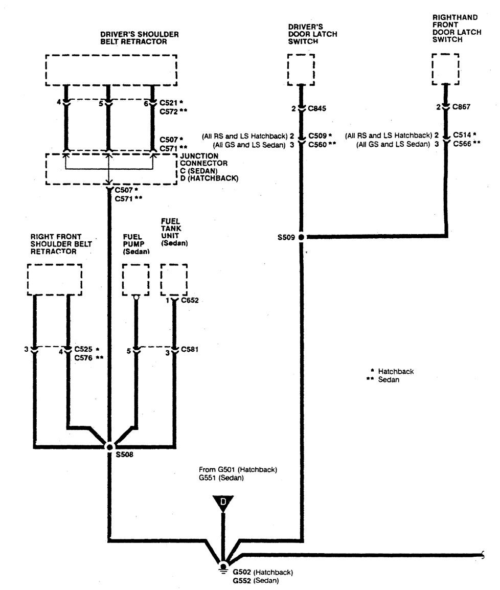
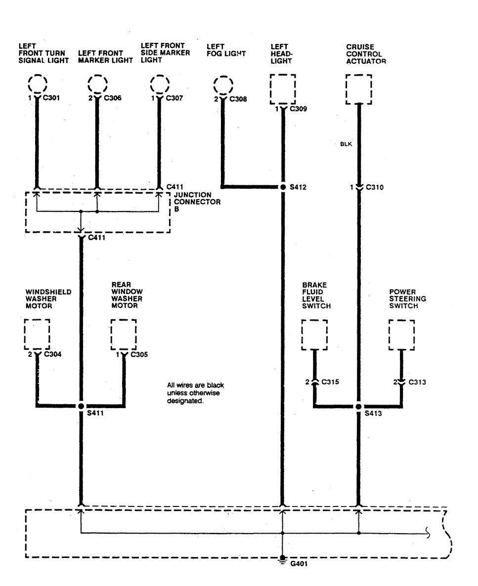
cura Integra (1990) – wiring diagrams – ground distribution
Year of productions: 1990
Ground distribution
















WARNING: Terminal and harness assignments for individual connectors will vary depending on vehicle equipment level, model, and market.
Year of productions: 1990
















WARNING: Terminal and harness assignments for individual connectors will vary depending on vehicle equipment level, model, and market.
Copyright © 2026 | MH Magazine WordPress Theme by MH Themes
Leave a Reply