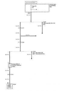
Acura TL (2003 – 2005) – wiring diagrams – engine mount control
Year of productions: 2003, 2004, 2005
Engine mount control

WARNING: Terminal and harness assignments for individual connectors will vary depending on vehicle equipment level, model, and market.
